Eladó családi ház
Budapest, XXII. kerület, félemelet

235 000 000 Ft235 M Ft 1 119 048 Ft/m2
6 szoba
210 m2
félemelet

Részletes adatok

Állapot: Felújított
Telekméret: 1655 m2
Fűtés: Gázkazán
Energetikai besorolás: Nem adta meg a hirdető

Az OTP Bank lakáshitel ajánlataFizetett hirdetés

+36 70 366
Borka Tamás XIV. Ilka utcai iroda
referens

Érdekel az OTP Bank kedvezményes lakáshitel ajánlata? *

* A kérdésre „Igen” válasz bejelölése esetén, az „Üzenet küldése” gombra kattintva kijelentem, hogy az OTP Bank Nyrt. Adatkezelési tájékoztatójának tartalmát megismertem és tudomásul vettem.

Eladó családi ház leírása

"Eladó családi ház Budapest XXII. kerületében

Budapest XXII. kerületében, csendes és kertvárosi környezetben található ez a 210 m²-es, két szintes családi ház, amely egy 1655 m²-es telken helyezkedik el. Az ingatlan ideális választás nagyobb családok számára, akik tágas élettérre és nyugodt környezetre vágynak.

Az ingatlan jellemzői:
Alapterület: 210 m² (nettó)
Telek mérete: 1655 m²
Építés éve: 1970
Használatbavétel éve: 1990
Szobák száma: 6 szoba (2 nappali, 4 hálószoba)
Fürdőszobák száma: 2
Erkély/Terasz: 2 db, összesen 24 m²
Parkolás: Felszíni beálló (2 autó számára), garázs (1 autó számára)

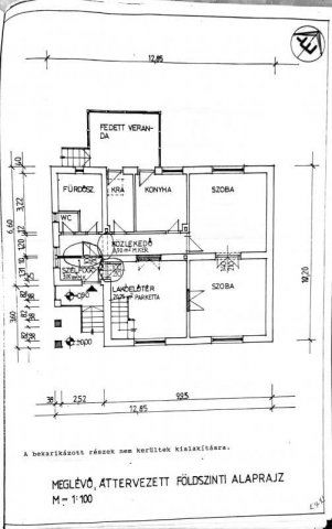
Beosztás:

- Földszint:

Tágas nappali (20,25 m² parkettázott)
Konyha és étkező
Két hálószoba
Fürdőszoba és külön WC
Fedett veranda

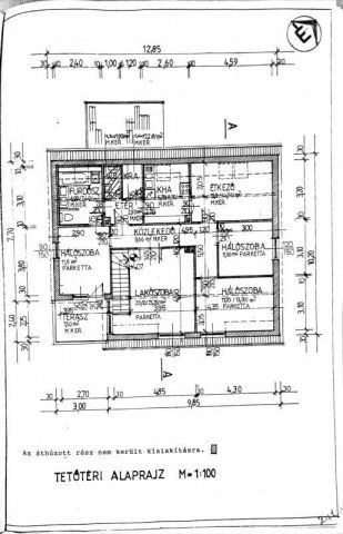
- Tetőtér:

Közlekedő
Nappali és három különálló hálószoba
Étkező és konyha
Fürdőszoba
Tágas terasz (7,50 m²)

Egyéb jellemzők:
A ház tájolása északi és keleti, a helyiségek világosak és napfényesek.

A kert gondozott, ideális pihenésre vagy családi programokra.

Az ingatlan jó állapotú, esztétikai felújításokkal még tovább szépíthető.

Környék és közlekedés:
A ház csendes utcában található, távol a város zajától. A közelben találhatók boltok, iskolák és egyéb kikapcsolódási lehetőségek, akár a golf kedvelők számára is. Tömegközlekedéssel is jól megközelíthető, busz 2 perc, vonat kapcsolat tömegközlekedéssel 10 perc.

Az ingatlan ára: 239 millió Ft.

Ez az otthon tökéletes választás azok számára, akik tágas életteret keresnek egy nagy telekkel rendelkező családi házban Budapest egyik legnyugodtabb kerületében!103968
"

Hirdetés feltöltve: 2025. 10. 28. Utoljára módosítva: 2025. 10. 28.

Az ingatlan elhelyezkedése

Cím: Budapest, XXII. kerület, félemelet

Eladó ingatlanok a környékről

Eladó családi ház
Eladó családi ház

XXII. kerület

399 M Ft
5 szoba
300 m2
Eladó családi ház
Eladó családi ház

XX. kerület

114.9 M Ft
Eladó panellakás
Eladó panellakás

XVI. kerület, Rákospalotai határút

84.9 M Ft
2 + 2 szoba
80 m2
Eladó családi ház
Eladó családi ház

XXII. kerület, Budafok

239 M Ft
9 szoba
325 m2
Eladó téglalakás
Eladó téglalakás

II. kerület, Hűvösvölgy, Heinrich István utca

69.9 M Ft
1 szoba
22 m2
Eladó családi ház
Eladó családi ház

XXII. kerület, Nagytétény, Máriás utca

149 M Ft
3 szoba
88 m2
Eladó téglalakás
Eladó téglalakás

VI. kerület

119.9 M Ft
2 szoba
91 m2
Eladó ikerház
Eladó ikerház

XVIII. kerület, Erzsébettelep, Zalán utca

220 M Ft
4 + 1 szoba
360 m2
Eladó családi ház
Eladó családi ház

XXII. kerület, Nagytétény

164.6 M Ft
5 szoba
177 m2
Eladó panellakás
Eladó panellakás

XV. kerület, Újpalota

72.9 M Ft
2 + 2 szoba
69 m2
Eladó családi ház
Eladó családi ház

XXII. kerület, Budafok

299 M Ft
5 szoba
300 m2
Eladó téglalakás
Eladó téglalakás

VI. kerület, Külső Terézváros, 1063 Budapes, Bajnok utca

95 M Ft
2 + 1 szoba
72 m2
Eladó panellakás
Eladó panellakás

X. kerület, Laposdűlő, Hungária körút

75.5 M Ft
2 + 1 szoba
72 m2
Eladó családi ház
Eladó családi ház

XXII. kerület, Nagytétény, Diósdi utca

71.5 M Ft
2 szoba
50 m2
Eladó családi ház
Eladó családi ház

XXII. kerület, Nagytétény, Mátyás király utca

150 M Ft
5 szoba
120 m2
Eladó panellakás
Eladó panellakás

XV. kerület, Pestújhely, Neptun utca

55.9 M Ft
2 szoba
35 m2
Eladó téglalakás
Eladó téglalakás

VII. kerület

109.9 M Ft
2 szoba
82 m2
Eladó családi ház
Eladó családi ház

XXII. kerület

540 M Ft
7 szoba
600 m2
Eladó téglalakás
Eladó téglalakás

VIII. kerület, 1082 Budapest, Üllői út

119 M Ft
3 szoba
64 m2
Eladó családi ház
Eladó családi ház

XXII. kerület, Nagytétény, Aranyhegyi utca

45 M Ft
2 szoba
35 m2
Eladó téglalakás
Eladó téglalakás

XIV. kerület, Kiszugló, Angol utca

47 M Ft
1 szoba
32 m2
Eladó panellakás
Eladó panellakás

XV. kerület, Újpalota

49.99 M Ft
2 szoba
35 m2
Eladó családi ház
Eladó családi ház

XXII. kerület, Nagytétény, Nagytétényi út

44.5 M Ft
3 szoba
70 m2
Eladó téglalakás
Eladó téglalakás

VI. kerület, Diplomatanegyed, Délibáb utca

93 M Ft
2 szoba
53 m2

Falusi CSOK ingatlanok

Eladó családi ház
Eladó családi ház

Tápióbicske

12.5 M Ft
2 szoba
51 m2
Eladó családi ház
Eladó családi ház

Mályi

89.9 M Ft
4 szoba
100 m2
Eladó téglalakás
Eladó téglalakás

Tokaj

188.9 M Ft
3 szoba
93 m2
Eladó családi ház
Eladó családi ház

Homrogd

5.5 M Ft
2 szoba
74 m2
Eladó családi ház
Eladó családi ház

Vaskút

14.9 M Ft
3 szoba
120 m2
Eladó családi ház
Eladó családi ház

Erdősmecske

32 M Ft
3 szoba
115 m2
Eladó családi ház
Eladó családi ház

Ágasegyháza

29.7 M Ft
3 szoba
75 m2
Eladó családi ház
Eladó családi ház

Újlengyel

110 M Ft
4 szoba
121 m2