City Pearl

Eladó családi ház
Budapest, XVIII. kerület

+ 10 kép 1/13
79 990 000 Ft79.99 M Ft 908 977 Ft/m2
4 szoba
88 m²
építés éve:1945

Részletes adatok

Telekméret: 710 m2
Fűtés: Egyéb
Energetikai besorolás: Nem adta meg a hirdető

Az OTP Bank lakáshitel ajánlataFizetett hirdetés

+36 1 690
Gáspár Olivér
referens

Érdekel az OTP Bank kedvezményes lakáshitel ajánlata? *

* A kérdésre „Igen” válasz bejelölése esetén, az „Üzenet küldése” gombra kattintva kijelentem, hogy az OTP Bank Nyrt. Adatkezelési tájékoztatójának tartalmát megismertem és tudomásul vettem.

Eladó családi ház leírása

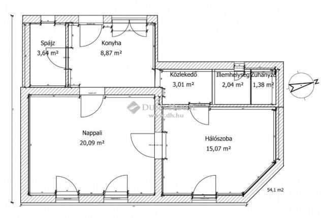
Eladó a 18. kerület közkedvelt részén, nyugodt, rendezett környezetben, egy 54 nm-es, és egy 33nm-es, két generációnak kiválóan alkalmas családi házak, 710 nm-es telken!Mindkét ház két szobás, és összkomfortos.A nagyobbik ingatlan felújított, a tetőre 5,8 KW 20 panel napelem került felszerelésre, ami mindkét otthont ellátja energiával.A kisebbik ingatlan felújítandó, alatta pince található.A kert kiválóan alkalmas baráti összejövetelekre, ásott kút, szaletli, sütögető, és egy kis játszótér szolgálja kényelmünket.Ha felkeltette érdeklődését ez a kiváló paraméterekkel rendelkező ingatlan, további kérdéseivel, megtekintésért kérem hívjon, akár hétvégén is!

Hirdetés feltöltve: 2025. 10. 24. Utoljára módosítva: 2026. 01. 13.

4 szobás családi házak ára Budapesten

Ebből az összehasonlításból megtudhatod, hogyan viszonyul a lakás ára a környékbeli családi házak átlagos árához. Ez nem azt jelenti, hogy ennyivel olcsóbb vagy drágább, mint amennyit a lakás ér, hanem hogy ennyivel tér el a környékbeli átlagtól.

Ennek a m² ára
XVIII. kerület m² ár
Budapest m² ár
909 e Ft
1000 e Ft 9%
1086 e Ft 16%
Ennek az ára
XVIII. kerület átlagár
Budapest átlagár
79.99 M Ft m Ft
137.3 m Ft 42%
153.3 m Ft 48%

Az ingatlan elhelyezkedése

Cím: Budapest, XVIII. kerület

Eladó ingatlanok a környékről

XVIII. kerület, Gloriett-telep
Eladó családi ház

Budapest, XVIII. kerület

145.8 M Ft
4 szoba
130 m²
XVIII. kerület, Bókaytelep
Eladó családi ház

Budapest, XVIII. kerület

162 M Ft
5 szoba
195 m²
XVIII. kerület, Gloriett-telep
Eladó családi ház

Budapest, XVIII. kerület

145.8 M Ft
4 szoba
130 m²
XVIII. kerület
Eladó családi ház

Budapest, XVIII. kerület

330 M Ft
7 szoba
360 m²
VI. kerület, Külső Terézváros, Rózsa utca 82
Eladó téglalakás

Budapest, VI. kerület

85.92 M Ft
2 szoba
48 m²
XVIII. kerület, Újpéteritelep
Eladó családi ház

Budapest, XVIII. kerület

330 M Ft
7 szoba
360 m²
VI. kerület, Külső Terézváros, Rózsa utca 82
Eladó téglalakás

Budapest, VI. kerület

85.92 M Ft
2 szoba
48 m²
XVIII. kerület, Miklóstelep
Eladó családi ház

Budapest, XVIII. kerület

129.9 M Ft
7 szoba
100 m²
XVIII. kerület, Ganztelep
Eladó családi ház

Budapest, XVIII. kerület

160 M Ft
3 + 1 szoba
156 m²
XVIII. kerület, Szent Imre kertváros
Eladó családi ház

Budapest, XVIII. kerület

99.9 M Ft
2 szoba
80 m²
XVIII. kerület, Újpéteritelep
Eladó családi ház

Budapest, XVIII. kerület

330 M Ft
7 szoba
360 m²
XVIII. kerület
Eladó családi ház

Budapest, XVIII. kerület

260 M Ft
8 szoba
650 m²
XVIII. kerület
Eladó családi ház

Budapest, XVIII. kerület

75 M Ft
3 szoba
65 m²
XVIII. kerület, Liptáktelep
Eladó családi ház

Budapest, XVIII. kerület

105 M Ft
2 szoba
90 m²
XIII. kerület
Eladó téglalakás

Budapest, XIII. kerület

94.749 M Ft
2 szoba
57 m²
XVIII. kerület
Eladó családi ház

Budapest, XVIII. kerület

105 M Ft
6 szoba
180 m²
XVIII. kerület, Liptáktelep
Eladó téglalakás

Budapest, XVIII. kerület

97.5 M Ft
3 szoba
72 m²
VIII. kerület, Palotanegyed
Eladó téglalakás

Budapest, VIII. kerület

74.9 M Ft
3 szoba
28 m²
XVIII. kerület, Szent Imre kertváros
Eladó családi ház

Budapest, XVIII. kerület

105 M Ft
6 szoba
180 m²
XVII. kerület
Eladó családi ház

Budapest, XVII. kerület

179 M Ft
5 szoba
150 m²
XIII. kerület
Eladó panellakás

Budapest, XIII. kerület

79.8 M Ft
1 + 2 szoba
58 m²
XVIII. kerület
Eladó családi ház

Budapest, XVIII. kerület

162 M Ft
5 szoba
195 m²
XVIII. kerület, Szent Imre kertváros, Üllői út
Eladó családi ház

Budapest, XVIII. kerület

170 M Ft
3 szoba
284 m²
XVI. kerület, Cinkota
Eladó téglalakás

Budapest, XVI. kerület

33.9 M Ft
1 + 1 szoba
45 m²

Falusi CSOK ingatlanok

Pálfa
Eladó családi ház

Pálfa

26.99 M Ft
3 szoba
90 m²
Ceglédbercel
Eladó családi ház

Ceglédbercel

43 M Ft
3 szoba
67 m²
Lengyeltóti
Eladó családi ház

Lengyeltóti

26.5 M Ft
2 szoba
85 m²
Fonyód
Eladó családi ház

Fonyód

89 M Ft
2 szoba
90 m²
Csemő
Eladó családi ház

Csemő

61.9 M Ft
3 szoba
88 m²
Balatonszárszó, Öreghegyi út
Eladó családi ház

Balatonszárszó

29.9 M Ft
3 szoba
35 m²
Nyékládháza
Eladó családi ház

Nyékládháza

75 M Ft
4 szoba
140 m²
Verseg
Eladó családi ház

Verseg

50 M Ft
2 szoba
92 m²