Astora Art House

Eladó családi ház
Budapest, XVII. kerület

+ 17 kép 1/20
125 000 000 Ft125 M Ft 833 333 Ft/m2
5 szoba
150 m²
építés éve:1970

Részletes adatok

Telekméret: 678 m2
Fűtés: Gázkazán
Energetikai besorolás: Nem adta meg a hirdető

Az OTP Bank lakáshitel ajánlataFizetett hirdetés

+36 30 869
Plachy Zsuzsa
referens

Érdekel az OTP Bank kedvezményes lakáshitel ajánlata? *

* A kérdésre „Igen” válasz bejelölése esetén, az „Üzenet küldése” gombra kattintva kijelentem, hogy az OTP Bank Nyrt. Adatkezelési tájékoztatójának tartalmát megismertem és tudomásul vettem.

Eladó családi ház leírása

Eladó igényesen felújított, kétgenerációs családi ház Rákoskerten, termő gyümölcsfákkal hívogató tágas kerttel

Budapest XVII. kerületének legkeresettebb részén, Rákoskerten, aszfaltozott mellékutcában kínálok megvételre egy nettó 150 m² (bruttó 180 m²-es), akár kétgenerációs együttélésre is alkalmas, pincével és beépített tetőtérrel rendelkező családi házat, parkosított közel 680 m²-es kerttel.

Az ingatlan az 1970-es években téglából épült, majd 2020-tól folyamatos, teljes körű felújításon esett át.

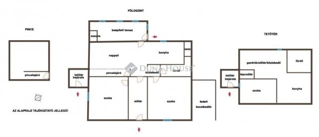
Kialakítás:
Földszint: nappali, konyha, 3 szoba, fürdőszoba + WC, közlekedő, beépített terasz szaunával
Beépített tetőtér: nappali, konyha, szoba, fürdőszoba + WC, közlekedő
Kert: parkosított kert tárolókkal, kutya kennellel, fedett kocsibeállóval
Pince + padlás: tárolási lehetőségek

Felújítás és felszereltség:
Teljes tetőszerkezet és a hideg-meleg burkolatok cseréje
10 cm külső hőszigetelés, tetőtér oldalán dupla gipszkartonos kialakítás és 25 cm, födémnél 30 cm szigetelés
Víz-, elektromos- és szennyvízhálózat teljesen felújítva
Új központi fűtésrendszer gázkazánnal, + kandalló
Korszerű műanyag nyílászárók szúnyoghálóval ellátva
Gépesített konyha, kamra
Szintenként hűtő-fűtő klíma

Elhelyezkedés:

A környék infrastruktúrája kiváló:
Néhány perc sétával elérhető iskola, óvoda, posta, orvosi rendelő és kisebb boltok
BKK buszmegálló és Rákoskert vasútállomás néhány perc sétára található,
Autóval 5 perc a maglódi Auchan bevásárlóközpont, az M0-s csomópontja

Ez a ház tökéletes választás azok számára, akik igényes, kétgenerációs otthont keresnek csendes, kertvárosi környezetben, de mégis kiváló közlekedési és infrastruktúra kapcsolattal. A ház minden részlete a minőséget, a kényelmet és a harmóniát szolgálja. Megegyezés alapján akár rövid határidővel költözhető.

Amennyiben felkeltettem érdeklődését, keressen bizalommal további információért a hét bármely napján!
A Duna House teljes kínálatával állok rendelkezésére!

Ingatlan eladás és vétel teljes körű ügyintézése, megbízható ügyvédi háttér biztosítása, ingyenes ingatlan tanácsadás, teljes körű és gyors bankfüggetlen hitelügyintézés, biztosítás, energetikai tanúsítvány akár hozott ingatlanra is az ország piacvezető ingatlanközvetítő hálózatának támogatásával!

Az energetikai tanúsítvány készítése folyamatban van, amint rendelkezésre áll, úgy azzal a hirdetés frissítésre kerül.

Amennyiben az ingatlan megfelelne az elvárásainak de nem rendelkezik a teljes vételárral? Ebben az esetben a CREDIPASS munkatársai kötelezettség- és díjmentes tanácsadással állnak Ügyfeleink rendelkezésére.
Használja ki a jelenleg még érvényben lévő kedvező kamatozású hiteleket, CSOK-ot, illetékkedvezményt!
Hétvégén is várom megtisztelő hívását, abban az esetben is ha csak hitelre lenne szüksége,
Várom hívását, ha még el kell adnia ahhoz, hogy vásárolni tudjon!

Várom megtisztelő hívását: Plachy Zsuzsa 30-8695401

Referencia szám: HZ046088

Hirdetés feltöltve: 2026. 04. 30. Utoljára módosítva: 2026. 05. 10.

5 szobás családi házak ára Budapesten

Ebből az összehasonlításból megtudhatod, hogyan viszonyul a lakás ára a környékbeli családi házak átlagos árához. Ez nem azt jelenti, hogy ennyivel olcsóbb vagy drágább, mint amennyit a lakás ér, hanem hogy ennyivel tér el a környékbeli átlagtól.

Ennek a m² ára
XVII. kerület m² ár
Budapest m² ár
833 e Ft
937 e Ft 11%
966 e Ft 14%
Ennek az ára
XVII. kerület átlagár
Budapest átlagár
125 M Ft m Ft
183.5 m Ft 32%
238 m Ft 47%

Az ingatlan elhelyezkedése

Cím: Budapest, XVII. kerület

Eladó ingatlanok a környékről

XVII. kerület, Rákoskeresztúr
Eladó családi ház

Budapest, XVII. kerület

162 M Ft
6 szoba
227 m²
XVII. kerület
Eladó családi ház

Budapest, XVII. kerület

65 M Ft
3 szoba
110 m²
XIII. kerület
Eladó téglalakás

Budapest, XIII. kerület

59.6 M Ft
1 szoba
38 m²
VII. kerület, Külső Erzsébetváros, Csengery utca
Eladó téglalakás

Budapest, VII. kerület

49.9 M Ft
1 szoba
35 m²
VII. kerület, Külső Erzsébetváros, Péterfy Sándor utca
Eladó téglalakás

Budapest, VII. kerület

64.9 M Ft
2 szoba
46 m²
XVII. kerület
Eladó családi ház

Budapest, XVII. kerület

94.9 M Ft
6 szoba
220 m²
XVII. kerület
Eladó családi ház

Budapest, XVII. kerület

350 M Ft
3 + 1 szoba
180 m²
XVI. kerület, Rákosszentmihály, Csömöri út
Eladó téglalakás

Budapest, XVI. kerület

47.9 M Ft
1 + 1 szoba
44 m²
XVII. kerület
Eladó családi ház

Budapest, XVII. kerület

249 M Ft
9 szoba
373 m²
XXII. kerület
Eladó családi ház

Budapest, XXII. kerület

78.2 M Ft
6 szoba
173 m²
XIV. kerület
Eladó téglalakás

Budapest, XIV. kerület

59.999 M Ft
2 szoba
31 m²
XVII. kerület, Rákoshegy, Dobos István utca
Eladó családi ház

Budapest, XVII. kerület

350 M Ft
3 + 1 szoba
212 m²
XIV. kerület
Eladó panellakás

Budapest, XIV. kerület

72.99 M Ft
2 szoba
55 m²
XVII. kerület
Eladó családi ház

Budapest, XVII. kerület

180 M Ft
6 szoba
226 m²
XVII. kerület
Eladó családi ház

Budapest, XVII. kerület

295 M Ft
6 szoba
395 m²
XIV. kerület, Alsórákos, Mirtusz utca
Eladó téglalakás

Budapest, XIV. kerület

82.9 M Ft
3 + 1 szoba
73 m²
VIII. kerület
Eladó téglalakás

Budapest, VIII. kerület

46.9 M Ft
1 + 1 szoba
30 m²
VI. kerület
Eladó téglalakás

Budapest, VI. kerület

198 M Ft
3 szoba
79 m²
XVII. kerület
Eladó családi ház

Budapest, XVII. kerület

256 M Ft
5 szoba
250 m²
XVIII. kerület, Havannatelep, Baross utca
Eladó családi ház

Budapest, XVIII. kerület

98.8 M Ft
2 + 2 szoba
98 m²
VII. kerület, Külső Erzsébetváros, Péterfy Sándor utca
Eladó téglalakás

Budapest, VII. kerület

93 M Ft
3 szoba
102 m²
XVII. kerület
Eladó családi ház

Budapest, XVII. kerület

120 M Ft
4 + 1 szoba
150 m²
XVII. kerület, Rákoscsaba-újtelep, Dallamos utca
Eladó családi ház

Budapest, XVII. kerület

108.9 M Ft
3 szoba
120 m²
IV. kerület, Újpest, Deák Ferenc utca
Eladó panellakás

Budapest, IV. kerület

74.9 M Ft
3 szoba
59 m²

Falusi CSOK ingatlanok

Balatonszepezd
Eladó családi ház

Balatonszepezd

299 M Ft
5 szoba
220 m²
Tihany
Eladó családi ház

Tihany

149 M Ft
5 szoba
270 m²
Pécsvárad
Eladó családi ház

Pécsvárad

189 M Ft
7 szoba
618 m²
Andornaktálya
Eladó családi ház

Andornaktálya

35.9 M Ft
2 + 2 szoba
840 m²
Ceglédbercel
Eladó családi ház

Ceglédbercel

39.9 M Ft
3 szoba
55 m²
Zsámbok
Eladó családi ház

Zsámbok

54.85 M Ft
3 szoba
120 m²
Pécsely
Eladó családi ház

Pécsely

85 M Ft
2 szoba
90 m²
Balatonszemes, Ady Endre u
Eladó téglalakás

Balatonszemes

64.9 M Ft
1 szoba
37 m²