City Pearl

Eladó családi ház
Budapest, X. kerület, Újhegy

+ 9 kép 1/12
149 900 000 Ft149.9 M Ft 1 228 689 Ft/m2
4 szoba
122 m²
építés éve:2026

Részletes adatok

Telekméret: 205 m2
Fűtés: Egyéb
Energetikai besorolás: A

Az OTP Bank lakáshitel ajánlataFizetett hirdetés

+36 1 690
Szabó Jánosné
referens

Érdekel az OTP Bank kedvezményes lakáshitel ajánlata? *

* A kérdésre „Igen” válasz bejelölése esetén, az „Üzenet küldése” gombra kattintva kijelentem, hogy az OTP Bank Nyrt. Adatkezelési tájékoztatójának tartalmát megismertem és tudomásul vettem.

Eladó családi ház leírása

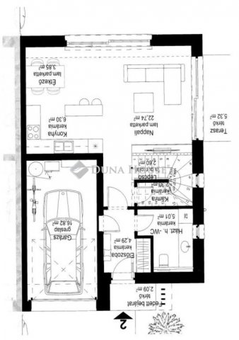
Modern, kétszintes újépítésű ikerház! Budapest X. kerület egyik legnyugodtabb területén, egy csendes mellékutcában, gyönyörű és minőségi családi otthon épül!Az ingatlan a mai kor műszaki elvárásai szerint kerül felépítésre. Prémium minőségű gépészet és kiváló minőségű anyagok felhasználásával. A telek adta lehetőségek a leg optimálisabban került kihasználásra, az ikerház felépítésére. Belső terei megtervezésekor első számú szempont volt a XXI. századi modern kialakítás, a kényelmes és egyben praktikus tér elrendezés.Az ingatlanhoz tartozik egy 231 m2-es kert, amely tökéletes egy nagyobb család számára is. A kert privát és nem látni be rá, megfelelő intimitást nyújt.A csendes elhelyezkedés egyben egy remek infrastruktúrát jelent. A környéken minden megtalálható amire az embernek szüksége lehet, illetve a belváros is rendkívül gyorsan megközelíthető, autóval, és tömegközlekedéssel is.A ház helységei két szinten oszlanak meg, a hasznos alapterület 122 m2.Az otthon szíve a, közel 33 m2-es amerikai konyhás nappali, ami terasz kapcsolatos, ezen a szinten még zuhanyzó+wc, háztartási helyiség kerül kialakításra.Tartozik az ingatlanhoz egy fedett garázs is, ahova bőven be lehet parkolni egy nagyméretű autóval is, illetve a holmik tárolására is tökéletes.A felső szinten további 3 db teljes értékű szoba várja új tulajdonosait, a lakók kényelmét még két db fürdőszoba szolgálja.FELÁR ELLENÉBEN, a vállalkozó vállalja:- beépített gépesített konyabútort,- a teljes kertépítést,- a beépített gardróbszekrényeket.MŰSZAKI TARTALOM:- Főfalak: 30 cm POROTHERM 30 N+F vázkerámia falazóblokk falazat ragasztva,- Válaszfalak: 10 cm vtg. kerámia válaszfallapból, speciális ragasztóval, - Koszorúk: monolit vasbeton szerkezet, külső oldalán 5 cm plusz kiegészítő hőszigeteléssel,- Födém: monolit vasbeton födém készül, statikai méretezés szerint, emelet felett fa fedélszék ,- Tető: hagyományos ácsszerkezetű magastető készül 25 fokos hajlásszöggel, dobozolt eresz kialakítással, Terrán Zenit Max Carbon szürke színben cserépfedéssel.- Műanyag nyílászárók fenyő színben, 3 rétegű hőszigetelő üvegezéssel és több pontonzáródó biztonsági bejárati ajtóval.- Burkolatok: hálószobákban laminált parketta melegburkolat, vizes helyiségeben kerámia-, és csempeburkolat készül. Kültéren a gépkocsi behajtó és járdák térkő burkolatúak.- Homlokzati hőszigetelés expandált polisztirol hőszigetelő lemez 15 cm vtg-ban- Lábazati hőszigetelés extrudált polisztirol hőszigetelő lemez 12 cm vtg-ban- Koszorú külső hőszigetelés expandált polisztirol hőszigetelő lemez 5 cm vtg-ban- Hőszigetelés padlóban expandált polisztirol hőszigetelő lemez 10 cm vtg-ban- Födém feletti hőszigetelés EPS hőszigetelés, 20 cm vtg-ban,- hőszivattyús fűtés, mennyezeti fűtés, hútés.EXTRÁK:- OKOS RENDSZER,- elektromos redőnyök,- kamera és riasztó rendszer kiépítés,- videó kaputelefon,- elektromos kapu,- öntöző rendszer,- elektromos autótöltő kiépítés,- Wpc kerítés,- 3 rétegű üvegek,- rejtett világítások,- udvar világítások,- légtechnika.Teljes átláthatóság az építkezés során digitálisan, kényelmesen, biztonságosan!Az építkezés nálunk nem csak szakmai precizitásról szól, hanem valódi átláthatóságról is. A PlanRadar digitális projektkövető rendszerének köszönhetően Ön, mint leendő tulajdonos: Valós időben nyomon követheti az építkezés minden lépését akár mobilról is. Kéthetente részletes jelentést kap az aktuális állapotról, fotókkal, dokumentumokkal. A projekt végén digitálisan megkapja az összes hivatalos dokumentumot, beleértve a garanciákat, tervrajzokat, átadási jegyzőkönyveket mindezt egyetlen, biztonságos platformon.FINANSZÍROZÁS: Hitelre megvásárolható, vevőink részére díjmentes hitel közvetítés, minden magyarországi bankból. Állami támogatások felvehetőek rá!Átadás: 2026. III. NEGYEDÉVNe hagyja ki ezt a páratlan lehetőséget! Egy ilyen prémium ingatlan ritkán kerül piacra, és most Ön előtt áll a lehetőség, hogy a város egyik legvonzóbb helyén éljen. Tökéletes választás a modern, kényelmes és biztonságos életstílust keresők számára!Várom megtisztelő hívását a hét minden napján!

Hirdetés feltöltve: 2026. 03. 06. Utoljára módosítva: 2026. 03. 07.

4 szobás családi házak ára Budapesten

Ebből az összehasonlításból megtudhatod, hogyan viszonyul a lakás ára a környékbeli családi házak átlagos árához. Ez nem azt jelenti, hogy ennyivel olcsóbb vagy drágább, mint amennyit a lakás ér, hanem hogy ennyivel tér el a környékbeli átlagtól.

Ennek a m² ára
X. kerület m² ár
Budapest m² ár
1229 e Ft
1206 e Ft -2%
1086 e Ft -13%
Ennek az ára
X. kerület átlagár
Budapest átlagár
149.9 M Ft m Ft
146.5 m Ft -2%
153.3 m Ft 2%

Az ingatlan elhelyezkedése

Cím: Budapest, X. kerület, Újhegy

Eladó ingatlanok a környékről

X. kerület, Óhegy
Eladó családi ház

Budapest, X. kerület

239 M Ft
7 szoba
245 m²
XIII. kerület
Eladó panellakás

Budapest, XIII. kerület

79.8 M Ft
1 + 2 szoba
58 m²
XVII. kerület
Eladó családi ház

Budapest, XVII. kerület

179 M Ft
5 szoba
150 m²
II. kerület
Eladó téglalakás

Budapest, II. kerület

275 M Ft
4 szoba
97 m²
X. kerület, Újhegy
Eladó panellakás

Budapest, X. kerület

67.9 M Ft
3 szoba
68 m²
X. kerület, Óhegy
Eladó családi ház

Budapest, X. kerület

265 M Ft
7 szoba
160 m²
X. kerület
Eladó családi ház

Budapest, X. kerület

145 M Ft
1 + 2 szoba
74 m²
III. kerület, Csillaghegy
Eladó családi ház

Budapest, III. kerület

128.8 M Ft
4 szoba
120 m²
X. kerület, Felsőrákos
Eladó családi ház

Budapest, X. kerület

334.99 M Ft
11 szoba
400 m²
VI. kerület, Külső Terézváros, Rózsa utca 82
Eladó téglalakás

Budapest, VI. kerület

85.92 M Ft
2 szoba
48 m²
X. kerület, Óhegy
Eladó családi ház

Budapest, X. kerület

149.9 M Ft
5 szoba
119 m²
X. kerület
Eladó családi ház

Budapest, X. kerület

170 M Ft
4 szoba
175 m²
VIII. kerület, Palotanegyed
Eladó téglalakás

Budapest, VIII. kerület

74.9 M Ft
3 szoba
28 m²
X. kerület, Óhegy
Eladó családi ház

Budapest, X. kerület

149.9 M Ft
5 szoba
119 m²
XVIII. kerület, Szent Imre kertváros
Eladó családi ház

Budapest, XVIII. kerület

99.9 M Ft
2 szoba
80 m²
X. kerület, Óhegy
Eladó családi ház

Budapest, X. kerület

160 M Ft
7 szoba
204 m²
XIII. kerület
Eladó téglalakás

Budapest, XIII. kerület

94.749 M Ft
2 szoba
57 m²
X. kerület, Óhegy
Eladó családi ház

Budapest, X. kerület

265 M Ft
7 szoba
160 m²
X. kerület
Eladó családi ház

Budapest, X. kerület

249 M Ft
6 + 1 szoba
186 m²
XVIII. kerület, Miklóstelep
Eladó családi ház

Budapest, XVIII. kerület

129.9 M Ft
7 szoba
100 m²
X. kerület, Óhegy
Eladó családi ház

Budapest, X. kerület

92 M Ft
5 szoba
102 m²
II. kerület
Eladó családi ház

Budapest, II. kerület

149.9 M Ft
3 szoba
90 m²
X. kerület, Felsőrákos
Eladó családi ház

Budapest, X. kerület

480 M Ft
4 szoba
180 m²
XVIII. kerület, Szemeretelep
Eladó ikerház

Budapest, XVIII. kerület

84 M Ft
5 szoba
103 m²

Falusi CSOK ingatlanok

Balatonszemes
Eladó téglalakás

Balatonszemes

123.3 M Ft
2 szoba
70 m²
Bag
Eladó családi ház

Bag

16.9 M Ft
6 szoba
160 m²
Darnózseli
Eladó családi ház

Darnózseli

69.9 M Ft
4 szoba
104 m²
Hosszúhetény, Iskola utca 2
Eladó családi ház

Hosszúhetény

9.3 M Ft
4 szoba
145 m²
Tápióbicske, Nagykátai út
Eladó családi ház

Tápióbicske

14.9 M Ft
3 szoba
70 m²
Seregélyes
Eladó családi ház

Seregélyes

75 M Ft
6 szoba
160 m²
Sárosd
Eladó családi ház

Sárosd

21.9 M Ft
3 szoba
86 m²
Balatonszemes
Eladó téglalakás

Balatonszemes

119.9 M Ft
2 szoba
81 m²