Astora Márvány8

Eladó családi ház
Budapest, X. kerület

+ 9 kép 1/12
149 900 000 Ft149.9 M Ft 1 228 689 Ft/m2
4 szoba
122 m2
építés éve:2026

Részletes adatok

Telekméret: 205 m2
Fűtés: Egyéb
Energetikai besorolás: Nem adta meg a hirdető

Az OTP Bank lakáshitel ajánlataFizetett hirdetés

+36 1 690
Szabó-Lévai Annamária
Duna House Kispest

Érdekel az OTP Bank kedvezményes lakáshitel ajánlata? *

* A kérdésre „Igen” válasz bejelölése esetén, az „Üzenet küldése” gombra kattintva kijelentem, hogy az OTP Bank Nyrt. Adatkezelési tájékoztatójának tartalmát megismertem és tudomásul vettem.

Eladó családi ház leírása

Modern, kétszintes újépítésű ikerház!

Budapest X. kerület egyik legnyugodtabb területén, egy csendes mellékutcában, gyönyörű és minőségi családi otthon épül!

Az ingatlan a mai kor műszaki elvárásai szerint kerül felépítésre. Prémium minőségű gépészet és kiváló minőségű anyagok felhasználásával.

A telek adta lehetőségek a leg optimálisabban került kihasználásra, az ikerház felépítésére.

Belső terei megtervezésekor első számú szempont volt a XXI. századi modern kialakítás, a kényelmes és egyben praktikus tér elrendezés.

Az ingatlanhoz tartozik egy 231 m2-es kert, amely tökéletes egy nagyobb család számára is. A kert privát és nem látni be rá, megfelelő intimitást nyújt.

A csendes elhelyezkedés egyben egy remek infrastruktúrát jelent. A környéken minden megtalálható amire az embernek szüksége lehet, illetve a belváros is rendkívül gyorsan megközelíthető, autóval, és tömegközlekedéssel is.

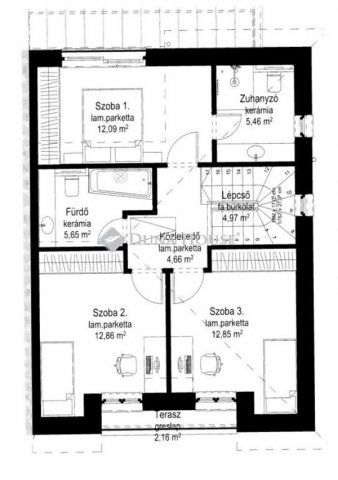
A ház helységei két szinten oszlanak meg, a hasznos alapterület 122 m2.

Az otthon szíve a, közel 33 m2-es amerikai konyhás nappali, ami terasz kapcsolatos, ezen a szinten még zuhanyzó+wc, háztartási helyiség kerül kialakításra.

Tartozik az ingatlanhoz egy fedett garázs is, ahova bőven be lehet parkolni egy nagyméretű autóval is, illetve a holmik tárolására is tökéletes.

A felső szinten további 3 db teljes értékű szoba várja új tulajdonosait, a lakók kényelmét még két db fürdőszoba szolgálja.

A vételár tartalmazza:

- beépített gépesített konyabútort,

- a teljes kertépítést,

- a beépített gardróbszekrényeket.

MŰSZAKI TARTALOM:

- Főfalak: 30 cm POROTHERM 30 N+F vázkerámia falazóblokk falazat ragasztva,

- Válaszfalak: 10 cm vtg. kerámia válaszfallapból, speciális ragasztóval,

- Koszorúk: monolit vasbeton szerkezet, külső oldalán 5 cm plusz kiegészítő hőszigeteléssel,

- Födém: monolit vasbeton födém készül, statikai méretezés szerint, emelet felett fa fedélszék ,

- Tető: hagyományos ácsszerkezetű magastető készül 25 fokos hajlásszöggel, dobozolt eresz kialakítással, Terrán Zenit Max Carbon szürke színben cserépfedéssel.

- Műanyag nyílászárók fenyő színben, 3 rétegű hőszigetelő üvegezéssel és több ponton

záródó biztonsági bejárati ajtóval.

- Burkolatok: hálószobákban laminált parketta melegburkolat, vizes helyiségeben kerámia-, és csempeburkolat készül. Kültéren a gépkocsi behajtó és járdák térkő burkolatúak.

- Homlokzati hőszigetelés expandált polisztirol hőszigetelő lemez 15 cm vtg-ban

- Lábazati hőszigetelés extrudált polisztirol hőszigetelő lemez 12 cm vtg-ban

- Koszorú külső hőszigetelés expandált polisztirol hőszigetelő lemez 5 cm vtg-ban

- Hőszigetelés padlóban expandált polisztirol hőszigetelő lemez 10 cm vtg-ban

- Födém feletti hőszigetelés EPS hőszigetelés, 20 cm vtg-ban,

- hőszivattyús fűtés, mennyezeti fűtés, hútés.

EXTRÁK:

- OKOS RENDSZER,

- elektromos redőnyök,

- kamera és riasztó rendszer kiépítés,

- videó kaputelefon,

- elektromos kapu,

- öntöző rendszer,

- elektromos autótöltő kiépítés,

- Wpc kerítés,

- 3 rétegű üvegek,

- rejtett világítások,

- udvar világítások,

- légtechnika.

Teljes átláthatóság az építkezés során digitálisan, kényelmesen, biztonságosan!

Az építkezés nálunk nem csak szakmai precizitásról szól, hanem valódi átláthatóságról is. A PlanRadar digitális projektkövető rendszerének köszönhetően Ön, mint leendő tulajdonos:

Valós időben nyomon követheti az építkezés minden lépését akár mobilról is.

Kéthetente részletes jelentést kap az aktuális állapotról, fotókkal, dokumentumokkal.

A projekt végén digitálisan megkapja az összes hivatalos dokumentumot, beleértve a garanciákat, tervrajzokat, átadási jegyzőkönyveket mindezt egyetlen, biztonságos platformon.

FINANSZÍROZÁS: Hitelre megvásárolható, vevőink részére díjmentes hitel közvetítés, minden magyarországi bankból. Állami támogatások felvehetőek rá!

Átadás: 2026. III. NEGYEDÉV

Ne hagyja ki ezt a páratlan lehetőséget! Egy ilyen prémium ingatlan ritkán kerül piacra, és most Ön előtt áll a lehetőség, hogy a város egyik legvonzóbb helyén éljen. Tökéletes választás a modern, kényelmes és biztonságos életstílust keresők számára!

Várom megtisztelő hívását a hét minden napján!

Irányár: 149900000 Ft
Érd.: Szabó-Lévai Annamária, +36 70 307 7503

Referencia szám: HZ086270-ZE

Hirdetés feltöltve: 2025. 11. 25. Utoljára módosítva: 2025. 12. 09.

4 szobás családi házak ára Budapesten

Ebből az összehasonlításból megtudhatod, hogyan viszonyul a lakás ára a környékbeli családi házak átlagos árához. Ez nem azt jelenti, hogy ennyivel olcsóbb vagy drágább, mint amennyit a lakás ér, hanem hogy ennyivel tér el a környékbeli átlagtól.

Ennek a m² ára
X. kerület m² ár
Budapest m² ár
1229 e Ft
1192 e Ft -3%
1064 e Ft -15%
Ennek az ára
X. kerület átlagár
Budapest átlagár
149.9 M Ft m Ft
154.9 m Ft 3%
153.4 m Ft 2%

Az ingatlan elhelyezkedése

Cím: Budapest, X. kerület

Eladó ingatlanok a környékről

Eladó családi ház
Eladó családi ház

X. kerület

310 M Ft
9 szoba
405 m2
Eladó családi ház
Eladó családi ház

X. kerület

160 M Ft
7 szoba
204 m2
Eladó családi ház
Eladó családi ház

X. kerület, Újhegy

199 M Ft
4 szoba
180 m2
Eladó téglalakás
Eladó téglalakás

XIV. kerület, Kiszugló, Kövér Lajos utca

168 M Ft
3 + 1 szoba
84 m2
Eladó téglalakás
Eladó téglalakás

XIII. kerület, Angyalföld, Fiastyúk utca

39.9 M Ft
1 + 1 szoba
34 m2
Eladó panellakás
Eladó panellakás

XI. kerület, Kelenföld, Mérnök utca

0.24 M Ft
2 szoba
48 m2
Eladó családi ház
Eladó családi ház

X. kerület, Óhegy

149.9 M Ft
5 szoba
119 m2
Eladó ikerház
Eladó ikerház

XX. kerület

122 M Ft
5 szoba
122 m2
Eladó téglalakás
Eladó téglalakás

VII. kerület, Belső Erzsébetváros, Erzsébet körút

160 M Ft
3 szoba
88 m2
Eladó téglalakás
Eladó téglalakás

XIII. kerület, Vizafogó, Marina part, Hajóépítő sétány

97 M Ft
2 szoba
47 m2
Eladó téglalakás
Eladó téglalakás

VII. kerület, Belső Erzsébetváros, Erzsébet körút

89.9 M Ft
1 + 1 szoba
71 m2
Eladó téglalakás
Eladó téglalakás

XIV. kerület, Thököly utca

62.5 M Ft
2 szoba
45 m2
Eladó családi ház
Eladó családi ház

X. kerület, Felsőrákos

480 M Ft
4 szoba
188 m2
Eladó téglalakás
Eladó téglalakás

VI. kerület, Szófia utca

139.9 M Ft
3 szoba
97 m2
Eladó családi ház
Eladó családi ház

XIX. kerület, Kispest, Arpád utca

69 M Ft
2 szoba
60 m2
Eladó családi ház
Eladó családi ház

X. kerület, Felsőrákos, Dömsödi utca

150 M Ft
2 szoba
150 m2
Eladó családi ház
Eladó családi ház

X. kerület

125 M Ft
3 + 1 szoba
100 m2
Eladó családi ház
Eladó családi ház

X. kerület

339.9 M Ft
15 szoba
651 m2
Eladó családi ház
Eladó családi ház

X. kerület, Óhegy

145 M Ft
1 + 2 szoba
74 m2
Eladó családi ház
Eladó családi ház

X. kerület, Gyárdűlő

39.9 M Ft
2 szoba
43 m2
Eladó családi ház
Eladó családi ház

X. kerület, Óhegy

310 M Ft
9 szoba
405 m2
Eladó családi ház
Eladó családi ház

X. kerület, Óhegy

149.9 M Ft
5 szoba
119 m2
Eladó téglalakás
Eladó téglalakás

V. kerület, Váci utca

179 M Ft
3 szoba
86 m2
Eladó családi ház
Eladó családi ház

XXII. kerület, Budafok, Baross utca

199 M Ft
6 + 1 szoba
200 m2

Falusi CSOK ingatlanok

Eladó panellakás
Eladó panellakás

Pétfürdő

49.9 M Ft
3 szoba
71 m2
Eladó családi ház
Eladó családi ház

Somlóvásárhely

39.8 M Ft
1 szoba
78 m2
Eladó téglalakás
Eladó téglalakás

Balatonszemes

91.5 M Ft
2 szoba
60 m2
Eladó családi ház
Eladó családi ház

Sarud

17 M Ft
3 szoba
94 m2
Eladó családi ház
Eladó családi ház

Mezőfalva

39 M Ft
3 szoba
77 m2
Eladó családi ház
Eladó családi ház

Enese

78.9 M Ft
4 szoba
90 m2
Eladó családi ház
Eladó családi ház

Újszilvás

39.5 M Ft
3 szoba
62 m2
Eladó családi ház
Eladó családi ház

Tésenfa, Kossuth utca 23/a

5.55 M Ft
1 + 1 szoba
109 m2