Astora Olive Club House

Eladó családi ház
Budapest, II. kerület, Hársakalja

+ 17 kép 1/20
295 000 000 Ft295 M Ft 2 185 185 Ft/m2
5 szoba
135 m2
építés éve:1920

Részletes adatok

Állapot: Átlagos
Telekméret: 674 m2
Fűtés: Gázkazán
Parkolás: Garázs
Közmű: Víz, Gáz, Villany, Csatorna
Energetikai besorolás: Nem adta meg a hirdető

Az OTP Bank lakáshitel ajánlataFizetett hirdetés

+36 30 580
Heuszler Annamária
referens

Érdekel az OTP Bank kedvezményes lakáshitel ajánlata? *

* A kérdésre „Igen” válasz bejelölése esetén, az „Üzenet küldése” gombra kattintva kijelentem, hogy az OTP Bank Nyrt. Adatkezelési tájékoztatójának tartalmát megismertem és tudomásul vettem.

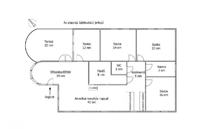
Eladó családi ház leírása

RITKA LEHETŐSÉG, SZÁZADFORDULÓS, FELÚJÍTOTT VILLA HIDEGKÚTON, ERDŐSZÉLÉN! Eladásra kínálunk Budapest II/A. kerületének egyik legexkluzívabb, legzöldebb részén, Hársakalján, egy igazi építészeti ékkövet! Ez a 135 nm-es, századfordulós stílusban épült, 2022-ben modernizált villa tökéletes harmóniát teremt a klasszikus elegancia és a mai kor kényelme között, amely egy 674 négyzetméteres, parkosított telken helyezkedik el, egy csendes, erdőszéli zsákutcában. Az ingatlanban négy tágas szoba, valamint egy amerikai konyhás nappali található, ahol egy gyönyörű kandalló gondoskodik az otthonos, meghitt hangulatról. A ház fűtését korszerű kombi gázkazán biztosítja radiátoros hőleadással, a nyári komfortot pedig légkondicionáló berendezések szolgálják. Az épületet utoljára 2022-ben korszerűsítették, ennek köszönhetően kívül-belül kiváló állapotnak örvend, hőszigetelt, energiahatékony. A házhoz tartozik egy kétállásos garázs, egy száraz pince, valamint egy beépített, gondozott medence is, mely a hatalmas terasz és a gyönyörű kert mellett tökéletes lehetőséget kínál a pihenésre és kikapcsolódásra. Az ingatlan elhelyezkedése is elsőrangú, hiszen pár perc sétára található a legközelebbi buszmegálló, ahol éjszakai járat is közlekedik, a közelben pedig számos bevásárlási lehetőség, gyógyszertár, rendelő, iskola, óvoda és bölcsőde könnyíti meg a mindennapokat. Ez a villa nem csupán egy otthon, hanem egy életérzés, ahol a természet közelsége, a nyugalom és a kifinomult elegancia találkozik.

Hirdetés feltöltve: 2025. 11. 30. Utoljára módosítva: 2025. 12. 14.

5 szobás családi házak ára Budapesten

Ebből az összehasonlításból megtudhatod, hogyan viszonyul a lakás ára a környékbeli családi házak átlagos árához. Ez nem azt jelenti, hogy ennyivel olcsóbb vagy drágább, mint amennyit a lakás ér, hanem hogy ennyivel tér el a környékbeli átlagtól.

Ennek a m² ára
Hársakalja m² ár
II. kerület m² ár
Budapest m² ár
2185 e Ft
1221 e Ft -79%
1293 e Ft -69%
969 e Ft -126%
Ennek az ára
Hársakalja átlagár
II. kerület átlagár
Budapest átlagár
295 M Ft m Ft
403.5 m Ft 27%
389 m Ft 24%
244.1 m Ft -21%

Az ingatlan elhelyezkedése

Cím: Budapest, II. kerület, Hársakalja

Eladó ingatlanok a környékről

Eladó családi ház
Eladó családi ház

II. kerület, Adyliget

455 M Ft
5 + 1 szoba
300 m2
Eladó téglalakás
Eladó téglalakás

IV. kerület, Újpest, Kassai utca

84.9 M Ft
2 + 1 szoba
71 m2
Eladó téglalakás
Eladó téglalakás

VII. kerület, Belső Erzsébetváros, Erzsébet körút

89.9 M Ft
1 + 1 szoba
71 m2
Eladó téglalakás
Eladó téglalakás

XIV. kerület, Kiszugló, Kövér Lajos utca

168 M Ft
3 + 1 szoba
84 m2
Eladó téglalakás
Eladó téglalakás

VI. kerület

71.639 M Ft
1 + 1 szoba
37 m2
Eladó családi ház
Eladó családi ház

II. kerület

240 M Ft
3 + 1 szoba
135 m2
Eladó téglalakás
Eladó téglalakás

V. kerület, Belváros, Petőfi Sándor utca

134 M Ft
2 szoba
59 m2
Eladó téglalakás
Eladó téglalakás

VII. kerület, Belső Erzsébetváros, Erzsébet körút

160 M Ft
3 szoba
88 m2
Eladó téglalakás
Eladó téglalakás

VII. kerület, Belső Erzsébetváros, Rózsa utca

170 M Ft
5 szoba
124 m2
Eladó téglalakás
Eladó téglalakás

XI. kerület, Gellérthegy, Gombócz Zoltán utca

142 M Ft
2 + 1 szoba
71 m2
Eladó családi ház
Eladó családi ház

II. kerület, Szépvölgy

3300 M Ft
8 szoba
1100 m2
Eladó családi ház
Eladó családi ház

II. kerület

495 M Ft
5 szoba
193 m2
Eladó téglalakás
Eladó téglalakás

XI. kerület

102.9 M Ft
1 + 1 szoba
46 m2
Eladó családi ház
Eladó családi ház

II. kerület

498 M Ft
8 szoba
650 m2
Eladó családi ház
Eladó családi ház

II. kerület

1828.8 M Ft
9 szoba
550 m2
Eladó családi ház
Eladó családi ház

II. kerület

571.5 M Ft
5 szoba
300 m2
Eladó téglalakás
Eladó téglalakás

XIII. kerület

55.99 M Ft
1 szoba
31 m2
Eladó családi ház
Eladó családi ház

II. kerület

850 M Ft
12 + 3 szoba
650 m2
Eladó családi ház
Eladó családi ház

II. kerület

379 M Ft
4 szoba
300 m2
Eladó családi ház
Eladó családi ház

II. kerület, Csatárka

510 M Ft
15 szoba
615 m2
Eladó téglalakás
Eladó téglalakás

XIII. kerület, Angyalföld, Fiastyúk utca

39.9 M Ft
1 + 1 szoba
34 m2
Eladó családi ház
Eladó családi ház

II. kerület, Törökvész

1828.8 M Ft
7 + 2 szoba
550 m2
Eladó üzlethelyiség
Eladó üzlethelyiség

II. kerület, Országút, Margit körút

6.999 M Ft
5 m2
Eladó családi ház
Eladó családi ház

II. kerület

449 M Ft
730 m²
350 m2

Falusi CSOK ingatlanok

Eladó családi ház
Eladó családi ház

Vámosgyörk

35.9 M Ft
2 szoba
67 m2
Eladó családi ház
Eladó családi ház

Hosszúhetény

89.9 M Ft
5 szoba
121 m2
Eladó családi ház
Eladó családi ház

Recsk

59 M Ft
2 szoba
70 m2
Eladó családi ház
Eladó családi ház

Villány, Baross Gábor

130 M Ft
6 szoba
370 m2
Eladó családi ház
Eladó családi ház

Segesd

14.3 M Ft
3 szoba
100 m2
Eladó családi ház
Eladó családi ház

Tiszatenyő

13.99 M Ft
2 szoba
63 m2
Eladó családi ház
Eladó családi ház

Balatonvilágos

94.9 M Ft
6 szoba
179 m2
Eladó családi ház
Eladó családi ház

Kenyeri

39.9 M Ft
3 szoba
94 m2