Seven Pearl

Eladó családi ház
Budakeszi

+ 17 kép 1/20
214 000 000 Ft214 M Ft 475 556 Ft/m2
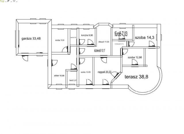
10 szoba
450 m²
építés éve:2005

Részletes adatok

Telekméret: 861 m2
Fűtés: Gázkazán
Energetikai besorolás: Nem adta meg a hirdető

Az OTP Bank lakáshitel ajánlataFizetett hirdetés

+36 20 371
Antal Enikő
referens

Érdekel az OTP Bank kedvezményes lakáshitel ajánlata? *

* A kérdésre „Igen” válasz bejelölése esetén, az „Üzenet küldése” gombra kattintva kijelentem, hogy az OTP Bank Nyrt. Adatkezelési tájékoztatójának tartalmát megismertem és tudomásul vettem.

Eladó családi ház leírása

Eladó családi ház Budakeszin, tágas telekkel és fejlesztési lehetőséggel!

Cím: Budakeszi
Telekméret: 861 m2
Építés éve: 2005
Szerkezet: tégla

Főbb jellemzők:
Falazat: 40 cm vastag tégla.
Tető: cserép fedésű, nem beázott, nem penészes.
Kémény: bélelt.
Nyílászárók: modern, 2 rétegű műanyag ablakok.
Szigetelés: 15 cm vastag homlokzati hőszigetelés.
Közművek: minden közmű rendelkezésre áll.
Gázóra: telken belül.
Villanyóra: a ház falán.
Vízóra: vízaknában.
Napelem: nincs.
Pince: az épület alatt található.
Garázs: 2 autó számára.
Előkert: rendezett, zöldterülettel.
Hátsó kert: családias, gondozott.
Tetőtér: teljesen beépíthető, további helyiségek kialakíthatók.

Többgenerációs és üzleti lehetőségek:
Az ingatlan háromgenerációs együttélésre is kiválóan alkalmas, tágas elrendezése és több szintje miatt. Több lakásra is bontható.
A földszint tökéletesen megfelel munkahelyiségek, rendelők vagy irodák kialakítására, például:
pszichológusi szoba, könyvelői iroda, orvosi rendelő, vagy akár home office célra.
A tetőtér teljes beépítésével további szobák, fürdőszoba vagy külön lakrész alakítható ki, így a ház bővítési és funkcionális fejlesztési potenciállal rendelkezik.

Állapot és dokumentáció:
Az ingatlan egy ütemben épült, az építési engedélyek rendben vannak.
Tehermentes.
Egy tulajdonosa van.
Stabil, jól karbantartott épület, amely kazáncserével és kisebb korszerűsítéssel hosszú távon kényelmes, energiatakarékos otthonná tehető.

Környezeti jellemzők:
Az ingatlan Budakeszi egyik legkedveltebb, csendes és biztonságos utcájában található.
A Budai Tájvédelmi Körzet közelsége miatt a levegő tiszta, a környék kiválóan alkalmas kirándulásra, futásra és szabadtéri pihenésre.
A környéken nincs nagyfeszültségű vezeték, gyár, szemétégető, szennyvíztelep vagy vasútvonal.
Iskolák, óvodák, gyógyszertár, boltok, orvosi rendelő gyalogosan is elérhetők.
Tömegközlekedés: a 22es és 222es BKK buszjáratokkal Budapest Széll Kálmán tér 25, 30 perc alatt megközelíthető.
Autóval: a Budakeszi út vagy az M1,M7 autópályákon keresztül Budapest gyorsan elérhető.
A környék nyugodt, zöld és családbarát, így ideális választás mind családoknak, mind vállalkozóknak, akik otthoni munkavégzésre is alkalmas ingatlant keresnek.

Összegzés:
Ez az ingatlan kiváló lehetőséget kínál azok számára, akik:
többgenerációs családi házat keresnek, vállalkozásukat otthonról szeretnék működtetni, vagy befektetési céllal keresnek jól alakítható, értékálló budakeszi ingatlant.
Antal Enikő
+36/20-371-2105

Hirdetés feltöltve: 2026. 03. 10. Utoljára módosítva: 2026. 03. 10.

Az ingatlan elhelyezkedése

Cím: Budakeszi

Eladó családi házak a környékről

Budakeszi, Fő utca
Eladó családi ház

Budakeszi

62.5 M Ft
2 + 1 szoba
100 m²
Budakeszi, Budakeszi kertváros
Eladó családi ház

Budakeszi

140 M Ft
2 szoba
55 m²
Remeteszőlős
Eladó családi ház

Remeteszőlős

399.9 M Ft
5 + 2 szoba
260 m²
Tápiószele
Eladó családi ház

Tápiószele

32.9 M Ft
4 szoba
200 m²
Tápiószele
Eladó családi ház

Tápiószele

37.9 M Ft
4 szoba
141 m²
Budakeszi, Fő utca
Eladó családi ház

Budakeszi

62.5 M Ft
2 + 1 szoba
100 m²
Budakeszi, Makkosmária
Eladó családi ház

Budakeszi

100 M Ft
1 szoba
10 m²
Budakeszi
Eladó családi ház

Budakeszi

299 M Ft
8 szoba
350 m²
Tápiószőlős
Eladó családi ház

Tápiószőlős

34.9 M Ft
5 szoba
210 m²
Tápiógyörgye
Eladó családi ház

Tápiógyörgye

19.9 M Ft
3 szoba
65 m²
Budakeszi
Eladó családi ház

Budakeszi

339 M Ft
5 szoba
340 m²
Nagykáta
Eladó családi ház

Nagykáta

130 M Ft
3 szoba
203 m²
Pécel, Reményik Sándor utca
Eladó családi ház

Pécel

296 M Ft
6 szoba
396 m²
Kerepes
Eladó családi ház

Kerepes

81.99 M Ft
5 szoba
102 m²
Tápiószele
Eladó családi ház

Tápiószele

11.9 M Ft
3 szoba
62 m²
Budaörs
Eladó családi ház

Budaörs

400 M Ft
12 szoba
583 m²
Budakeszi
Eladó családi ház

Budakeszi

62.5 M Ft
2 + 1 szoba
100 m²
Budakeszi, Makkosmária, Gerinc utca
Eladó családi ház

Budakeszi

25 M Ft
100 szoba
100 m²
Tápiószentmárton
Eladó családi ház

Tápiószentmárton

16.5 M Ft
3 szoba
50 m²
Kerepes
Eladó családi ház

Kerepes

199 M Ft
6 szoba
360 m²
Budakeszi, Budakeszi kertváros
Eladó családi ház

Budakeszi

229 M Ft
10 szoba
450 m²
Budakeszi
Eladó családi ház

Budakeszi

339 M Ft
5 szoba
340 m²
Tápiószentmárton
Eladó családi ház

Tápiószentmárton

7.9 M Ft
2 + 1 szoba
86 m²
Budakeszi, Művész utca
Eladó családi ház

Budakeszi

49.9 M Ft
1 szoba
50 m²

Falusi CSOK ingatlanok

Maráza
Eladó családi ház

Maráza

29.9 M Ft
3 szoba
96 m²
Váckisújfalu, Petőfi Sándor utca
Eladó családi ház

Váckisújfalu

84.77 M Ft
4 szoba
166 m²
Bükkábrány
Eladó családi ház

Bükkábrány

37.5 M Ft
5 + 1 szoba
180 m²
Tápióbicske
Eladó családi ház

Tápióbicske

15 M Ft
2 szoba
62 m²
Bugac
Eladó családi ház

Bugac

15 M Ft
3 szoba
52 m²
Úri
Eladó családi ház

Úri

149 M Ft
5 szoba
279 m²
Csákánydoroszló
Eladó családi ház

Csákánydoroszló

98.9 M Ft
4 szoba
218 m²
Balatonfenyves
Eladó ikerház

Balatonfenyves

55 M Ft
3 szoba
52 m²