Astora Márvány8

Eladó családi ház
Ádánd

Figyelem!

Ez az ingatlan a 2019.07.01-től induló falusi CSOK által támogatott településen található

+ 14 kép 1/17
98 000 000 Ft98 M Ft 653 333 Ft/m2
3 szoba
150 m²

Részletes adatok

Állapot: Felújított
Telekméret: 4820 m2
Fűtés: Egyéb
Parkolás: Garázs
Közmű: Víz, Villany, Csatorna
Energetikai besorolás: Nem adta meg a hirdető

Az OTP Bank lakáshitel ajánlataFizetett hirdetés

+36 70 384
Sellő Ingatlan Iroda
Sellő Ingatlan Iroda

Érdekel az OTP Bank kedvezményes lakáshitel ajánlata? *

* A kérdésre „Igen” válasz bejelölése esetén, az „Üzenet küldése” gombra kattintva kijelentem, hogy az OTP Bank Nyrt. Adatkezelési tájékoztatójának tartalmát megismertem és tudomásul vettem.

Eladó családi ház leírása

A festői Somogyban kínálunk eladásra egy kispolgári 150 m²-es kispolgári, tornácos családi házat.

Az egy szintes ház Ádándon kapott helyet, mindössze 15 perces autó útra a Balatontól.


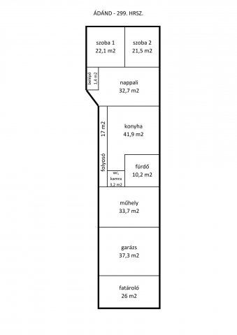
Kialakítását tekintve : 2 szoba, nappali, konyha-étkező, fürdőszoba WC-vel, külön WC, kamra, tornác.

A ház belső elosztása praktikus és jól kihasználható.

A konyha és az étkező egy légtérben található, amely tágas helyet biztosít a közös étkezésekhez és családi, baráti együttlétekhez.


Az épület vályog és tégla falazattal épült,

tetőszerkezete stabil, cserépfedésű

belső felújítása 2019 nyarán történt: - nyílászárók cseréje, -fürdőszoba és WC teljes megújulása,- konyha kialakítása,

Fűtés kandallóval ( két helységre nyílóan ), - hőpanelokkal és - Daikin klímával megoldott.

Közművek: Víz, villany és csatorna bekötve, gázcsonk az ingatlan előtt.


A lakórész folytatásában , de külön nyílóan 3 melléképület van, garázs + 2 tároló.


Az 5617 m²-es telek enyhén lejtős, csodálatos kilátás nyílik a Sió-völgyre.

A hátsó kert ideális teret biztosít kertészkedéshez, további gyümölcsfák telepítéséhez vagy egy pihenőkert kialakításához.

A terület lehetőséget ad önellátásra, akár állattartásra is, mivel a környező terület nyugodt, természetközeli.

A szomszédos, teljesen kertkapcsolatos 4820 m²-es szintén panorámás építési telekkel együtt megvásárolható, melynek irányára további 25.000.000 Ft.

Az ingatlan gyakorlatilag a település központjában van, így minden egy röpke sétával elérhető: iskola, buszmegálló, gyógyertár, bevásárlási lehetőség, hivatal .

Az M7-es autópálya közelsége révén Budapest is 1 óra alatt elérhető.

Ideális választás azoknak, akik vidéki nyugalmat keresnek, de mégis szeretnének a Balaton és a városok közelségében maradni.

Befektetőknek is ajánljuk!

Az ingatlan állandó lakhatásra vagy nyaralónak is kiváló választás.

Az ingatlan előzetes egyeztetéssel,de rugalmassan megtekinthető.

Üdvözlettel:
Plóth Judit

Hirdetés feltöltve: 2026. 02. 17. Utoljára módosítva: 2026. 02. 17.

3 szobás családi házak ára Ádándon

Ebből az összehasonlításból megtudhatod, hogyan viszonyul a lakás ára a környékbeli családi házak átlagos árához. Ez nem azt jelenti, hogy ennyivel olcsóbb vagy drágább, mint amennyit a lakás ér, hanem hogy ennyivel tér el a környékbeli átlagtól.

Ennek a m² ára
Ádánd m² ár
653 e Ft
434 e Ft -51%
Ennek az ára
Ádánd átlagár
98 M Ft m Ft
39.9 m Ft -145%

Az ingatlan elhelyezkedése

Cím: Ádánd

Eladó családi házak a környékről

Balatonkeresztúr
Eladó családi ház

Balatonkeresztúr

147.9 M Ft
4 szoba
160 m²
Ádánd
Eladó családi ház

Ádánd

39.9 M Ft
3 szoba
66 m²
Bábonymegyer
Eladó családi ház

Bábonymegyer

19.9 M Ft
4 szoba
100 m²
Ádánd
Eladó családi ház

Ádánd

53.5 M Ft
6 szoba
180 m²
Balatonszentgyörgy
Eladó családi ház

Balatonszentgyörgy

134 M Ft
4 szoba
170 m²
Zamárdi
Eladó családi ház

Zamárdi

126 M Ft
6 szoba
120 m²
Balatonföldvár
Eladó családi ház

Balatonföldvár

78.821 M Ft
4 szoba
93 m²
Ádánd
Eladó családi ház

Ádánd

229 M Ft
5 szoba
200 m²
Ádánd
Eladó családi ház

Ádánd

79.99 M Ft
4 szoba
130 m²
Siófok
Eladó családi ház

Siófok

135 M Ft
7 + 2 szoba
250 m²
Ádánd
Eladó családi ház

Ádánd

37.5 M Ft
2 szoba
50 m²
Ádánd
Eladó családi ház

Ádánd

79 M Ft
4 szoba
140 m²
Balatonberény
Eladó családi ház

Balatonberény

128 M Ft
3 + 1 szoba
121 m²
Fonyód
Eladó családi ház

Fonyód

112.9 M Ft
4 + 1 szoba
150 m²
Ádánd
Eladó családi ház

Ádánd

79 M Ft
4 szoba
140 m²
Balatonlelle
Eladó családi ház

Balatonlelle

123 M Ft
3 + 2 szoba
140 m²
Balatonlelle
Eladó családi ház

Balatonlelle

620 M Ft
12 szoba
1300 m²
Siófok
Eladó családi ház

Siófok

330 M Ft
12 szoba
0 m²
Ádánd
Eladó családi ház

Ádánd

69.9 M Ft
6 szoba
251 m²
Ádánd
Eladó családi ház

Ádánd

79 M Ft
4 szoba
140 m²
Ádánd
Eladó családi ház

Ádánd

45 M Ft
3 szoba
80 m²
Ádánd
Eladó családi ház

Ádánd

30 M Ft
2 szoba
90 m²
Ádánd
Eladó családi ház

Ádánd

98 M Ft
5 szoba
135 m²
Balatonlelle
Eladó családi ház

Balatonlelle

78 M Ft
4 szoba
117 m²

Falusi CSOK ingatlanok

Nyírtura
Eladó családi ház

Nyírtura

99 M Ft
4 szoba
280 m²
Háromfa, Kossuth
Eladó családi ház

Háromfa

22.4 M Ft
1247 m²
139 m²
Somlóvásárhely
Eladó családi ház

Somlóvásárhely

54.99 M Ft
2 szoba
71 m²
Újszilvás
Eladó családi ház

Újszilvás

38 M Ft
3 szoba
100 m²
Nyáregyháza
Eladó családi ház

Nyáregyháza

68.9 M Ft
4 szoba
142 m²
Szőlősgyörök
Eladó családi ház

Szőlősgyörök

61.9 M Ft
3 szoba
119 m²
Pécsvárad, Külterület
Eladó családi ház

Pécsvárad

16.5 M Ft
2 szoba
66 m²
Somogygeszti
Eladó családi ház

Somogygeszti

10.9 M Ft
2 szoba
115 m²

Falusi CSOK ingatlanok

Bugac
Eladó családi ház

Bugac

155 M Ft
2.15 ha
187 m²
Tésenfa, Kossuth utca 23/a
Eladó családi ház

Tésenfa

5.55 M Ft
1 + 1 szoba
109 m²
Rábapaty
Eladó családi ház

Rábapaty

99.99 M Ft
5 szoba
132 m²
Alsónemesapáti
Eladó családi ház

Alsónemesapáti

27.9 M Ft
3 szoba
68 m²
Egyed
Eladó családi ház

Egyed

24.9 M Ft
2 + 1 szoba
56 m²
Törtel
Eladó családi ház

Törtel

25.9 M Ft
2 szoba
59 m²
Balatonszemes, Ady E. utca 6
Eladó téglalakás

Balatonszemes

108.9 M Ft
2 + 1 szoba
63 m²
Cún, Fő utca
Eladó családi ház

Cún

8.5 M Ft
3 szoba
90 m²