Kiadó üzlethelyiség
Budapest, VII. kerület, földszint
Részletes adatok
Az OTP Bank lakáshitel ajánlataFizetett hirdetés
A tájékoztatás nem teljes körű és nem minősül ajánlattételnek. Az OTP Évnyerő Lakáshitelei 1 éves türelmi idős kölcsönök, amellyel az első 12 hónapban alacsonyabb a havi törlesztőrészlet. A tőke törlesztését a 13. hónaptól kell megkezdeni.
Kiadó üzlethelyiség leírása
Utcafronti, nagy portállal rendelkező, földszinti, 97 m2 + 48 m2-es üzlethelyiség KIADÓ a VII. kerületben!
Széles utcafronttal rendelkező, üvegportálos, belső kétszintes üzlethelyiség keresi új bérlőjét a VII. kerületben, a Városliget mellett. Ha olyan tágas és világos üzletet keres vállalkozása számára, ami modern épületben és frekventált helyen van, akkor ezt feltétlenül nézze meg!
LOKÁCIÓ ÉS KÖZLEKEDÉS:
- VII. kerület, Külső-Erzsébetváros.
- Kiváló tömegközlekedési kapcsolatok és teljes infrastruktúra a közelben.
- A Garay Center 250 méter.
- A Városliget 400 méter.
- A Récsei Center 10 perc gyalog.
- A Puskás Aréna 15 perc gyalog.
- 300 méter sugarú körön belül több autóbusz és troli megállója elérhető.
- Közvetlen közelben üzletek, szolgáltatók, kulturális látnivalók, vendéglátóhelyek.
AZ ÉPÜLET:
- 2014-ben átadott, földszint + 6 emeletes, jó állapotú, tégla építésű társasház.
- Az épület külső-belső homlokzata kifejezetten jó állapotú.
- Az épület előtt 2 db, rakodásra fenntartott hely áll rendelkezésre.
- Parkolás utcán lehetséges, fizetős övezetben.
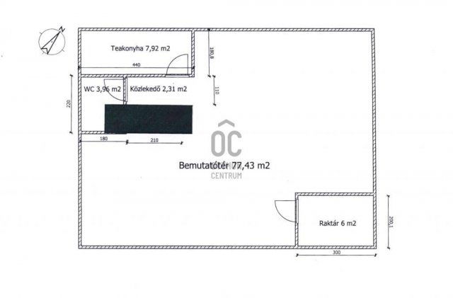
AZ ÜZLETHELYISÉG:
- Földszinti, belső kétszintes, nagy üvegportállal rendelkező ingatlan.
- Alsó szintje 97 m2-es és rendelkezik egy 48 m2 alapterületű, teljes értékű állógalériával.
- Azonnal használható állapotban van, jelenleg bemutatóteremként üzemel.
- Kiváló az alaprajza, tágas és világos, jól kihasználható terekkel rendelkezik.
- Felosztása az alsó szinten: bemutatótér, teakonyha, raktár, WC-kézmosó.
- Felosztása a galérián: egy légterű iroda, tárgyaló, raktár.
- Fűtése és melegvíz ellátása házközponti, egyedi méréssel.
- Egyedi hűtés-fűtés is lehetséges saját hőszivattyúval.
- Nyílászárói fém szerkezetűek.
- Az üzlethelyiség riasztóval felszerelt.
EGYÉB INFORMÁCIÓK:
- Az ingatlant jelenleg a tulajdonos használja, 2026. január elejétől vehető birtokba.
- A tulajdonos hosszabb távra szeretné bérbe adni.
- Hasznosítás céljából kifejezetten alkalmas kisebb vállalkozásoknak, bemutatótermeknek, irodának, tárolásra.
- Erős szaggal és nagy zajjal járó tevékenységet nem lehet a társasházban folytatni.
- A tulajdonos cég, a bérleti díjról ÁFÁ-s számlát állít ki.
- A hirdetésben szereplő bérleti díj már az ÁFÁ-t is tartalmazza (1.000.000 Ft+ÁFA)
- 2 havi kaució szükséges (2.000.000 Ft + ÁFA).
Érdeklődés esetén kérem, hívjon bizalommal!
Hirdetés feltöltve: 2025. 10. 19. Utoljára módosítva: 2025. 10. 19.
üzlethelyiségek ára Budapesten
Ebből az összehasonlításból megtudhatod, hogyan viszonyul a lakás ára a környékbeli üzlethelyiségek átlagos árához. Ez nem azt jelenti, hogy ennyivel olcsóbb vagy drágább, mint amennyit a lakás ér, hanem hogy ennyivel tér el a környékbeli átlagtól.
Az ingatlan elhelyezkedése
Cím: Budapest, VII. kerület, földszint
Kiadó ingatlanok a környékről

VII. kerület, Istvánmező, Keleti Pályaudvar közeli bevásárlóközpont

VII. kerület, Külső Erzsébetváros, Munkás utca 6

VII. kerület, Külső Erzsébetváros, Péterfy Sándor utca

VII. kerület, Belső Erzsébetváros, Király utca

VII. kerület, Istvánmező, Keleti Pályaudvar közeli bevásárlóközpont

VII. kerület, Istvánmező, Keleti Pályaudvar közeli bevásárlóközpont

VII. kerület, Belső Erzsébetváros, Erzsébet körút 26
