Astora Olive Club House

Kiadó iroda
Budapest, VIII. kerület, 2. emelet

+ 17 kép 1/20
1 009 833 Ft1010 E Ft / hó 2 506 Ft/m2
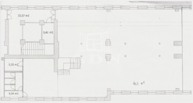
403 m²
2. emelet
építés éve:1901

Részletes adatok

Állapot: Felújított
Fűtés: Gázkazán
Emelet: 2. emelet
Parkolás: Kocsibeálló
Energetikai besorolás: Nem adta meg a hirdető

Az OTP Bank lakáshitel ajánlataFizetett hirdetés

Hitelösszeg 10 millió Ft
Futamidő 20 év
Induló törlesztőrészlet 67 508 Ft
Törlesztőrészlet a 13. hónaptól 86 071 Ft
THM 8,6 %

A tájékoztatás nem teljes körű és nem minősül ajánlattételnek. Az OTP Évnyerő Lakáshitelei 1 éves türelmi idős kölcsönök, amellyel az első 12 hónapban alacsonyabb a havi törlesztőrészlet. A tőke törlesztését a 13. hónaptól kell megkezdeni.

    Részletes kalkuláció
    +36 20 402
    Béres Tünde
    referens

    Érdekel az OTP Bank kedvezményes lakáshitel ajánlata? *

    * A kérdésre „Igen” válasz bejelölése esetén, az „Üzenet küldése” gombra kattintva kijelentem, hogy az OTP Bank Nyrt. Adatkezelési tájékoztatójának tartalmát megismertem és tudomásul vettem.

    Kiadó iroda leírása

    TELJESEN FELÚJÍTOTT IRODA HOSSZÚ TÁVRA KIADÓ!


    VIII. kerület frekventált részén az Elnök utcában!Kiváló lehetőség irodai munka végzésére,de akár más tevékenységre is, mint például: tánciskola, sport tevékenység, szépség ipar, informatika,orvosi rendelő, kiállító terem, vagy bemutató terem, és egyéb üzleti vállalkozásra.

    Röviden az ingatlanról:

    - Két bejárattal rendelkezik,( Az Orczy út felől illetve a belső udvar őrzött parkolója felől)
    - Beléptető rendszer illetve riasztó kiépítésre került
    - 2021- ben a felújítás kiterjedt a festésre, burkolásra, és új műanyag nyílászárók cseréjére
    - A nagy ablakoknak köszönhetően világos helyiségek(a belső udvarra és az Orczy útra is nyílnak ablakok)
    - Beosztása kiváló, a nagyteremből, három kisebb helyiség(tárgyaló),felszerelt konyha, és két mellékhelyiség nyílik.
    - Fűtése egy modern hőszivattyús rendszer, mely télen fűt- nyáron hűt kedvező energia felhasználással.
    - Üzemeltetési költség 1 euro/ nm
    - Bérleti díj: 7 euro/ nm

    3 havi kaució ellenében, hosszú távra KIADÓ.

    A bérleményhez 1 db parkoló tartozik, melynek külön díja van, és külön szerződéssel vehető igénybe. Ennek ára: 20.000,- Ft+ áfa

    Az épület jól megközelíthető metróval a Nagyvárad téri megállótól pár perc sétával vagy villamossal, busszal.


    Hívjon bizalommal! ...TOVÁBBI, TÖBBEZRES INGATLAN KÍNÁLAT: www.gdn-ingatlan.hu - GDN azonosító: 361860

    Hirdetés feltöltve: 2026. 04. 16. Utoljára módosítva: 2026. 05. 16.

    Irodák ára Budapesten

    Ebből az összehasonlításból megtudhatod, hogyan viszonyul a lakás ára a környékbeli irodák átlagos árához. Ez nem azt jelenti, hogy ennyivel olcsóbb vagy drágább, mint amennyit a lakás ér, hanem hogy ennyivel tér el a környékbeli átlagtól.

    Ennek a m² ára
    VIII. kerület m² ár
    Budapest m² ár
    3 e Ft
    4 e Ft 32%
    4 e Ft 42%
    Ennek az ára
    VIII. kerület átlagár
    Budapest átlagár
    1010 E Ft / hó m Ft
    1.1 m Ft 8%
    1.1 m Ft 4%

    Az ingatlan elhelyezkedése

    Cím: Budapest, VIII. kerület, 2. emelet

    Kiadó ingatlanok a környékről

    VI. kerület, Külső Terézváros, Bajcsy-Zsilinszky út
    Kiadó téglalakás, albérlet

    Budapest, VI. kerület

    160 E Ft / hó
    1 szoba
    29 m²
    VIII. kerület, Astoria
    Kiadó iroda

    Budapest, VIII. kerület

    1600 E Ft / hó
    528 m²
    XII. kerület
    Kiadó téglalakás, albérlet

    Budapest, XII. kerület

    700 E Ft / hó
    5 szoba
    145 m²
    XV. kerület
    Kiadó panellakás, albérlet

    Budapest, XV. kerület

    260 E Ft / hó
    3 szoba
    55 m²
    XI. kerület
    Kiadó téglalakás, albérlet

    Budapest, XI. kerület

    250 E Ft / hó
    2 szoba
    53 m²
    VIII. kerület
    Kiadó iroda

    Budapest, VIII. kerület

    2363 E Ft / hó
    250 m²
    XIV. kerület
    Kiadó téglalakás, albérlet

    Budapest, XIV. kerület

    300 E Ft / hó
    1 szoba
    65 m²
    VIII. kerület
    Kiadó iroda

    Budapest, VIII. kerület

    938 E Ft / hó
    183 m²
    VIII. kerület, Tisztviselőtelep, Elnök utca
    Kiadó iroda

    Budapest, VIII. kerület

    543 E Ft / hó
    3 szoba
    191 m²
    VIII. kerület
    Kiadó iroda

    Budapest, VIII. kerület

    1281 E Ft / hó
    250 m²
    VIII. kerület, Tisztviselőtelep, Elnök utca
    Kiadó iroda

    Budapest, VIII. kerület

    720 E Ft / hó
    262 m²
    IX. kerület, Ferencváros, Balázs Béla utca
    Kiadó téglalakás, albérlet

    Budapest, IX. kerület

    240 E Ft / hó
    1 szoba
    25 m²
    VIII. kerület, Palotanegyed, Bródy Sándor utca
    Kiadó iroda

    Budapest, VIII. kerület

    60 E Ft / hó
    1 szoba
    8 m²
    VIII. kerület
    Kiadó iroda

    Budapest, VIII. kerület

    938 E Ft / hó
    183 m²
    VIII. kerület, Józsefváros, Józsefvárosi Piac közelében
    Kiadó iroda

    Budapest, VIII. kerület

    760 E Ft / hó
    200 m²
    IX. kerület, Ferencváros, Vágóhíd utca
    Kiadó téglalakás, albérlet

    Budapest, IX. kerület

    225 E Ft / hó
    1 + 1 szoba
    38 m²
    VI. kerület, Belső Terézváros, Teréz krt
    Kiadó téglalakás, albérlet

    Budapest, VI. kerület

    290 E Ft / hó
    2 szoba
    45 m²
    VIII. kerület
    Kiadó iroda

    Budapest, VIII. kerület

    1127 E Ft / hó
    220 m²
    VIII. kerület
    Kiadó iroda

    Budapest, VIII. kerület

    414 E Ft / hó
    2 szoba
    148 m²
    VIII. kerület
    Kiadó iroda

    Budapest, VIII. kerület

    900 E Ft / hó
    330 m²
    VIII. kerület
    Kiadó iroda

    Budapest, VIII. kerület

    938 E Ft / hó
    183 m²
    IX. kerület, Ferencváros, Bokréta utca
    Kiadó téglalakás, albérlet

    Budapest, IX. kerület

    270 E Ft / hó
    2 szoba
    45 m²
    XX. kerület, Erzsébetfalva, Kende Kanuth utca
    Kiadó téglalakás, albérlet

    Budapest, XX. kerület

    180 E Ft / hó
    1 szoba
    50 m²
    IX. kerület
    Kiadó garázs

    Budapest, IX. kerület

    30 E Ft / hó
    12 m²

    Falusi CSOK ingatlanok

    Sumony
    Eladó családi ház

    Sumony

    19 M Ft
    4 szoba
    120 m²
    Balatonszemes
    Eladó téglalakás

    Balatonszemes

    119.9 M Ft
    2 szoba
    0 m²
    Mesztegnyő
    Eladó családi ház

    Mesztegnyő

    23.8 M Ft
    2 szoba
    70 m²
    Fertőd
    Eladó családi ház

    Fertőd

    140.91 M Ft
    4 + 2 szoba
    190 m²
    Szabadbattyán
    Eladó családi ház

    Szabadbattyán

    139.9 M Ft
    4 szoba
    201 m²
    Becsehely
    Eladó családi ház

    Becsehely

    24.6 M Ft
    2 szoba
    99 m²
    Vértesboglár, Dózsa utca
    Eladó családi ház

    Vértesboglár

    99 M Ft
    4 szoba
    110 m²
    Nagybaracska
    Eladó családi ház

    Nagybaracska

    35 M Ft
    3 szoba
    110 m²