BAM Living

Eladó üzlethelyiség
Szekszárd

+ 7 kép 1/10
135 000 000 Ft135 M Ft 535 714 Ft/m2
252 m2
építés éve:1995

Részletes adatok

Telekméret: 1316 m2
Fűtés: Gázkazán
Közmű: Gáz, Villany, Csatorna
Energetikai besorolás: Nem adta meg a hirdető

Az OTP Bank lakáshitel ajánlataFizetett hirdetés

+36 70 465
Bihary Szabolcs
referens

Érdekel az OTP Bank kedvezményes lakáshitel ajánlata? *

* A kérdésre „Igen” válasz bejelölése esetén, az „Üzenet küldése” gombra kattintva kijelentem, hogy az OTP Bank Nyrt. Adatkezelési tájékoztatójának tartalmát megismertem és tudomásul vettem.

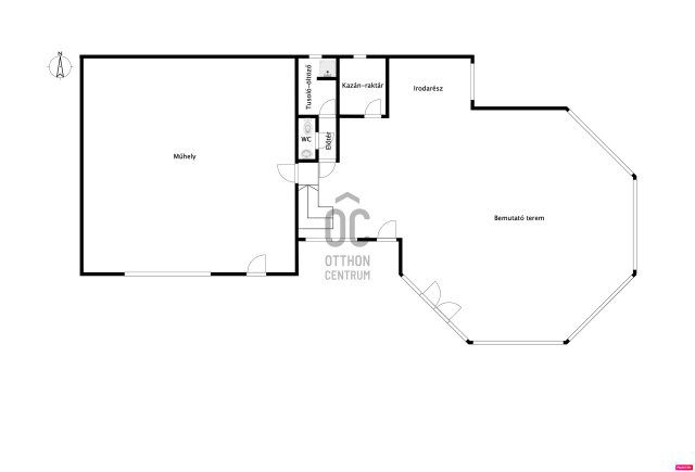
Eladó üzlethelyiség leírása

Frekventált helyen, korábban autó- és motor-szalonként működő üzlethelyiség várja új tulajdonosát.

Az épület szigetelt, LINDAB szerkezetű csarnok.
Az épület fűtése gázkazánnal megoldott, a bemutató terem részen padló fűtéssel, a műhely részen radiátoros fűtéssel.
A nyári melegebb időszak klímával hűsíthető a bemutató teremnél.
A műhely 2 beállásos, egyik szerelőaknás, ipari árammal, 100 m2 alapterületű.

Menjünk, nézzük meg ezt a nem mindennapi ajánlatot!

Teljes körű pénzügyi megoldások ügyintézése díjmentesen.
Minden élethelyzetre végzünk pénzügyi elemzést - ha vásárolni szeretne, segítünk, hogy ezt a legjobb feltételek mellett tegye; ha eladni szeretné ingatlanát, nézzük meg, hátha érdemes meglévő hitelét átváltani.
Keressen bizalommal, szakértők vagyunk!

Hirdetés feltöltve: 2026. 01. 11. Utoljára módosítva: 2026. 01. 13.

üzlethelyiségek ára Szekszárdon

Ebből az összehasonlításból megtudhatod, hogyan viszonyul a lakás ára a környékbeli üzlethelyiségek átlagos árához. Ez nem azt jelenti, hogy ennyivel olcsóbb vagy drágább, mint amennyit a lakás ér, hanem hogy ennyivel tér el a környékbeli átlagtól.

Ennek a m² ára
Szekszárd m² ár
536 e Ft
779 e Ft 31%
Ennek az ára
Szekszárd átlagár
135 M Ft m Ft
26.3 m Ft -413%

Az ingatlan elhelyezkedése

Cím: Szekszárd

Eladó családi házak a környékről

Eladó családi ház
Eladó családi ház

Szekszárd

28.5 M Ft
1 + 2 szoba
60 m2
Eladó családi ház
Eladó családi ház

Szekszárd, Szent László utca

35 M Ft
8 szoba
275 m2
Eladó családi ház
Eladó családi ház

Szekszárd

29.999 M Ft
1 szoba
30 m2
Eladó családi ház
Eladó családi ház

Paks

60 M Ft
4 szoba
120 m2
Eladó családi ház
Eladó családi ház

Szekszárd

31 M Ft
435 m²
30 m2
Eladó családi ház
Eladó családi ház

Dunaszentgyörgy

10.8 M Ft
3 szoba
65 m2
Eladó családi ház
Eladó családi ház

Szekszárd, Faddi tető

7.9 M Ft
1 szoba
38 m2
Eladó családi ház
Eladó családi ház

Paks

21.9 M Ft
2 szoba
70 m2
Eladó családi ház
Eladó családi ház

Paks

46.9 M Ft
3 szoba
81 m2
Eladó családi ház
Eladó családi ház

Szekszárd

9.8 M Ft
3 szoba
73 m2
Eladó családi ház
Eladó családi ház

Szekszárd

34.8 M Ft
3 szoba
99 m2
Eladó családi ház
Eladó családi ház

Szekszárd

126 M Ft
6 szoba
155 m2
Eladó családi ház
Eladó családi ház

Szekszárd

19.99 M Ft
2 szoba
66 m2
Eladó családi ház
Eladó családi ház

Paks

39.9 M Ft
3 szoba
75 m2
Eladó családi ház
Eladó családi ház

Szekszárd

82 M Ft
4 szoba
108 m2
Eladó családi ház
Eladó családi ház

Tamási

41 M Ft
4 + 2 szoba
150 m2
Eladó családi ház
Eladó családi ház

Paks

29.9 M Ft
3 szoba
90 m2
Eladó családi ház
Eladó családi ház

Szekszárd

69 M Ft
4 szoba
111 m2
Eladó családi ház
Eladó családi ház

Bölcske

49.999 M Ft
2 szoba
120 m2
Eladó családi ház
Eladó családi ház

Paks

65 M Ft
4 szoba
159 m2
Eladó családi ház
Eladó családi ház

Szekszárd, Gesztenyés

14.3 M Ft
2 szoba
25 m2
Eladó családi ház
Eladó családi ház

Dunaföldvár

53 M Ft
2 + 1 szoba
118 m2
Eladó családi ház
Eladó családi ház

Paks

21.9 M Ft
2 szoba
70 m2
Eladó családi ház
Eladó családi ház

Paks

220 M Ft
5 szoba
264 m2

Falusi CSOK ingatlanok

Eladó családi ház
Eladó családi ház

Kislőd

53.2 M Ft
3 szoba
86 m2
Eladó családi ház
Eladó családi ház

Ásványráró

77.755 M Ft
4 szoba
82 m2
Eladó családi ház
Eladó családi ház

Görcsöny

49.9 M Ft
5 szoba
120 m2
Eladó családi ház
Eladó családi ház

Kengyel

22.9 M Ft
3 szoba
100 m2
Eladó családi ház
Eladó családi ház

Berkesd

48.9 M Ft
8 szoba
180 m2
Eladó családi ház
Eladó családi ház

Bükkzsérc

109.99 M Ft
5 + 1 szoba
243 m2
Eladó családi ház
Eladó családi ház

Törtel

59.9 M Ft
3 szoba
66 m2
Eladó családi ház
Eladó családi ház

Tenk

78 M Ft
5 szoba
126 m2