Kedves Felhasználónk! Rendszerfrissítés miatt az oldalunk 2026. február 9-én 12 órától várhatóan 20 óráig nem lesz elérhető. Köszönjük megértésed!
Astora Márvány8

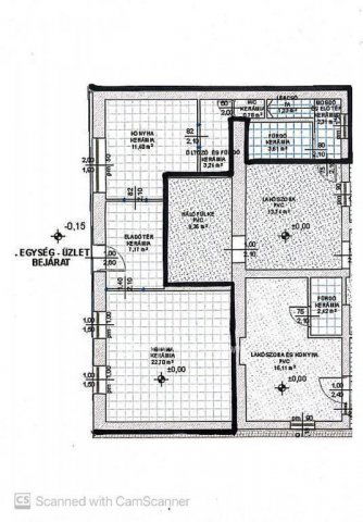
Eladó üzlethelyiség
Budapest, XX. kerület, Kossuthfalva, földszint

+ 8 kép 1/11
33 990 000 Ft33.99 M Ft 738 913 Ft/m2
46 m2
földszint
építés éve:1985

Részletes adatok

Fűtés: Elektromos
Emelet: földszint
Energetikai besorolás: Nem adta meg a hirdető

Az OTP Bank lakáshitel ajánlataFizetett hirdetés

+36 70 947
Boda Katalin
OTPip - Érd Bajcsy-Zsilinszky út 160 - OTP Ingatlanpont Iroda

Érdekel az OTP Bank kedvezményes lakáshitel ajánlata? *

* A kérdésre „Igen” válasz bejelölése esetén, az „Üzenet küldése” gombra kattintva kijelentem, hogy az OTP Bank Nyrt. Adatkezelési tájékoztatójának tartalmát megismertem és tudomásul vettem.

Eladó üzlethelyiség leírása

XX. kerület Kossuthfalván utcai bejáratú felújított 46m2-es üzlethelység eladó, jelenleg bérlő van a helyiségben aki tovább bérelné az üzletet.
Kiváló lokáció, főútvonalon. Közelben buszmegálló, iskola. Új hőszigetelt nyílászárók, nagy portál ablak, új padlóburkolat, új elektromos vezetékek, WC/zuhanyzó/mosdó.
Most élelmiszerboltként üzemel, de számtalan szolgáltatásra alkalmas a helyiség, kozmetika, fodrász, masszázs, iroda, fénymásoló, étkezde,
Befektetés céljára is kiváló, jól kiadható.
Vállalkozási hitellel akár 3 %-os hitelre az Öné lehet 4 millió Ft Önrésszel.
Várom megtisztelő hívását a hét minden napján !

Hirdetés feltöltve: 2025. 11. 14. Utoljára módosítva: 2026. 01. 21.

üzlethelyiségek ára Budapesten

Ebből az összehasonlításból megtudhatod, hogyan viszonyul a lakás ára a környékbeli üzlethelyiségek átlagos árához. Ez nem azt jelenti, hogy ennyivel olcsóbb vagy drágább, mint amennyit a lakás ér, hanem hogy ennyivel tér el a környékbeli átlagtól.

Ennek a m² ára
XX. kerület m² ár
Budapest m² ár
739 e Ft
1076 e Ft 31%
1133 e Ft 35%
Ennek az ára
XX. kerület átlagár
Budapest átlagár
33.99 M Ft m Ft
53.4 m Ft 36%
75.8 m Ft 55%

Az ingatlan elhelyezkedése

Cím: Budapest, XX. kerület, Kossuthfalva, földszint

Eladó ingatlanok a környékről

Eladó téglalakás
Eladó téglalakás

VIII. kerület, Palotanegyed, Rákóczi út

180 M Ft
5 szoba
121 m2
Eladó üzlethelyiség
Eladó üzlethelyiség

XX. kerület

68.9 M Ft
142 m2
Eladó üzlethelyiség
Eladó üzlethelyiség

XX. kerület

250 M Ft
610 m2
Eladó üzlethelyiség
Eladó üzlethelyiség

XX. kerület, Erzsébetfalva

229.4 M Ft
240 m2
Eladó téglalakás
Eladó téglalakás

I. kerület, Krisztinaváros, Feszty Árpád utca

78.99 M Ft
1 szoba
28 m2
Eladó téglalakás
Eladó téglalakás

XI. kerület, Albertfalva

88.8 M Ft
2 szoba
51 m2
Eladó téglalakás
Eladó téglalakás

XIII. kerület

53.9 M Ft
1 + 1 szoba
32 m2
Eladó üzlethelyiség
Eladó üzlethelyiség

XX. kerület

155 M Ft
2 + 1 szoba
369 m2
Eladó téglalakás
Eladó téglalakás

XI. kerület, Albertfalva

87.3 M Ft
2 szoba
48 m2
Eladó téglalakás
Eladó téglalakás

III. kerület, Óbuda, Szomolnok utca

89.9 M Ft
2 + 2 szoba
96 m2
Eladó téglalakás
Eladó téglalakás

V. kerület, Belváros, Petőfi Sándor utca

134 M Ft
2 szoba
59 m2
Eladó téglalakás
Eladó téglalakás

I. kerület, Krisztinaváros, Széna tér

189 M Ft
4 szoba
90 m2
Eladó téglalakás
Eladó téglalakás

XIII. kerület, Angyalföld, Fiastyúk utca

39.9 M Ft
1 + 1 szoba
34 m2
Eladó téglalakás
Eladó téglalakás

IX. kerület

106 M Ft
3 + 1 szoba
83 m2
Eladó üzlethelyiség
Eladó üzlethelyiség

XX. kerület, Orsolya utca

9 M Ft
Eladó üzlethelyiség
Eladó üzlethelyiség

XX. kerület

43.9 M Ft
60 m2
Eladó üzlethelyiség
Eladó üzlethelyiség

XX. kerület, Kossuthfalva, Tátra tér

12 M Ft
11 m2
Eladó üzlethelyiség
Eladó üzlethelyiség

XX. kerület, Erzsébetfalva

229.4 M Ft
730 m²
240 m2
Eladó téglalakás
Eladó téglalakás

IV. kerület, Újpest, Kassai utca

84.9 M Ft
2 + 1 szoba
71 m2
Eladó üzlethelyiség
Eladó üzlethelyiség

XX. kerület

68.9 M Ft
142 m2
Eladó ipari ingatlan
Eladó ipari ingatlan

XXI. kerület

450 M Ft
2631 m²
1780 m2
Eladó üzlethelyiség
Eladó üzlethelyiség

XX. kerület

36.9 M Ft
2 szoba
44 m2
Eladó üzlethelyiség
Eladó üzlethelyiség

XX. kerület, Gubacsipuszta

33.99 M Ft
46 m2
Eladó üzlethelyiség
Eladó üzlethelyiség

XX. kerület

68.9 M Ft
142 m2

Falusi CSOK ingatlanok

Eladó családi ház
Eladó családi ház

Döröske

102.832 M Ft
3 szoba
114 m2
Eladó családi ház
Eladó családi ház

Zengővárkony

28 M Ft
3 szoba
87 m2
Eladó családi ház
Eladó családi ház

Sumony

19 M Ft
4 szoba
120 m2
Eladó családi ház
Eladó családi ház

Recsk

40 M Ft
3 + 1 szoba
130 m2
Eladó családi ház
Eladó családi ház

Ivánc

13.5 M Ft
2 szoba
64 m2
Eladó családi ház
Eladó családi ház

Tápszentmiklós

59.8 M Ft
5 szoba
110 m2
Eladó családi ház
Eladó családi ház

Vásárosdombó

14.99 M Ft
2 szoba
69 m2
Eladó családi ház
Eladó családi ház

Ádánd

69.9 M Ft
6 szoba
251 m2