Kedves Felhasználónk! Rendszerfrissítés miatt az oldalunk 2026. február 9-én 12 órától várhatóan 20 óráig nem lesz elérhető. Köszönjük megértésed!
Astora Art House

Eladó üzlethelyiség
Budapest, XX. kerület, Orsolya utca

+ 5 kép 1/8
9 000 000 Ft9 M Ft 0 Ft/m2

Részletes adatok

Fűtés: Egyéb
Energetikai besorolás: Nem adta meg a hirdető

Az OTP Bank lakáshitel ajánlataFizetett hirdetés

Hitelösszeg 10 millió Ft
Futamidő 20 év
Induló törlesztőrészlet 67 508 Ft
Törlesztőrészlet a 13. hónaptól 86 071 Ft
THM 8,6 %

A tájékoztatás nem teljes körű és nem minősül ajánlattételnek. Az OTP Évnyerő Lakáshitelei 1 éves türelmi idős kölcsönök, amellyel az első 12 hónapban alacsonyabb a havi törlesztőrészlet. A tőke törlesztését a 13. hónaptól kell megkezdeni.

    Részletes kalkuláció
    +36 70 708
    Antal Béláné
    Balla Ingatlan - XIX., XX. és XXIII. kerület

    Érdekel az OTP Bank kedvezményes lakáshitel ajánlata? *

    * A kérdésre „Igen” válasz bejelölése esetén, az „Üzenet küldése” gombra kattintva kijelentem, hogy az OTP Bank Nyrt. Adatkezelési tájékoztatójának tartalmát megismertem és tudomásul vettem.

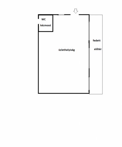
    Eladó üzlethelyiség leírása

    Csak a Balla ingatlan iroda kínálatában . Eladásra kínálok egy saját tulajdonú 15 nm-es+ előteraszos üzlethelyiséget.
    Az épületben külön WC van. Külön mérőórákkal van felszerelve, meleg vízzel ellátott.
    A tulajdonos teljes berendezéssel szeretné átadni az üzletet.
    A üzlet klímával , riasztóval van felszerelve.
    Tetőre szerelt napelemes fényrendszer van kiépítve.
    Alkalmas lehet : zöldségesnek , körmös, kozmetika, trafik, totó-lottó árusító helynek.....stb.
    A környéken a parkolás ingyenes.
    Közlekedés:99-es, 224-es, 35-ös, 123/A, buszok, éjszakai járat, 2B villamos
    Várom megtisztelő hívását, akár hétvégén is.

    Teljes körű, ingyenes személyre szabott hitel és
    ügyvédi tanácsadás, ügyintézés egy helyen.
    Forduljon hozzám bizalommal.

    Hirdetés feltöltve: 2025. 09. 14. Utoljára módosítva: 2026. 02. 07.

    üzlethelyiségek ára Budapesten

    Ebből az összehasonlításból megtudhatod, hogyan viszonyul a lakás ára a környékbeli üzlethelyiségek átlagos árához. Ez nem azt jelenti, hogy ennyivel olcsóbb vagy drágább, mint amennyit a lakás ér, hanem hogy ennyivel tér el a környékbeli átlagtól.

    Ennek a m² ára
    XX. kerület m² ár
    Budapest m² ár
    0 e Ft
    650 e Ft 100%
    1133 e Ft 100%
    Ennek az ára
    XX. kerület átlagár
    Budapest átlagár
    9 M Ft m Ft
    102.9 m Ft 91%
    75.8 m Ft 88%

    Az ingatlan elhelyezkedése

    Cím: Budapest, XX. kerület, Orsolya utca

    Eladó ingatlanok a környékről

    Eladó üzlethelyiség
    Eladó üzlethelyiség

    XX. kerület

    48 M Ft
    65 m2
    Eladó panellakás
    Eladó panellakás

    XIX. kerület, Kispest

    68.99 M Ft
    2 szoba
    53 m2
    Eladó üzlethelyiség
    Eladó üzlethelyiség

    XX. kerület, Kossuthfalva

    43.9 M Ft
    60 m2
    Eladó téglalakás
    Eladó téglalakás

    VIII. kerület, Palotanegyed, Rákóczi út

    180 M Ft
    5 szoba
    121 m2
    Eladó üzlethelyiség
    Eladó üzlethelyiség

    XX. kerület, Kossuthfalva, Tátra tér

    12 M Ft
    11 m2
    Eladó üzlethelyiség
    Eladó üzlethelyiség

    XX. kerület

    390 M Ft
    1640 m2
    Eladó téglalakás
    Eladó téglalakás

    XI. kerület, Albertfalva

    87.3 M Ft
    2 szoba
    48 m2
    Eladó üzlethelyiség
    Eladó üzlethelyiség

    XX. kerület

    43.9 M Ft
    60 m2
    Eladó téglalakás
    Eladó téglalakás

    XI. kerület, Albertfalva

    85.3 M Ft
    2 szoba
    48 m2
    Eladó téglalakás
    Eladó téglalakás

    XI. kerület, Albertfalva

    89 M Ft
    2 szoba
    49 m2
    Eladó üzlethelyiség
    Eladó üzlethelyiség

    XX. kerület

    155 M Ft
    2 + 1 szoba
    369 m2
    Eladó üzlethelyiség
    Eladó üzlethelyiség

    XX. kerület

    36.9 M Ft
    2 szoba
    44 m2
    Eladó téglalakás
    Eladó téglalakás

    IV. kerület, Újpest, Kassai utca

    84.9 M Ft
    2 + 1 szoba
    71 m2
    Eladó üzlethelyiség
    Eladó üzlethelyiség

    XX. kerület

    179.9 M Ft
    514 m2
    Eladó téglalakás
    Eladó téglalakás

    I. kerület, Krisztinaváros, Feszty Árpád utca

    78.99 M Ft
    1 szoba
    28 m2
    Eladó téglalakás
    Eladó téglalakás

    I. kerület, Krisztinaváros, Széna tér

    189 M Ft
    4 szoba
    90 m2
    Eladó téglalakás
    Eladó téglalakás

    VI. kerület, Belső Terézváros, Jókai utca

    87.6 M Ft
    3 szoba
    75 m2
    Eladó téglalakás
    Eladó téglalakás

    XIII. kerület

    53.9 M Ft
    1 + 1 szoba
    32 m2
    Eladó üzlethelyiség
    Eladó üzlethelyiség

    XX. kerület, Gubacsipuszta

    68.9 M Ft
    142 m2
    Eladó iroda
    Eladó iroda

    I. kerület, Víziváros, Széna tér

    189 M Ft
    4 szoba
    90 m2
    Eladó téglalakás
    Eladó téglalakás

    XI. kerület, Gellérthegy, Gyula utca

    130 M Ft
    2 szoba
    56 m2
    Eladó családi ház
    Eladó családi ház

    XXII. kerület, Budafok, Baross utca

    222 M Ft
    6 + 1 szoba
    200 m2
    Eladó téglalakás
    Eladó téglalakás

    XIV. kerület, Kiszugló, Kövér Lajos utca

    168 M Ft
    3 + 1 szoba
    84 m2
    Eladó ipari ingatlan
    Eladó ipari ingatlan

    XXI. kerület

    450 M Ft
    2631 m²
    1780 m2

    Falusi CSOK ingatlanok

    Eladó családi ház
    Eladó családi ház

    Szigliget

    299 M Ft
    3 szoba
    95 m2
    Eladó családi ház
    Eladó családi ház

    Bugac

    55 M Ft
    3 szoba
    90 m2
    Eladó családi ház
    Eladó családi ház

    Dunaszekcső

    12.5 M Ft
    3 szoba
    110 m2
    Eladó családi ház
    Eladó családi ház

    Bábolna

    69.9 M Ft
    5 szoba
    172 m2
    Eladó családi ház
    Eladó családi ház

    Pétfürdő

    74.9 M Ft
    3 szoba
    89 m2
    Eladó családi ház
    Eladó családi ház

    Pusztamonostor

    22 M Ft
    3 szoba
    86 m2
    Eladó családi ház
    Eladó családi ház

    Beremend, 7827 Beremend, Petőfi Sándor utca 10

    11.95 M Ft
    1 + 1 szoba
    124 m2
    Eladó családi ház
    Eladó családi ház

    Ivánc

    13.5 M Ft
    2 szoba
    64 m2