Eladó üzlethelyiség
Ajak
Figyelem!
Ez az ingatlan a 2019.07.01-től induló falusi CSOK által támogatott településen található
Részletes adatok
Az OTP Bank lakáshitel ajánlataFizetett hirdetés
Induló törlesztőrészlet
101 262 Ft /hóTörlesztőrészlet a 13. hónaptól
129 106 Ft /hóInduló törlesztőrészlet
135 016 Ft /hóTörlesztőrészlet a 13. hónaptól
172 142 Ft /hóA tájékoztatás nem teljes körű és nem minősül ajánlattételnek. Az OTP Évnyerő Lakáshitelei 1 éves türelmi idős kölcsönök, amellyel az első 12 hónapban alacsonyabb a havi törlesztőrészlet. A tőke törlesztését a 13. hónaptól kell megkezdeni.

Eladó üzlethelyiség leírása
Szabolcs-Szatmár-Bereg vármegyében Nyíregyháza és Záhony között Kisvárda szomszédságában Ajakon a 4.-es főúttal párhuzamosan kerül elhelyezésre, szabadon álló formában.
A telek egy helyen csatlakozik az úthoz, a személygépkocsik parkolása telken belül megoldott. Könnyen megközelíthető, Főútról jól látható és kiépített helyen.
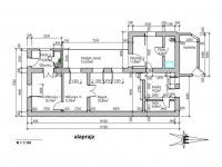
Alapterületek:
- Földszint: 749 m2
- Emelet: 501 m2
Összesen: 1250 m2, ez a beépített terület
A terület összesen: 4855 m2
Az épület villámvédelemmel van ellátva, mindkét szinten biztonsági és írányfény készült.
Energiatakarékosság:
- Napelemmel kiépített, mely fedezi az épület összes energiafogyasztását !!!
A szolgáltatóházat a tulajdonos Disco-ként használta, de bármilyen tevékenységre használható: pl.autó szalon ,nagykereskedések, stb
Oltóvíz:
A szükséges oltóvíz mennyisége 1800 l/perc. Külső tűzcsap, mely 100 méteren belül van elhelyezve az épülettől. Az épületben szintenként 1-1 db tűzcsapszekrény került elhelyezésre 40 m-es tömlő hosszal.
Az alkalmazott épületszerkezetek éghetőségi és tűzállósági paraméterei:
- Az épület részben alápincézett, földszint+egy emeletes magas tetős kivitelben készült.
- Az épület hagyományos szerkezetű: HB 38-as tégla falazat, B 30-as fal.
- Pillérek: AC csővel zsaluzott monolit vasbeton szerkezetű
- Héjalás: Lindab cseréplemez fedés
- Válaszfalak: hagyományos 10-es válaszfal
- Lépcső. Monolit vasbeton szerkezetű
Burkolatok:
- Padló: bemutató tér, galéria
- Vizes helyiségek: kerámia
- Egyéb helyiségek: kerámia
- Kazánház: cementsimítás
- Mennyezet. KNAUF gipszkarton lemez 12,5 mm vtg
Nyílászárók egyedi műanyag, belül típus fa ajtók, ablakok. Az épület külső ajtói kilincs, küszöb nélkül készültek.
A szolgáltatóház mérete: 41,96m x24,22
Helyiségek:
Földszint:
Szélfogó (előtér) 18,3m2
Bemutatótér:497 m2
Eladótér:19,5 m2
Ruhatár: 19,5 m2
Eladótér:12 m2
WC előtér női.4,5 m2
WC női:7,7 m2
Ffi WC előtér.3,5 m2
Pissoir: 5,8 m2
Ffi WC 2 db.:1,5 m2
Eladótér:14,3 m2
Színpad (kiemelt rész).44 m2
Vendégszoba,13,5 m2
Vendégszoba:15 m2
WC 2 db:1,5m2
Zuhanyzó 2 db: 3,2 m2
Közlekedő.8,56m2
Emelet:
Galéria 188,5 m2
Eladótér:19,5m2, 74 m2, 19,5 m2, 157,1m 2, 14,3 m2,
2 WC előtér: 8 m2
ffi - női wc,
eladótér:12 m2
hátsó lépcsős különálló feljárat
pince:
előtér:8,1 m2
kazánház:12,50 m2
raktár:12,5 m2
Hirdetés feltöltve: 2025. 05. 26. Utoljára módosítva: 2025. 09. 17.
Az ingatlan elhelyezkedése
Cím: Ajak