River Life

Eladó telek
Eger

+ 5 kép 1/8
26 900 000 Ft26.9 M Ft 35 724 Ft/m2
753 m2

Részletes adatok

Telekméret: 753 m2
Fűtés: Egyéb
Közmű: Víz, Gáz, Villany, Csatorna
Övezet: Lakóövezet
Energetikai besorolás: Nem adta meg a hirdető

Az OTP Bank lakáshitel ajánlataFizetett hirdetés

+36 30 354
Juhász Tamás
referens

Érdekel az OTP Bank kedvezményes lakáshitel ajánlata? *

* A kérdésre „Igen” válasz bejelölése esetén, az „Üzenet küldése” gombra kattintva kijelentem, hogy az OTP Bank Nyrt. Adatkezelési tájékoztatójának tartalmát megismertem és tudomásul vettem.

Eladó telek leírása

Egerben eladásra kínálunk egy építkezésre kiválóan alkalmas 753 m2-es telket a csendes és zöldövezeti Pásztorvölgyben. Az ingatlan 30%-ban beépíthető, a közművek a telekhatáron rendelkezésre állnak, így az építkezés gördülékenyen megkezdhető.

A telek családi házas környezetben, egy nyugodt, kis forgalmú téren, zsákutcában található, mely két irányból is megközelíthető. A területet hátsó kertek veszik körül, ezáltal kellemes, intim hangulatot biztosít.

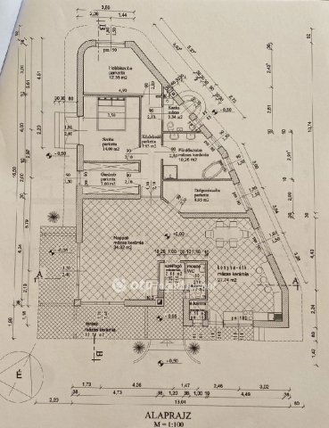
A telek alkalmas egyszintes vagy földszint + tetőtér kialakítású, szabadon álló családi ház, valamint különálló garázsépület megvalósítására. A tulajdonos rendelkezik egy elfogadott tervvel, ( az építési terv NEM KÖTELEZŐ érvényű, csak egy lehetőség ) amely egy bruttó 158 m2-es földszintes ház és egy 59 m2-es, kétállásos garázs építését foglalja magában. Komoly érdeklődés esetén a tervdokumentáció térítésmentesen átadásra kerülhet.

A telek elhelyezkedése rendkívül előnyös: buszmegálló, élelmiszerbolt, tágas játszótér, valamint a Pásztorvölgyi Általános Iskola és Gimnázium is pár perc sétával elérhető.

Ez az ingatlan tökéletes választás lehet azoknak, akik egy zöld, nyugodt környezetben szeretnének otthont teremteni, miközben fontos számukra a városi infrastruktúra közelsége.

Amennyiben a telek felkeltette érdeklődését, kérem további információkért forduljon hozzánk bizalommal.

Hirdetés feltöltve: 2025. 11. 07. Utoljára módosítva: 2026. 01. 22.

Telkek ára Egerben

Ebből az összehasonlításból megtudhatod, hogyan viszonyul a lakás ára a környékbeli telkek átlagos árához. Ez nem azt jelenti, hogy ennyivel olcsóbb vagy drágább, mint amennyit a lakás ér, hanem hogy ennyivel tér el a környékbeli átlagtól.

Ennek a m² ára
Eger m² ár
36 e Ft
14 e Ft -163%
Ennek az ára
Eger átlagár
26.9 M Ft m Ft
66.4 m Ft 59%

Az ingatlan elhelyezkedése

Cím: Eger

Eladó telkek a környékről

Eladó telek
Eladó telek

Gyöngyös

50 M Ft
48382 m²
48382 m2
Eladó telek
Eladó telek

Eger

15 M Ft
794 m²
Eladó telek
Eladó telek

Eger

35 M Ft
5651 m²
Eladó telek
Eladó telek

Eger

45 M Ft
1310 m²
1310 m2
Eladó telek
Eladó telek

Eger

29 M Ft
38664 m²
Eladó telek
Eladó telek

Mezőtárkány, Arany János út

2.3 M Ft
1439 m²
1439 m2
Eladó telek
Eladó telek

Eger

45 M Ft
1310 m²
1310 m2
Eladó telek
Eladó telek

Vécs

2.8 M Ft
1147 m²
Eladó telek
Eladó telek

Eger

14.5 M Ft
9658 m²
Eladó telek
Eladó telek

Sarud

9.5 M Ft
1618 m²
Eladó telek
Eladó telek

Gyöngyös, Csobánka utca

5 M Ft
442 m²
442 m2
Eladó telek
Eladó telek

Poroszló

25 M Ft
381 m²
Eladó telek
Eladó telek

Eger

25 M Ft
3469 m²
Eladó telek
Eladó telek

Eger

25 M Ft
15000 m²
Eladó telek
Eladó telek

Eger

2.8 M Ft
723 m²
Eladó telek
Eladó telek

Eger

94 M Ft
11552 m²
Eladó telek
Eladó telek

Füzesabony

69.9 M Ft
5814 m²
998 m2
Eladó telek
Eladó telek

Eger

19.9 M Ft
4830 m²
4830 m2
Eladó telek
Eladó telek

Eger

4.4 M Ft
14661 m²
Eladó telek
Eladó telek

Eger

19.9 M Ft
4830 m²
4830 m2
Eladó telek
Eladó telek

Szarvaskő

19.9 M Ft
1642 m²
1642 m2
Eladó telek
Eladó telek

Hatvan, Csányi út

280 M Ft
84180 m²
84180 m2
Eladó telek
Eladó telek

Eger

180 M Ft
9067 m²
Eladó telek
Eladó telek

Eger, Belváros, Külterület

7.5 M Ft
2140 m²
2140 m2

Falusi CSOK ingatlanok

Eladó családi ház
Eladó családi ház

Szilvásvárad

50 M Ft
3 szoba
69 m2
Eladó családi ház
Eladó családi ház

Csemő

36.6 M Ft
1 szoba
48 m2
Eladó családi ház
Eladó családi ház

Kemeneshőgyész

8 M Ft
2 szoba
60 m2
Eladó családi ház
Eladó családi ház

Bükkzsérc

109.99 M Ft
5 + 1 szoba
243 m2
Eladó családi ház
Eladó családi ház

Darnózseli

79.9 M Ft
4 szoba
104 m2
Eladó családi ház
Eladó családi ház

Mezőlak, Arany János utca

35.7 M Ft
3 szoba
104 m2
Eladó családi ház
Eladó családi ház

Somogyhárságy

111.65 M Ft
4 szoba
330 m2
Eladó családi ház
Eladó családi ház

Monyoród

88 M Ft
3 szoba
90 m2