River Life

Eladó téglalakás
Veszprém, földszint

+ 6 kép 1/9
47 990 000 Ft47.99 M Ft 1 142 619 Ft/m2
2 szoba
42 m2
földszint

Részletes adatok

Telekméret: 42 m2
Fűtés: Egyéb
Közmű: Víz, Villany, Csatorna
Extrák: Lift
Energetikai besorolás: Nem adta meg a hirdető

Az OTP Bank lakáshitel ajánlataFizetett hirdetés

+36 70 886
Neizer Éva
Trendi Ingatlan

Érdekel az OTP Bank kedvezményes lakáshitel ajánlata? *

* A kérdésre „Igen” válasz bejelölése esetén, az „Üzenet küldése” gombra kattintva kijelentem, hogy az OTP Bank Nyrt. Adatkezelési tájékoztatójának tartalmát megismertem és tudomásul vettem.

Eladó téglalakás leírása

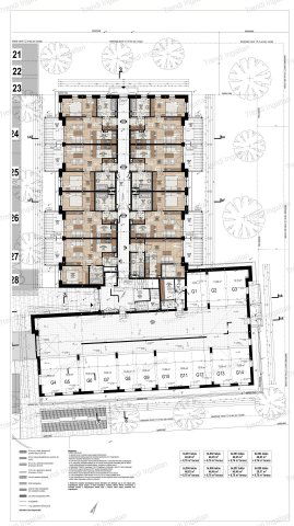
Veszprém frekventált részén, a Dózsa városban épülő 43 lakásos, liftes társasházban különböző alapterületű lakások eladók!

A meghirdetett földszinten található 42,40 nm-es lakásban amerikai konyhás nappali, szoba, fürdőszoba, előtér található. A nappaliból 8,76 nm-es terasz és 21,45 nm-es kertkapcsolat nyílik.

A lakás fűtéskész ára: 47.990.000 Ft
Kulcsrakész befejezés kérhető. Kulcsrakész ár: 54.990.000 Ft
Parkoló ára: 2.800.000 Ft
Garázs ára: 7.800.000 Ft - 8.500.000 Ft. A lakásokhoz 1 db parkolót vagy 1 db garázs vásárolni kell.
Lehetőség van tároló vásárlására is, ára: 1.800.000 Ft – 2.200.000 Ft/db

A minőségi anyagokból épülő tárasház 30 cm-es falazóelemből, 20 cm-es homlokzati hőszigeteléssel épül. A 3 rétegű, 6 kamrás műanyag, hőszigetelt nyílászárók kívül antracit színűek. Az ár tartalmazza a beépített, rejtett redőny tokokat lefutókkal. Felár ellenében elektromos kivitel is kérhető. A társasház fűtését hőszivattyú biztosítja, lakásonként egyedi hőmennyiségmérővel és termosztáttal.

A modern, 3 emeletes, liftes társasházban a földszinti lakások terasszal és kertrésszel, az emeleti lakások erkéllyel rendelkeznek. A társasház udvarán térkövezett gépkocsibeállók kerülnek kialakításra. Lehetőség van garázs vásárlására is.

Várható fűtéskész átadás: 2027. IV. negyedév

Ha szeretné megtekinteni a helyszínt, vagy bővebb tájékoztatást szeretne kérni, várom hívását akár hétvégén is!

Díjmentes, bankfüggetlen hitelügyintézéssel állunk rendelkezésére.

A hirdetésben feltüntetett képek illusztrációk.

Hirdetés feltöltve: 2025. 11. 25. Utoljára módosítva: 2026. 01. 26.

2 szobás téglalakások ára Veszprémben

Ebből az összehasonlításból megtudhatod, hogyan viszonyul a lakás ára a környékbeli téglalakások átlagos árához. Ez nem azt jelenti, hogy ennyivel olcsóbb vagy drágább, mint amennyit a lakás ér, hanem hogy ennyivel tér el a környékbeli átlagtól.

Ennek a m² ára
Veszprém m² ár
1143 e Ft
1105 e Ft -3%
Ennek az ára
Veszprém átlagár
47.99 M Ft m Ft
65.1 m Ft 26%

Az ingatlan elhelyezkedése

Cím: Veszprém, földszint

Eladó téglalakások a környékről

Eladó téglalakás
Eladó téglalakás

Balatonakarattya

142.469 M Ft
2 szoba
54 m2
Eladó téglalakás
Eladó téglalakás

Balatonakarattya

239.192 M Ft
3 szoba
92 m2
Eladó téglalakás
Eladó téglalakás

Veszprém

170 M Ft
4 szoba
131 m2
Eladó téglalakás
Eladó téglalakás

Veszprém

75 M Ft
3 szoba
67 m2
Eladó téglalakás
Eladó téglalakás

Veszprém

79.99 M Ft
3 + 3 szoba
113 m2
Eladó téglalakás
Eladó téglalakás

Balatonakarattya

213.055 M Ft
3 szoba
81 m2
Eladó téglalakás
Eladó téglalakás

Balatonfüred

219 M Ft
4 szoba
168 m2
Eladó téglalakás
Eladó téglalakás

Veszprém

142 M Ft
2 + 2 szoba
123 m2
Eladó téglalakás
Eladó téglalakás

Veszprém

60 M Ft
2 szoba
40 m2
Eladó téglalakás
Eladó téglalakás

Balatonakarattya

159.487 M Ft
2 szoba
60 m2
Eladó téglalakás
Eladó téglalakás

Balatonakarattya

208.331 M Ft
3 szoba
80 m2
Eladó téglalakás
Eladó téglalakás

Balatonakarattya

184.95 M Ft
2 szoba
70 m2
Eladó téglalakás
Eladó téglalakás

Veszprém

49.99 M Ft
2 szoba
54 m2
Eladó téglalakás
Eladó téglalakás

Veszprém, Wartha Vince utca

99.9 M Ft
4 + 2 szoba
120 m2
Eladó téglalakás
Eladó téglalakás

Veszprém

60 M Ft
2 szoba
40 m2
Eladó téglalakás
Eladó téglalakás

Veszprém

99.9 M Ft
3 + 2 szoba
116 m2
Eladó téglalakás
Eladó téglalakás

Balatonakarattya

176.581 M Ft
2 szoba
67 m2
Eladó téglalakás
Eladó téglalakás

Veszprém

228 M Ft
4 szoba
152 m2
Eladó téglalakás
Eladó téglalakás

Balatonakarattya

211.785 M Ft
3 szoba
81 m2
Eladó téglalakás
Eladó téglalakás

Balatonakarattya

163.576 M Ft
2 szoba
62 m2
Eladó téglalakás
Eladó téglalakás

Balatonalmádi

103 M Ft
2 szoba
47 m2
Eladó téglalakás
Eladó téglalakás

Balatonakarattya

225.4 M Ft
3 szoba
86 m2
Eladó téglalakás
Eladó téglalakás

Veszprém

82 M Ft
4 szoba
100 m2
Eladó téglalakás
Eladó téglalakás

Veszprém

65.99 M Ft
2 + 1 szoba
76 m2

Falusi CSOK ingatlanok

Eladó családi ház
Eladó családi ház

Újhartyán, Gödör utca

81.99 M Ft
3 szoba
110 m2
Eladó családi ház
Eladó családi ház

Dág

39.9 M Ft
2 szoba
80 m2
Eladó családi ház
Eladó családi ház

Törtel

39 M Ft
1 + 1 szoba
118 m2
Eladó családi ház
Eladó családi ház

Bozsok

290 M Ft
6 szoba
370 m2
Eladó családi ház
Eladó családi ház

Újkígyós

11.9 M Ft
3 szoba
88 m2
Eladó családi ház
Eladó családi ház

Kenyeri

39.9 M Ft
3 szoba
94 m2
Eladó családi ház
Eladó családi ház

Törtel

59.9 M Ft
3 szoba
66 m2
Eladó családi ház
Eladó családi ház

Recsk

28 M Ft
3 szoba
91 m2