Avico

Eladó téglalakás
Veszprém, földszint

+ 5 kép 1/8
55 490 000 Ft55.49 M Ft 1 206 304 Ft/m2
2 szoba
46 m2
földszint

Részletes adatok

Telekméret: 46 m2
Fűtés: Egyéb
Közmű: Víz, Villany, Csatorna
Extrák: Lift
Energetikai besorolás: Nem adta meg a hirdető

Az OTP Bank lakáshitel ajánlataFizetett hirdetés

+36 70 886
Neizer Éva
Trendi Ingatlan

Érdekel az OTP Bank kedvezményes lakáshitel ajánlata? *

* A kérdésre „Igen” válasz bejelölése esetén, az „Üzenet küldése” gombra kattintva kijelentem, hogy az OTP Bank Nyrt. Adatkezelési tájékoztatójának tartalmát megismertem és tudomásul vettem.

Eladó téglalakás leírása

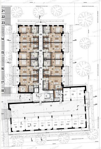
Veszprém frekventált részén, a Dózsa városban épülő 43 lakásos, liftes társasházban különböző alapterületű lakások eladók!

Elérhető lakások:
garzonlakások 36.990.000 Ft-tól
nappali + 1 szobás lakások 48.490.00 Ft-tól
nappali + 2 szobás lakások 78.690.000 Ft-tól

A meghirdetett földszinten található 46,45 nm-es lakásban amerikai konyhás nappali, szoba, fürdőszoba, előtér található. A nappaliból 8,76 nm-es terasz nyílik. A földszinti lakásokhoz kertrész tartozik.

A lakás fűtéskész ára: 55.490.000 Ft
Kulcsrakész befejezés kérhető. Kulcsrakész ár: 62.990.000 Ft
Parkoló ára: 2.800.000 Ft
Garázs ára: 7.800.000 Ft - 8.500.000 Ft. A lakáshoz 1 db parkolót vagy 1db garázst vásárolni kell.
Lehetőség van tároló vásárlására is, ára: 1.800.000 Ft – 2.200.000 Ft/db

A minőségi anyagokból épülő tárasház 30 cm-es falazóelemből, 20 cm-es homlokzati hőszigeteléssel épül. A 3 rétegű, 6 kamrás műanyag, hőszigetelt nyílászárók kívül antracit színűek. Az ár tartalmazza a beépített, rejtett redőny tokokat lefutókkal. Felár ellenében elektromos kivitel is kérhető. A társasház fűtését hőszivattyú biztosítja, lakásonként egyedi hőmennyiségmérővel és termosztáttal.

A modern, 3 emeletes, liftes társasházban a földszinti lakások terasszal és kertrésszel, az emeleti lakások erkéllyel rendelkeznek. A társasház udvarán térkövezett gépkocsibeállók kerülnek kialakításra. Lehetőség van garázs vásárlására is.

Várható fűtéskész átadás: 2027. IV. negyedév

Ha szeretné megtekinteni a helyszínt, vagy bővebb tájékoztatást szeretne kérni, várom hívását akár hétvégén is!

Díjmentes, bankfüggetlen hitelügyintézéssel állunk rendelkezésére.

A hirdetésben feltüntetett képek illusztrációk.

Hirdetés feltöltve: 2025. 09. 12. Utoljára módosítva: 2025. 11. 03.

2 szobás téglalakások ára Veszprémben

Ebből az összehasonlításból megtudhatod, hogyan viszonyul a lakás ára a környékbeli téglalakások átlagos árához. Ez nem azt jelenti, hogy ennyivel olcsóbb vagy drágább, mint amennyit a lakás ér, hanem hogy ennyivel tér el a környékbeli átlagtól.

Ennek a m² ára
Veszprém m² ár
1206 e Ft
1002 e Ft -20%
Ennek az ára
Veszprém átlagár
55.49 M Ft m Ft
60.9 m Ft 9%

Az ingatlan elhelyezkedése

Cím: Veszprém, földszint

Eladó téglalakások a környékről

Eladó téglalakás
Eladó téglalakás

Veszprém

189.9 M Ft
4 + 1 szoba
135 m2
Eladó téglalakás
Eladó téglalakás

Balatonakarattya

159.487 M Ft
2 szoba
60 m2
Eladó téglalakás
Eladó téglalakás

Balatonakarattya

184.95 M Ft
2 szoba
70 m2
Eladó téglalakás
Eladó téglalakás

Veszprém

79 M Ft
3 szoba
89 m2
Eladó téglalakás
Eladó téglalakás

Veszprém

57.9 M Ft
3 szoba
74 m2
Eladó téglalakás
Eladó téglalakás

Veszprém

119.9 M Ft
4 szoba
94 m2
Eladó téglalakás
Eladó téglalakás

Veszprém

64.9 M Ft
3 szoba
60 m2
Eladó téglalakás
Eladó téglalakás

Balatonakarattya

208.331 M Ft
3 szoba
80 m2
Eladó téglalakás
Eladó téglalakás

Veszprém

144.067 M Ft
5 szoba
101 m2
Eladó téglalakás
Eladó téglalakás

Veszprém

79 M Ft
3 szoba
89 m2
Eladó téglalakás
Eladó téglalakás

Veszprém

228 M Ft
4 szoba
152 m2
Eladó téglalakás
Eladó téglalakás

Balatonalmádi

103 M Ft
2 szoba
47 m2
Eladó téglalakás
Eladó téglalakás

Veszprém

79 M Ft
3 szoba
89 m2
Eladó téglalakás
Eladó téglalakás

Veszprém

175 M Ft
2 + 2 szoba
141 m2
Eladó téglalakás
Eladó téglalakás

Ajka, Új élet utca

41 M Ft
3 szoba
66 m2
Eladó téglalakás
Eladó téglalakás

Balatonakarattya

211.785 M Ft
3 szoba
81 m2
Eladó téglalakás
Eladó téglalakás

Veszprém

60 M Ft
2 szoba
40 m2
Eladó téglalakás
Eladó téglalakás

Balatonakarattya

213.055 M Ft
3 szoba
81 m2
Eladó téglalakás
Eladó téglalakás

Balatonakarattya

205.384 M Ft
3 szoba
78 m2
Eladó téglalakás
Eladó téglalakás

Balatonakarattya

239.192 M Ft
3 szoba
92 m2
Eladó téglalakás
Eladó téglalakás

Veszprém

55 M Ft
4 szoba
103 m2
Eladó téglalakás
Eladó téglalakás

Balatonakarattya

176.581 M Ft
2 szoba
67 m2
Eladó téglalakás
Eladó téglalakás

Veszprém

168 M Ft
2 szoba
112 m2
Eladó téglalakás
Eladó téglalakás

Veszprém

228 M Ft
4 szoba
152 m2

Falusi CSOK ingatlanok

Eladó családi ház
Eladó családi ház

Tab

46.9 M Ft
4 szoba
173 m2
Eladó családi ház
Eladó családi ház

Kisnána

27.9 M Ft
4 szoba
180 m2
Eladó családi ház
Eladó családi ház

Csombárd

16.99 M Ft
3 szoba
91 m2
Eladó családi ház
Eladó családi ház

Mályi

89.9 M Ft
4 szoba
100 m2
Eladó családi ház
Eladó családi ház

Bakonycsernye

39 M Ft
3 szoba
350 m2
Eladó családi ház
Eladó családi ház

Ágasegyháza

29.7 M Ft
3 szoba
75 m2
Eladó családi ház
Eladó családi ház

Tiszaroff

12.9 M Ft
3 szoba
87 m2
Eladó családi ház
Eladó családi ház

Berzence

69.9 M Ft
6 szoba
257 m2