Eladó családi ház
Tab

Figyelem!

Ez az ingatlan a 2019.07.01-től induló falusi CSOK által támogatott településen található

+ 12 kép 1/15
46 900 000 Ft46.9 M Ft 271 098 Ft/m2
4 szoba
173 m2
építés éve:1976

Részletes adatok

Állapot: Felújítandó
Telekméret: 752 m2
Fűtés: Gázkazán
Parkolás: Garázs
Energetikai besorolás: Nem adta meg a hirdető
Zenga Premier

Friss hirdetések, amiket nem találsz meg más ingatlankereső portálon.

Fedezd fel elsőként a Zenga Premier címkés eladó ingatlanokat!

További részletek a zenga.hu-n

Az OTP Bank lakáshitel ajánlataFizetett hirdetés

+36 70 316
Zsitnyányi Ágnes
referens

Érdekel az OTP Bank kedvezményes lakáshitel ajánlata? *

* A kérdésre „Igen” válasz bejelölése esetén, az „Üzenet küldése” gombra kattintva kijelentem, hogy az OTP Bank Nyrt. Adatkezelési tájékoztatójának tartalmát megismertem és tudomásul vettem.

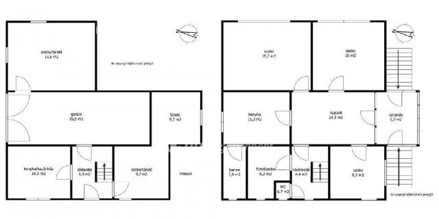
Eladó családi ház leírása

Somogy megye, Tab, 173 m2 családi ház, 752 m2 telek eladó. Az ingatlan a település lakóövezetében helyezkedik el, csendes, nyugodt környezetben. A két szintes épület emelete nappali + 3 szobás, földszintje könnyen lakótérré alakítható, a tetőtér további lehetőségeket nyújt. Az ingatlan értékét tovább növeli a gyümölcsfákkal teli kert, illetve a vezetékes vízzel, WC-vel, ipari árammal ellátott melléképület. A ház központi fűtését cirko gázkazán és fatüzelésű kazán is biztosítja, de lehetőség van kályhával, illetve cserépkályhával való fűtésre is. A két szint kívülről és belülről is elérhető, összenyitva vagy külön-külön is használható, így akár többgenerációs családoknak is kiválóan alkalmas. Parkolni garázsban, a zárt udvaron, valamint közterületen ingyenesen lehet. A kisváros kiváló infrastruktúrával rendelkezik, iskolák, egészségház, művelődési ház, uszoda, játszóterek, sportcsarnok, munkalehetőségek teszik kedvelt, jól élhető településsé. Az ingatlan hitelképes, igény esetén egyedi partnerkedvezményt biztosítunk, illetve a település besorolása alapján falusi CSOK is igényelhető. Otthon Start Hitelprogram. Bővebb információért keressen telefonon!

Hirdetés feltöltve: 2025. 10. 30. Utoljára módosítva: 2025. 10. 30.

Az ingatlan elhelyezkedése

Cím: Tab

Eladó ingatlanok a környékről

Eladó családi ház
Eladó családi ház

Balatonszentgyörgy

144.67 M Ft
4 szoba
170 m2
Eladó családi ház
Eladó családi ház

Tab

19.9 M Ft
3 szoba
116 m2
Eladó téglalakás
Eladó téglalakás

Siófok

149.9 M Ft
2 szoba
50 m2
Eladó családi ház
Eladó családi ház

Tab

23.9 M Ft
3 szoba
70 m2
Eladó családi ház
Eladó családi ház

Tab

65 M Ft
4 szoba
80 m2
Eladó családi ház
Eladó családi ház

Balatonmáriafürdő, Igényes családi ház a part közelében

82.892 M Ft
2 + 3 szoba
135 m2
Eladó családi ház
Eladó családi ház

Siófok

96.2 M Ft
3 szoba
73 m2
Eladó családi ház
Eladó családi ház

Balatonlelle

123 M Ft
3 + 2 szoba
140 m2
Eladó ikerház
Eladó ikerház

Zamárdi

199.9 M Ft
6 szoba
160 m2
Eladó téglalakás
Eladó téglalakás

Balatonlelle

73.99 M Ft
2 szoba
57 m2
Eladó családi ház
Eladó családi ház

Balatonfenyves

219 M Ft
5 szoba
210 m2
Eladó családi ház
Eladó családi ház

Balatonlelle

78 M Ft
4 szoba
117 m2
Eladó téglalakás
Eladó téglalakás

Fonyód

73.4 M Ft
1 + 1 szoba
56 m2
Eladó családi ház
Eladó családi ház

Tab

19.9 M Ft
3 szoba
110 m2
Eladó téglalakás
Eladó téglalakás

Balatonszemes

104.934 M Ft
2 szoba
57 m2
Eladó családi ház
Eladó családi ház

Marcali, Rendezett családi ház+Apartman

72.9 M Ft
4 + 1 szoba
135 m2
Eladó családi ház
Eladó családi ház

Siófok

120 M Ft
3 szoba
110 m2
Eladó családi ház
Eladó családi ház

Tab

17.5 M Ft
3 szoba
110 m2
Eladó családi ház
Eladó családi ház

Som

34.9 M Ft
3 szoba
68 m2
Eladó családi ház
Eladó családi ház

Nemesdéd, Felújítandó családi ház

12.121 M Ft
2 + 1 szoba
92 m2
Eladó családi ház
Eladó családi ház

Marcali, Ház és üzlet eladó!

59 M Ft
2 + 1 szoba
180 m2
Eladó téglalakás
Eladó téglalakás

Fonyód

82.3 M Ft
1 + 2 szoba
63 m2
Eladó nyaraló
Eladó nyaraló

Karád, Szabadság utca

66 M Ft
3 + 1 szoba
88 m2
Eladó családi ház
Eladó családi ház

Balatonberény

128 M Ft
3 + 1 szoba
121 m2

Falusi CSOK ingatlanok

Eladó családi ház
Eladó családi ház

Kács

29.5 M Ft
4 szoba
150 m2
Eladó családi ház
Eladó családi ház

Tápiógyörgye

6.5 M Ft
2 szoba
62 m2
Eladó családi ház
Eladó családi ház

Ágasegyháza

29.7 M Ft
3 szoba
75 m2
Eladó családi ház
Eladó családi ház

Tóalmás

35 M Ft
1 szoba
36 m2
Eladó családi ház
Eladó családi ház

Tiszaroff

15.5 M Ft
2 szoba
63 m2
Eladó családi ház
Eladó családi ház

Kelebia

13 M Ft
3 szoba
76 m2
Eladó családi ház
Eladó családi ház

Nyírmada

12.5 M Ft
2 szoba
88 m2
Eladó ikerház
Eladó ikerház

Balatonakali

129 M Ft
4 szoba
145 m2

Falusi CSOK ingatlanok

Eladó családi ház
Eladó családi ház

Tápiógyörgye

34.9 M Ft
3 szoba
85 m2
Eladó családi ház
Eladó családi ház

Kemence, Fő utca

25 M Ft
3 szoba
91 m2
Eladó családi ház
Eladó családi ház

Iváncsa

73.9 M Ft
1 + 3 szoba
97 m2
Eladó családi ház
Eladó családi ház

Szigetbecse

35.9 M Ft
3 + 2 szoba
107 m2
Eladó családi ház
Eladó családi ház

Tiszaroff

12.9 M Ft
3 szoba
87 m2
Eladó családi ház
Eladó családi ház

Kaposgyarmat

5.9 M Ft
1 szoba
40 m2
Eladó téglalakás
Eladó téglalakás

Nagyharsány

22.5 M Ft
3 szoba
71 m2
Eladó családi ház
Eladó családi ház

Hernádnémeti

19.9 M Ft
2 szoba
62 m2