NapForrás 20 - Buda

Eladó családi ház
Tab

Figyelem!

Ez az ingatlan a 2019.07.01-től induló falusi CSOK által támogatott településen található

+ 12 kép 1/15
46 900 000 Ft46.9 M Ft 271 098 Ft/m2
4 szoba
173 m2
építés éve:1976

Részletes adatok

Állapot: Felújítandó
Telekméret: 752 m2
Fűtés: Gázkazán
Energetikai besorolás: Nem adta meg a hirdető

Az OTP Bank lakáshitel ajánlataFizetett hirdetés

+36 70 316
Zsitnyányi Ágnes
referens

Érdekel az OTP Bank kedvezményes lakáshitel ajánlata? *

* A kérdésre „Igen” válasz bejelölése esetén, az „Üzenet küldése” gombra kattintva kijelentem, hogy az OTP Bank Nyrt. Adatkezelési tájékoztatójának tartalmát megismertem és tudomásul vettem.

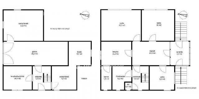
Eladó családi ház leírása

Somogy megye, Tab, 173 m2 családi ház, 752 m2 telek eladó. Az ingatlan a település lakóövezetében helyezkedik el, csendes, nyugodt környezetben. A két szintes épület emelete nappali + 3 szobás, földszintje könnyen lakótérré alakítható, a tetőtér további lehetőségeket nyújt. Az ingatlan értékét tovább növeli a gyümölcsfákkal teli kert, illetve a vezetékes vízzel, WC-vel, ipari árammal ellátott melléképület. A ház központi fűtését cirko gázkazán és fatüzelésű kazán is biztosítja, de lehetőség van kályhával, illetve cserépkályhával való fűtésre is. A két szint kívülről és belülről is elérhető, összenyitva vagy külön-külön is használható, így akár többgenerációs családoknak is kiválóan alkalmas. Parkolni garázsban, a zárt udvaron, valamint közterületen ingyenesen lehet. A kisváros kiváló infrastruktúrával rendelkezik, iskolák, egészségház, művelődési ház, uszoda, játszóterek, sportcsarnok, munkalehetőségek teszik kedvelt, jól élhető településsé. Az ingatlan hitelképes, igény esetén egyedi partnerkedvezményt biztosítunk, illetve a település besorolása alapján falusi CSOK is igényelhető. Otthon Start Hitelprogram. Bővebb információért keressen telefonon!

Referencia szám: M316260

Hirdetés feltöltve: 2025. 11. 16. Utoljára módosítva: 2025. 11. 16.

Az ingatlan elhelyezkedése

Cím: Tab

Eladó ingatlanok a környékről

Eladó családi ház
Eladó családi ház

Csákány

59.9 M Ft
6 szoba
365 m2
Eladó családi ház
Eladó családi ház

Szólád

170 M Ft
6 szoba
193 m2
Eladó családi ház
Eladó családi ház

Siófok

330 M Ft
12 szoba
Eladó családi ház
Eladó családi ház

Balatonmáriafürdő

110 M Ft
3 szoba
250 m2
Eladó téglalakás
Eladó téglalakás

Balatonboglár

79.99 M Ft
1 + 1 szoba
44 m2
Eladó családi ház
Eladó családi ház

Tab

65 M Ft
4 szoba
80 m2
Eladó családi ház
Eladó családi ház

Bolhó

29.9 M Ft
4 szoba
179 m2
Eladó családi ház
Eladó családi ház

Siófok

209 M Ft
5 szoba
110 m2
Eladó családi ház
Eladó családi ház

Látrány

21.9 M Ft
2 szoba
75 m2
Eladó mezogazdasagi ingatlan
Eladó mezogazdasagi ingatlan

Balatonőszöd

14.9 M Ft
2 szoba
50 m2
Eladó családi ház
Eladó családi ház

Balatonberény

128 M Ft
3 + 1 szoba
121 m2
Eladó családi ház
Eladó családi ház

Zamárdi

126 M Ft
6 szoba
120 m2
Eladó családi ház
Eladó családi ház

Balatonfenyves

219 M Ft
5 szoba
210 m2
Eladó családi ház
Eladó családi ház

Gyékényes

29.99 M Ft
3 szoba
151 m2
Eladó családi ház
Eladó családi ház

Balatonszentgyörgy

144.67 M Ft
4 szoba
170 m2
Eladó családi ház
Eladó családi ház

Babócsa

34.9 M Ft
4 szoba
104 m2
Eladó családi ház
Eladó családi ház

Siójut

32 M Ft
4 szoba
108 m2
Eladó családi ház
Eladó családi ház

Balatonlelle

78 M Ft
4 szoba
117 m2
Eladó családi ház
Eladó családi ház

Balatonlelle

620 M Ft
12 szoba
1300 m2
Eladó családi ház
Eladó családi ház

Marcali

149 M Ft
7 + 4 szoba
400 m2
Eladó családi ház
Eladó családi ház

Marcali

95 M Ft
5 szoba
230 m2
Eladó családi ház
Eladó családi ház

Tab

19.9 M Ft
3 szoba
110 m2
Eladó családi ház
Eladó családi ház

Fonyód

112.9 M Ft
4 + 1 szoba
150 m2
Eladó családi ház
Eladó családi ház

Siófok

135 M Ft
7 + 2 szoba
250 m2

Falusi CSOK ingatlanok

Eladó családi ház
Eladó családi ház

Balatonederics

105 M Ft
2 + 2 szoba
95 m2
Eladó ikerház
Eladó ikerház

Besnyő

79.6 M Ft
5 szoba
117 m2
Eladó családi ház
Eladó családi ház

Szólád

104.9 M Ft
6 + 1 szoba
245 m2
Eladó családi ház
Eladó családi ház

Körösladány

14.9 M Ft
2 szoba
65 m2
Eladó családi ház
Eladó családi ház

Kondoros

29.9 M Ft
4 szoba
187 m2
Eladó téglalakás
Eladó téglalakás

Balatonszemes

86.8 M Ft
2 szoba
58 m2
Eladó családi ház
Eladó családi ház

Szenyér

6.5 M Ft
2 szoba
67 m2
Eladó családi ház
Eladó családi ház

Adásztevel

8.9 M Ft
2 szoba
63 m2

Falusi CSOK ingatlanok

Eladó családi ház
Eladó családi ház

Újszilvás

24.9 M Ft
3 szoba
80 m2
Eladó családi ház
Eladó családi ház

Zalacsány

75 M Ft
3 szoba
90 m2
Eladó családi ház
Eladó családi ház

Sárosd

21.9 M Ft
3 szoba
86 m2
Eladó családi ház
Eladó családi ház

Nagyhegyes

47.9 M Ft
2 szoba
72 m2
Eladó családi ház
Eladó családi ház

Tarnalelesz

11 M Ft
4 szoba
186 m2
Eladó családi ház
Eladó családi ház

Újszilvás

34.9 M Ft
3 szoba
66 m2
Eladó családi ház
Eladó családi ház

Kétpó

14.9 M Ft
1 + 2 szoba
86 m2
Eladó családi ház
Eladó családi ház

Ságvár

54.9 M Ft
3 szoba
87 m2