Oasis Residence

Eladó téglalakás
Tiszavasvári, 3. emelet

+ 12 kép 1/15
18 000 000 Ft18 M Ft 264 706 Ft/m2
2 + 1 szoba
68 m²
3. emelet
építés éve:1980

Részletes adatok

Állapot: Átlagos
Fűtés: Távfűtés
Emelet: 3. emelet
Energetikai besorolás: Nem adta meg a hirdető

Az OTP Bank lakáshitel ajánlataFizetett hirdetés

+36 70 316
Pannuska Marcell
OTPip - Nyíregyháza Sólyom utca 4 - OTP Ingatlanpont Iroda

Érdekel az OTP Bank kedvezményes lakáshitel ajánlata? *

* A kérdésre „Igen” válasz bejelölése esetén, az „Üzenet küldése” gombra kattintva kijelentem, hogy az OTP Bank Nyrt. Adatkezelési tájékoztatójának tartalmát megismertem és tudomásul vettem.

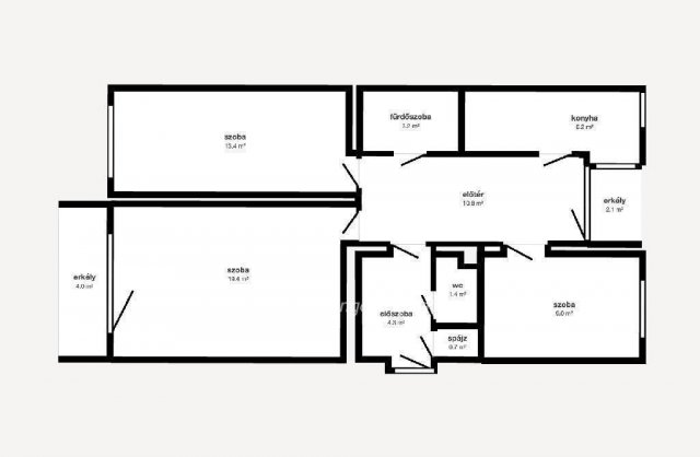
Eladó téglalakás leírása

Eladó tágas, 72 nm-es, 3. emeleti téglalakás Tiszavasváriban!

Tiszavasvári központjától néhány percre, egy négyemeletes téglaépület 3. emeletén kínálunk eladásra egy karbantartott, világos, 72 nm-es lakást.
Az ingatlan beton alapon épült, tégla falazatú, és központi, radiátoros fűtéssel rendelkezik, amely rendkívül kedvező rezsivel üzemel ? a téli hónapokban is tízezer forint alatt marad a fűtés költsége.
A keleti fekvésű lakás nyáron is kellemesen hűvös, köszönhetően a ház előtt álló nagy, árnyékot adó fáknak.
A környék csendes, rendezett, a városközpont, üzletek, óvoda és iskola mind pár perc sétára találhatók, így ideális választás családok számára is.
OTP Banki hátterünknek köszönhetően finanszírozási igényekben (pl. Otthon Start Hitelprogram, Babaváró, Falusi CSOK, CSOK Plusz, Lakáshitel, Személyi kölcsön stb.), illetve biztosítások tekintetében is díjmentesen, soron kívüli ügyintézéssel segítem ügyfeleim!
Referenciaszám : M315013

Hirdetés feltöltve: 2026. 04. 01.

Az ingatlan elhelyezkedése

Cím: Tiszavasvári, 3. emelet

Eladó téglalakások a környékről

Nyíregyháza
Eladó téglalakás

Nyíregyháza

64.9 M Ft
5 szoba
120 m²
Tiszavasvári
Eladó téglalakás

Tiszavasvári

25.5 M Ft
2 + 1 szoba
59 m²
Nyíregyháza
Eladó téglalakás

Nyíregyháza

77.5 M Ft
4 szoba
120 m²
Tiszavasvári
Eladó téglalakás

Tiszavasvári

16.99 M Ft
2 + 1 szoba
63 m²
Tiszavasvári
Eladó téglalakás

Tiszavasvári

25.5 M Ft
1 + 2 szoba
59 m²
Nyíregyháza
Eladó téglalakás

Nyíregyháza

64.9 M Ft
4 szoba
120 m²
Tiszavasvári
Eladó téglalakás

Tiszavasvári

18 M Ft
2 + 1 szoba
68 m²
Tiszavasvári
Eladó téglalakás

Tiszavasvári

18 M Ft
2 + 1 szoba
68 m²
Tiszavasvári
Eladó téglalakás

Tiszavasvári

25.5 M Ft
1 + 2 szoba
59 m²
Nyíregyháza
Eladó téglalakás

Nyíregyháza

53.7 M Ft
2 szoba
103 m²
Nyíregyháza
Eladó téglalakás

Nyíregyháza

43.5 M Ft
3 + 1 szoba
79 m²
Nyíregyháza
Eladó téglalakás

Nyíregyháza

43.5 M Ft
2 + 1 szoba
79 m²
Nyíregyháza
Eladó téglalakás

Nyíregyháza

72.5 M Ft
3 + 1 szoba
170 m²
Nyíregyháza
Eladó téglalakás

Nyíregyháza

36 M Ft
2 szoba
58 m²
Tiszavasvári
Eladó téglalakás

Tiszavasvári

31.5 M Ft
3 + 1 szoba
115 m²
Tiszavasvári
Eladó téglalakás

Tiszavasvári

18 M Ft
2 + 1 szoba
68 m²
Nyíregyháza
Eladó téglalakás

Nyíregyháza

59.9 M Ft
3 + 1 szoba
120 m²
Tiszavasvári
Eladó téglalakás

Tiszavasvári

25.5 M Ft
2 szoba
64 m²
Nyíregyháza
Eladó téglalakás

Nyíregyháza

36 M Ft
2 szoba
58 m²
Nyíregyháza
Eladó téglalakás

Nyíregyháza

36 M Ft
2 szoba
58 m²
Nyíregyháza
Eladó téglalakás

Nyíregyháza

53.7 M Ft
2 szoba
83 m²
Tiszavasvári
Eladó téglalakás

Tiszavasvári

18 M Ft
2 + 1 szoba
68 m²
Nyíregyháza
Eladó téglalakás

Nyíregyháza

53.7 M Ft
2 szoba
103 m²
Tiszavasvári
Eladó téglalakás

Tiszavasvári

16.5 M Ft
3 szoba
61 m²

Falusi CSOK ingatlanok

Felsőlajos
Eladó családi ház

Felsőlajos

100 M Ft
4 szoba
140 m²
Mád
Eladó családi ház

Mád

48 M Ft
3 szoba
181 m²
Balatonszemes
Eladó téglalakás

Balatonszemes

125.2 M Ft
2 szoba
50 m²
Szabadbattyán
Eladó családi ház

Szabadbattyán

147.99 M Ft
5 szoba
255 m²
Somlójenő
Eladó családi ház

Somlójenő

64.9 M Ft
4 szoba
221 m²
Bakóca
Eladó családi ház

Bakóca

500 M Ft
13 szoba
1860 m²
Tápiógyörgye
Eladó családi ház

Tápiógyörgye

14.9 M Ft
2 szoba
60 m²
Balatonszárszó, Öreghegyi út
Eladó családi ház

Balatonszárszó

29.9 M Ft
3 szoba
35 m²