Kedves Felhasználónk! Rendszerfrissítés miatt az oldalunk 2026. február 9-én 12 órától várhatóan 20 óráig nem lesz elérhető. Köszönjük megértésed!
Avico Greentop

Eladó téglalakás
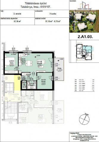
Tatabánya, Kertváros, Alkotmány utca 1/A, 2. emelet

1/1
59 838 748 Ft59.839 M Ft 1 049 803 Ft/m2
3 szoba
57 m2
2. emelet
építés éve:2027

Részletes adatok

Fűtés: Egyéb
Emelet: 2. emelet
Közmű: Víz, Villany, Csatorna
Extrák: Lift
Energetikai besorolás: A+

Az OTP Bank lakáshitel ajánlataFizetett hirdetés

+36 20 553
Tócsán Krisztina

Érdekel az OTP Bank kedvezményes lakáshitel ajánlata? *

* A kérdésre „Igen” válasz bejelölése esetén, az „Üzenet küldése” gombra kattintva kijelentem, hogy az OTP Bank Nyrt. Adatkezelési tájékoztatójának tartalmát megismertem és tudomásul vettem.

Eladó téglalakás leírása

ÚJ TÁRSASHÁZI PROJEKT TATABÁNYÁN
Otthonok a kertváros szívében

A GGE Invest Kft. hamarosan megkezdi legújabb, eddigi legnagyobb volumenű, városrészt formáló beruházását Tatabánya egyik legkedveltebb városrészében, Kertvárosban. A modern stílusú társasház nyugodt, zöldövezeti környezetben, kiváló közlekedési kapcsolatok és fejlett városi infrastruktúra közelében épül. A tervezés során kiemelt figyelmet fordítottunk a praktikusságra, élhetőségre és energiahatékonyságra – így garantálva az időtálló értéket és a kényelmes mindennapokat.

Előértékesítésben – Modern lakások Tatabánya Kertvárosában
Megbízható fejlesztőtől kínálunk új építésű, korszerű társasházi lakásokat Tatabánya egyik legszebb, kertvárosi részén. A projekt lakásai fűtéskész vagy kulcsrakész állapotban leköthetők, a várható átadás 2027. augusztus hónapban történik.
Az ingatlan a csendes, mégis központi fekvésű Petőfi Sándor utcából nyíló mellékutcában valósul meg. A környék lakóövezetként jól kiépült, családi házak és kisebb társasházak jellemzik. A városközpont, az ipari park, valamint az 1-es főút és az M1-es autópálya könnyen elérhető, a tömegközlekedés pedig gyors és kényelmes kapcsolatot biztosít Tatabánya minden részével.

LAKÁSOK
A lakások legfontosabb jellemzői:
•Lakásméretek: 31–63 m²-es, jól átgondolt elrendezésű otthonok
•Energiahatékony megoldások:
•Központi hőszivattyús fűtés padlófűtéssel
•Fan-coil hűtés előkészítés, rendelhető egységekkel
•Műanyag, 3 rétegű üvegezésű nyílászárók árnyékolással
•15 cm vastag homlokzati hőszigetelés
•A - A+ energetikai besorolás
•Alacsony fenntartási költségek: lakásonkénti almérőkkel ellátott közműrendszer
•Igény szerint elérhető: okos otthon funkciók
•Parkolás: felszíni és mélygarázsos parkolóhelyek.
Elektromos autótöltési lehetőség a lakóparkon belül biztosítva lesz.
•Közös tároló kerül kialakításra.


Ideális választás befektetőknek és otthont keresőknek is:
•Kiváló elhelyezkedés, jó közlekedési kapcsolatokkal
•Modern építészeti és műszaki kialakítás
•Jogosult a támogatási programokra, beleértve az Otthon Start Programot is
•Átlátható, biztonságos ügyintézés: saját ügyvédi háttér és előkészített társasházi alapító okirat
•Szakértői támogatás pénzügyi és hitelmegoldásokban


Akár első otthonát keresi, akár jövedelmező befektetésben gondolkodik, projektünkben biztosan megtalálja a megfelelő lakást. Lépjen kapcsolatba velünk, és válassza ki az Ön számára tökéletes otthont még az építkezés korai szakaszában!

Bővebb tájékoztatásért forduljon hozzánk bizalommal elérhetőségeinken.

Hirdetés feltöltve: 2025. 12. 08. Utoljára módosítva: 2026. 02. 05.

3 szobás téglalakások ára Tatabányán

Ebből az összehasonlításból megtudhatod, hogyan viszonyul a lakás ára a környékbeli téglalakások átlagos árához. Ez nem azt jelenti, hogy ennyivel olcsóbb vagy drágább, mint amennyit a lakás ér, hanem hogy ennyivel tér el a környékbeli átlagtól.

Ennek a m² ára
Tatabánya m² ár
1050 e Ft
877 e Ft -20%
Ennek az ára
Tatabánya átlagár
59.839 M Ft m Ft
56.6 m Ft -6%

Az ingatlan elhelyezkedése

Cím: Tatabánya, Kertváros, Alkotmány utca 1/A, 2. emelet

Eladó téglalakások a környékről

Eladó téglalakás
Eladó téglalakás

Komárom, Mártírok útja

37.633 M Ft
2 szoba
45 m2
Eladó téglalakás
Eladó téglalakás

Tatabánya

42.99 M Ft
2 szoba
56 m2
Eladó téglalakás
Eladó téglalakás

Tatabánya

69.9 M Ft
3 szoba
63 m2
Eladó téglalakás
Eladó téglalakás

Komárom

83 M Ft
3 szoba
104 m2
Eladó téglalakás
Eladó téglalakás

Komárom, Mártírok útja

37.658 M Ft
2 szoba
44 m2
Eladó téglalakás
Eladó téglalakás

Tatabánya

44.9 M Ft
3 szoba
51 m2
Eladó téglalakás
Eladó téglalakás

Tatabánya

115 M Ft
4 szoba
118 m2
Eladó téglalakás
Eladó téglalakás

Esztergom, Bajcsy-Zsilinszky Endre út

178 M Ft
2 szoba
178 m2
Eladó téglalakás
Eladó téglalakás

Tatabánya, Kertvárosi lakótelep, Dr. Vitális u

29.5 M Ft
2 szoba
50 m2
Eladó téglalakás
Eladó téglalakás

Tatabánya

44.9 M Ft
1 szoba
42 m2
Eladó téglalakás
Eladó téglalakás

Komárom

22.4 M Ft
1 szoba
32 m2
Eladó téglalakás
Eladó téglalakás

Komárom, Városi

86.06 M Ft
2 szoba
73 m2
Eladó téglalakás
Eladó téglalakás

Komárom, Mártírok útja

44.668 M Ft
2 szoba
55 m2
Eladó téglalakás
Eladó téglalakás

Nyergesújfalu

47.158 M Ft
2 szoba
49 m2
Eladó téglalakás
Eladó téglalakás

Komárom, Mártírok útja

34.02 M Ft
2 szoba
48 m2
Eladó téglalakás
Eladó téglalakás

Tatabánya

35.99 M Ft
2 szoba
53 m2
Eladó téglalakás
Eladó téglalakás

Komárom, Mártírok útja

40.755 M Ft
1 szoba
33 m2
Eladó téglalakás
Eladó téglalakás

Komárom

35 M Ft
1 szoba
50 m2
Eladó téglalakás
Eladó téglalakás

Tatabánya, Ságvári Endre lakótelep, Szent Borbála út

41.5 M Ft
1 + 1 szoba
43 m2
Eladó téglalakás
Eladó téglalakás

Tatabánya

115 M Ft
4 szoba
70 m2
Eladó téglalakás
Eladó téglalakás

Tatabánya

52.385 M Ft
1 + 2 szoba
59 m2
Eladó téglalakás
Eladó téglalakás

Tatabánya, Kertvárosi lakótelep, Verebély László utca

41.9 M Ft
2 szoba
49 m2
Eladó téglalakás
Eladó téglalakás

Komárom, Mártírok útja

45.484 M Ft
2 szoba
43 m2
Eladó téglalakás
Eladó téglalakás

Komárom

30.8 M Ft
1 szoba
44 m2

Falusi CSOK ingatlanok

Eladó téglalakás
Eladó téglalakás

Balatonszemes

123.3 M Ft
2 szoba
70 m2
Eladó családi ház
Eladó családi ház

Dunaszekcső

12.5 M Ft
3 szoba
110 m2
Eladó családi ház
Eladó családi ház

Egerág

159 M Ft
5 szoba
178 m2
Eladó családi ház
Eladó családi ház

Szilvásvárad

50 M Ft
5 szoba
146 m2
Eladó családi ház
Eladó családi ház

Tenk

78 M Ft
5 szoba
126 m2
Eladó családi ház
Eladó családi ház

Szomolya

57.85 M Ft
4 szoba
117 m2
Eladó családi ház
Eladó családi ház

Szilvásvárad

50 M Ft
3 szoba
69 m2
Eladó családi ház
Eladó családi ház

Kesztölc

129.9 M Ft
8 szoba
210 m2