Kedves Felhasználónk! Rendszerfrissítés miatt az oldalunk 2026. február 9-én 12 órától várhatóan 20 óráig nem lesz elérhető. Köszönjük megértésed!
Metrodom

Eladó téglalakás
Szombathely, 1. emelet

+ 6 kép 1/9
34 900 000 Ft34.9 M Ft 775 556 Ft/m2
2 szoba
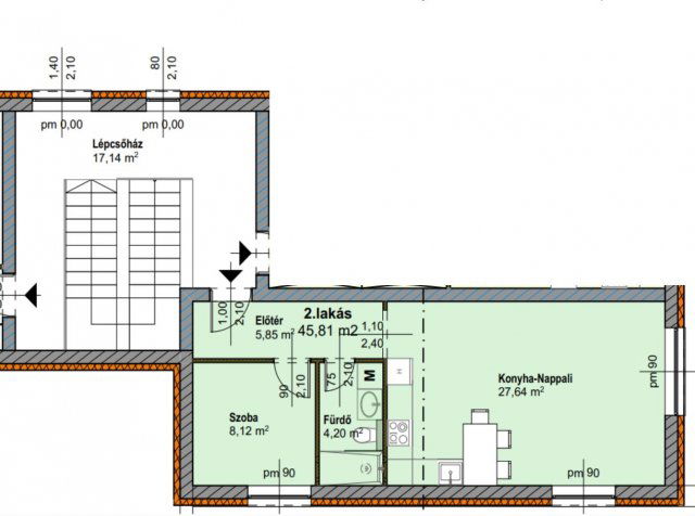
45 m2
1. emelet
építés éve:2026

Részletes adatok

Telekméret: 45 m2
Fűtés: Egyéb
Emelet: 1. emelet
Energetikai besorolás: Nem adta meg a hirdető

Az OTP Bank lakáshitel ajánlataFizetett hirdetés

+36 20 950
Simon Zsolt
referens

Érdekel az OTP Bank kedvezményes lakáshitel ajánlata? *

* A kérdésre „Igen” válasz bejelölése esetén, az „Üzenet küldése” gombra kattintva kijelentem, hogy az OTP Bank Nyrt. Adatkezelési tájékoztatójának tartalmát megismertem és tudomásul vettem.

Eladó téglalakás leírása

Új lakópark Szombathelyen: FERRO PARK.

Utolsó kettő kis méretű lakás még elérhetők remek vételáron!

Lakás méret: 45,28 m2

Garázs vásárolható: 8 millió forint

Az építés éve 2026-ban lesz.

Szombathely belvárosának határai folyamatason tolódnak ki. Új lakóparkot építünk közel a Fő térhez. amelynek lakásai garantáltan értékálló otthonok és jövedelmező befektetések lesznek a leendő tulajdonosoknak.
Befektetési és hitelezési szaktanácsadásban is segítem az Ön döntését!
A környékről:
Szombathely belvárosának vonzásában, a Jáki ut elején, a FERRO Park lakónegyed részeként épül a legújabb, épületünk modern beruházása üzletekkel és lakásokkal.
Az épületről:
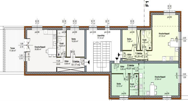
A három épületben Összesen 33 darab, teljesen újépítésű lakás lesz a beruházás része! Kitűnő választás lehet Önnek: ha otthonát alakítja ki benne vagy, ha befektetésként tekint rá.
Az épület kettő szintes lesz. A földszinten garázsok lesznek.

A lakás dél-nyugat tájolású. Fűtése központi padlófűtés lesz lakásonként szabályozható egyedi mérőegységgel felszerelve.

A műszaki tartalomról:
Téglaszerkezetű falazat, külső 15 cm-es hőszigeteléssel.
Fokozottan hőszigetelt, háromrétegű műanyag ablakok.
A bejárati ajtó fehér színű, 5 ponton záródó biztonsági zárral.
A beltéri ajtók egyedileg lesznek kiválasztva.
A fűtése hőszivattyúval, a lakásokban egyedi hőmennyiség szabályozóval, padlófűtéssel.
A melegvíz-ellátást eco villanybojler biztosítja.
A padlóburkolatot, a csempét, a járólapot és a szanitereket a vásárló választja ki.
A lakás konyhabútort nem tartalmaz.
Az ingatlanhoz saját, kizárólagos használatú és tulajdonú, lezárható parkoló tartozik.
Miért válassza ezt az ingatlant?
Egyedi fizetési ütemezést határozunk meg az ügyféllel!
A lakások 30 % önrésszel már lefoglalhatóak.

A kivitelezés során az építő kifejezetten figyel a magas minőségre, a magas műszaki tartalomra, illetve a pontos kivitelezésre.
Kapcsolat:
Ha felkeltette érdeklődését az ingatlan, akkor kérem keressen, hogy a részletekről is beszélhessek Önnel.
Akár csak befektetné a pénzét vagy szeretne költözni, most egy igazán értékes ingatlanhoz juthat kedvező áron!
Garantáljuk, hogy a teljes lakóparki projekt megvalósulása során az Ön lakása értékálló, jó befektetés lesz.
Kérem hívjon, hogy további részletekről tájékoztathassam vagy keressen szaktanácsadásért.

Simon Zsolt

06209504680

ml.ingatlan1@gmail.com

Hirdetés feltöltve: 2025. 12. 04. Utoljára módosítva: 2026. 02. 06.

2 szobás téglalakások ára Szombathelyen

Ebből az összehasonlításból megtudhatod, hogyan viszonyul a lakás ára a környékbeli téglalakások átlagos árához. Ez nem azt jelenti, hogy ennyivel olcsóbb vagy drágább, mint amennyit a lakás ér, hanem hogy ennyivel tér el a környékbeli átlagtól.

Ennek a m² ára
Szombathely m² ár
776 e Ft
955 e Ft 19%
Ennek az ára
Szombathely átlagár
34.9 M Ft m Ft
43.8 m Ft 20%

Az ingatlan elhelyezkedése

Cím: Szombathely, 1. emelet

Eladó téglalakások a környékről

Eladó téglalakás
Eladó téglalakás

Répcelak

17 M Ft
69 m2
Eladó téglalakás
Eladó téglalakás

Szombathely

69 M Ft
4 szoba
136 m2
Eladó téglalakás
Eladó téglalakás

Vasvár

18 M Ft
1 + 1 szoba
56 m2
Eladó téglalakás
Eladó téglalakás

Répcelak, Petőfi Sándor utca

46.2 M Ft
4 szoba
65 m2
Eladó téglalakás
Eladó téglalakás

Szombathely

86.73 M Ft
4 szoba
96 m2
Eladó téglalakás
Eladó téglalakás

Szombathely

69 M Ft
4 szoba
112 m2
Eladó téglalakás
Eladó téglalakás

Sárvár

38 M Ft
5 szoba
116 m2
Eladó téglalakás
Eladó téglalakás

Sárvár

24.9 M Ft
2 szoba
96 m2
Eladó téglalakás
Eladó téglalakás

Szombathely

86.73 M Ft
4 szoba
96 m2
Eladó téglalakás
Eladó téglalakás

Szombathely

86.73 M Ft
4 szoba
96 m2
Eladó téglalakás
Eladó téglalakás

Szombathely

30 M Ft
3 szoba
83 m2
Eladó téglalakás
Eladó téglalakás

Szombathely

77.277 M Ft
3 szoba
74 m2
Eladó téglalakás
Eladó téglalakás

Sárvár

25.99 M Ft
2 szoba
110 m2
Eladó téglalakás
Eladó téglalakás

Kőszeg

46 M Ft
4 szoba
142 m2
Eladó téglalakás
Eladó téglalakás

Szombathely

62.8 M Ft
3 szoba
66 m2
Eladó téglalakás
Eladó téglalakás

Szombathely

79.28 M Ft
4 szoba
80 m2
Eladó téglalakás
Eladó téglalakás

Körmend, Bástya utca

12 M Ft
2 szoba
70 m2
Eladó téglalakás
Eladó téglalakás

Celldömölk

27.99 M Ft
4 szoba
155 m2
Eladó téglalakás
Eladó téglalakás

Szombathely

69 M Ft
4 szoba
136 m2
Eladó téglalakás
Eladó téglalakás

Szombathely

39.9 M Ft
3 szoba
110 m2
Eladó téglalakás
Eladó téglalakás

Répcelak, Petőfi Sándor utca

46.2 M Ft
4 szoba
65 m2
Eladó téglalakás
Eladó téglalakás

Szombathely

86.73 M Ft
4 szoba
96 m2
Eladó téglalakás
Eladó téglalakás

Szombathely

71.99 M Ft
120 m2
Eladó téglalakás
Eladó téglalakás

Szombathely

83.847 M Ft
4 szoba
81 m2

Falusi CSOK ingatlanok

Eladó családi ház
Eladó családi ház

Véménd

46.9 M Ft
5 szoba
195 m2
Eladó családi ház
Eladó családi ház

Helesfa

17.999 M Ft
2 szoba
74 m2
Eladó családi ház
Eladó családi ház

Győrság

89.9 M Ft
4 szoba
92 m2
Eladó családi ház
Eladó családi ház

Újlengyel

59.9 M Ft
3 szoba
73 m2
Eladó családi ház
Eladó családi ház

Marcaltő

26 M Ft
3 szoba
103 m2
Eladó téglalakás
Eladó téglalakás

Balatonszemes

119.9 M Ft
2 szoba
81 m2
Eladó családi ház
Eladó családi ház

Gégény, Kossuth

15 M Ft
4 szoba
135 m2
Eladó családi ház
Eladó családi ház

Recsk

23 M Ft
3 szoba
98 m2