Astora Art House

Eladó téglalakás
Szolnok, 4. emelet

+ 17 kép 1/20
29 900 000 Ft29.9 M Ft 934 375 Ft/m2
1 szoba
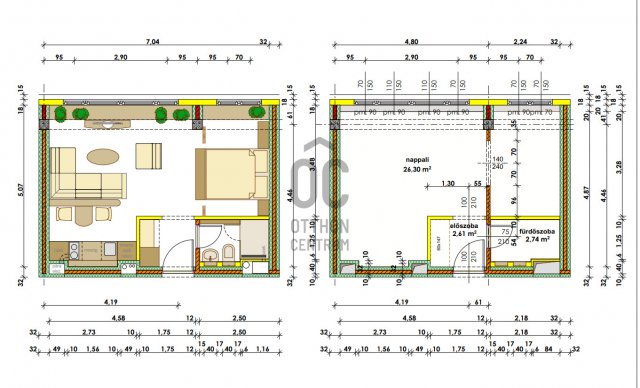
32 m²
4. emelet
építés éve:2026

Részletes adatok

Fűtés: Egyéb
Emelet: 4. emelet
Közmű: Gáz, Villany, Csatorna
Energetikai besorolás: Nem adta meg a hirdető

Az OTP Bank lakáshitel ajánlataFizetett hirdetés

+36 70 435
Bakos-Dósa Ildikó
referens

Érdekel az OTP Bank kedvezményes lakáshitel ajánlata? *

* A kérdésre „Igen” válasz bejelölése esetén, az „Üzenet küldése” gombra kattintva kijelentem, hogy az OTP Bank Nyrt. Adatkezelési tájékoztatójának tartalmát megismertem és tudomásul vettem.

Eladó téglalakás leírása

Eladó modern, új kialakítású lakások Szolnok belvárosában, ahol minden adott az igényes, kifinomult élethez – vagy egy hosszú távon is jövedelmező befektetéshez.

32 nm – kompakt otthon, ahol a praktikum és a kényelem találkozik

BEVEZETŐ ÁR
32 nm – 29,9 m ft

Berendezett mintalakás már megtekinthető, a kiválasztott lakás akár teljes bútorzattal együtt megvásárolható egyeztetés után!
Minden lakás gépesített, beépített konyhabútorral együtt kerül értékesítésre!

Gyere, nézd meg és hozd meg a döntést rövid időn belül:
remek lokáció, minden pár perc sétára
4 lifttel rendelkező, modern társasház
házközponti fűtés-hűtés
Schüco profil nyílászáró. 3 rétegű hőszigetelő üvegezéssel
Első lakásnak is kiváló lehetőség
Letisztult stílus

Várható átadás : 2026.07.31.
További műszaki leírással állok rendelkezésére!

Elérhetőség függvényében lehetőség van saját tároló vásárlására 590.000 ft/nm áron! (2-4 nm nagyságú önálló tárolók)

Irodánkban bankfüggetlen hitel-ügyintézéssel állunk ügyfeleink rendelkezésére!

A hirdetésben szereplő információkat a megbízótól kaptuk, irodánk azokért felelősséget nem vállal!

Ha felkeltettem érdeklődését, kérem hívjon, forduljon hozzám bizalommal, és nézzük meg együtt !
Projekt bemutatása

Eladó 99 modern, új kialakítású lakás Szolnok belvárosában, ahol minden adott az igényes, kifinomult élethez – vagy egy hosszú távon is jövedelmező befektetéshez.

A három méret kínálat különböző élethelyzetekre ad megoldásokat:
30 nm – kompakt otthon, ahol a praktikum és a kényelem találkozik
32 nm – egy otthon hálófülkével, ahol minden nm érték
43 nm – okosan kihasznált terek, egy külön szobával, és saját tárolóval

BEVEZETŐ ÁRAK
30 nm – 26,9 m ft
32 nm – 29,9 m ft
43 nm – 41,9 m ft

Mindhárom méretű lakásból a berendezett mintalakások már megtekinthetők, a kiválasztott lakás akár teljes bútorzattal együtt megvásárolható egyeztetés után!
Minden lakás gépesített, beépített konyhabútorral együtt eladó!

Gyere, nézd meg és hozd meg a döntést rövid időn belül:
remek lokáció, minden pár perc sétára
4 lifttel rendelkező, modern társasház
házközponti fűtés-hűtés
Schüco profil nyílászáró. 3 rétegű hőszigetelő üvegezéssel
Első lakásnak is kiváló lehetőség
Letisztult stílus

Várható átadás : 2026.07.31.
További műszaki leírással állok rendelkezésére!

Elérhetőség függvényében lehetőség van saját tároló vásárlására 590.000 ft/nm áron! (2-4 nm nagyságú önálló tárolók)

Irodánkban bankfüggetlen hitel-ügyintézéssel állunk ügyfeleink rendelkezésére!

A hirdetésben szereplő információkat a megbízótól kaptuk, irodánk azokért felelősséget nem vállal!

Ha felkeltettem érdeklődését, kérem hívjon, forduljon hozzám bizalommal, és nézzük meg együtt !

Hirdetés feltöltve: 2026. 04. 30. Utoljára módosítva: 2026. 05. 27.

1 szobás téglalakások ára Szolnokon

Ebből az összehasonlításból megtudhatod, hogyan viszonyul a lakás ára a környékbeli téglalakások átlagos árához. Ez nem azt jelenti, hogy ennyivel olcsóbb vagy drágább, mint amennyit a lakás ér, hanem hogy ennyivel tér el a környékbeli átlagtól.

Ennek a m² ára
Szolnok m² ár
934 e Ft
884 e Ft -6%
Ennek az ára
Szolnok átlagár
29.9 M Ft m Ft
30.6 m Ft 2%

Az ingatlan elhelyezkedése

Cím: Szolnok, 4. emelet

Eladó téglalakások a környékről

Szolnok
Eladó téglalakás

Szolnok

59.9 M Ft
2 + 2 szoba
96 m²
Szolnok
Eladó téglalakás

Szolnok

58.9 M Ft
2 szoba
73 m²
Tiszafüred
Eladó téglalakás

Tiszafüred

59.8 M Ft
3 szoba
72 m²
Szolnok
Eladó téglalakás

Szolnok

93.1 M Ft
3 szoba
98 m²
Jászapáti
Eladó téglalakás

Jászapáti

19.999 M Ft
2 + 1 szoba
70 m²
Szolnok, Katonaváros
Eladó téglalakás

Szolnok

39.8 M Ft
2 + 1 szoba
77 m²
Szolnok
Eladó téglalakás

Szolnok

32 M Ft
2 szoba
63 m²
Szolnok, Katonaváros
Eladó téglalakás

Szolnok

24.9 M Ft
2 szoba
54 m²
Szolnok
Eladó téglalakás

Szolnok

25 M Ft
1 szoba
40 m²
Szolnok
Eladó téglalakás

Szolnok

32.9 M Ft
2 szoba
61 m²
Szolnok
Eladó téglalakás

Szolnok

93.1 M Ft
3 szoba
98 m²
Szajol
Eladó téglalakás

Szajol

23.99 M Ft
54 m²
54 m²
Szolnok
Eladó téglalakás

Szolnok

59 M Ft
5 szoba
144 m²
Szolnok
Eladó téglalakás

Szolnok

90 M Ft
3 szoba
100 m²
Abádszalók
Eladó téglalakás

Abádszalók

55.186 M Ft
2 szoba
0 m²
Szolnok, Kamaraváros, Szapáry utca
Eladó téglalakás

Szolnok

57.9 M Ft
4 szoba
101 m²
Jászberény
Eladó téglalakás

Jászberény

61.9 M Ft
2 szoba
78 m²
Alattyán
Eladó téglalakás

Alattyán

9.5 M Ft
3 szoba
100 m²
Szolnok
Eladó téglalakás

Szolnok

59.9 M Ft
3 szoba
94 m²
Szolnok
Eladó téglalakás

Szolnok

65.55 M Ft
2 szoba
69 m²
Szolnok, Katonaváros
Eladó téglalakás

Szolnok

49.9 M Ft
4 szoba
109 m²
Szolnok
Eladó téglalakás

Szolnok

90 M Ft
3 szoba
100 m²
Szolnok
Eladó téglalakás

Szolnok

90 M Ft
3 szoba
100 m²
Szolnok
Eladó téglalakás

Szolnok

90 M Ft
3 szoba
100 m²

Falusi CSOK ingatlanok

Maráza
Eladó családi ház

Maráza

29.9 M Ft
3 szoba
96 m²
Hegyeshalom, Margaréta utca 12
Eladó téglalakás

Hegyeshalom

50.09 M Ft
2 szoba
43 m²
Bükkszék
Eladó családi ház

Bükkszék

78.9 M Ft
2 + 1 szoba
160 m²
Békésszentandrás
Eladó családi ház

Békésszentandrás

10 M Ft
1 + 1 szoba
70 m²
Sály, Kossuth Lajos 128
Eladó családi ház

Sály

26.7 M Ft
6 szoba
160 m²
Kétegyháza
Eladó családi ház

Kétegyháza

21 M Ft
3 szoba
105 m²
Monyoród
Eladó családi ház

Monyoród

29.9 M Ft
117 + 3 szoba
117 m²
Törtel
Eladó családi ház

Törtel

31 M Ft
3 szoba
66 m²