Astora Márvány8

Eladó téglalakás
Pécs, Makár, Szigeti út, földszint

+ 2 kép 1/5
71 900 000 Ft71.9 M Ft 1 178 689 Ft/m2
2 szoba
61 m²
földszint

Részletes adatok

Állapot: Felújított
Fűtés: Gázkazán
Emelet: földszint
Parkolás: Kocsibeálló
Energetikai besorolás: A++

Az OTP Bank lakáshitel ajánlataFizetett hirdetés

+36 30 773
Szentendrei Zsanett
referens

Érdekel az OTP Bank kedvezményes lakáshitel ajánlata? *

* A kérdésre „Igen” válasz bejelölése esetén, az „Üzenet küldése” gombra kattintva kijelentem, hogy az OTP Bank Nyrt. Adatkezelési tájékoztatójának tartalmát megismertem és tudomásul vettem.

Eladó téglalakás leírása

KIZÁRÓLAG NÁLUNK - KIVÁLÓ BEFEKTETÉSI LEHETŐSÉG PÉCSETT AZ ORVOSI KARTÓL NEM MESSZE!

Pécs-Egyetemváros szívében, a Szigeti úton, az Orvosi Kartól mindössze pár perc sétára kis létszámú, mindössze 10 lakásos, földszintes, sorházas elrendezésű, szigetelt társasházban nagyon elegáns, teljes mértékben, igényesen és fiatalosan felújított, belső kettőszintes konyha-étkező-nappali és egy külön nyíló hálószobás, egyedi gázkazánokkal szerelt, padlófűtéses, és (dupla)klímahűtéses (H-tarifás), műanyag nyílászárós, nagyon alacsony rezsivel bíró, bruttó 61,21/nettó 48,34 m² alapterületű téglalakás saját, kizárólagos használatú 15,68 m²-es kerttel, 5 m²-es terasszal, 5 m² nagyságú tárolóval, kedvező fizetési ütemezés mellett, 2026. augusztus végi átadással már eladó.

A beruházói szándéknak hála, a korábbi 10 lakásos társasház teljes mértékben megújul, az eddig meglévő albetétek, és ezzel összhangban a lakáskiosztások is maradnak, viszont az épület egésze, annak építészeti jegyei, a korábbi lakások belső helyiségkiosztása, valamint minden egyéb műszaki paraméter teljes felújításon, illetve megújuláson esik át, így jóllehet jogilag nem, de műszakilag egy teljesen új és korszerű épület lesz a végeredmény, amelyben már leköthetők a nemsokára elkészülő ingatlanok.

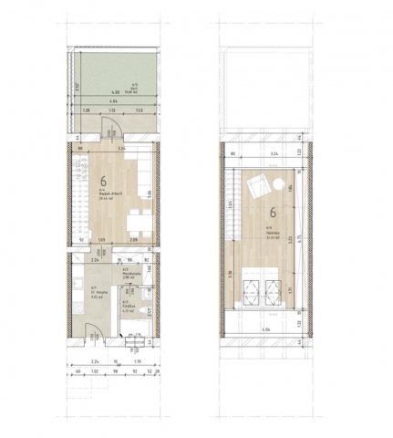
A meghirdetett ingatlan a földszint 6. számú lakásnak felel meg, kiváló az elosztása, mivel a földszinten zuhannyal szerelt (és ablakkal is rendelkező) fürdő-WC, konyha és mosókonyha, valamint kényelmes nappali kerül kialakításra (ahonnan közvetlen kijáratot létesítettek a saját kertbe), míg a nappaliból jutunk a tetőtéri, szintén kényelmes hálószobába.

A lakásban a - földszinti padló és az emeleti radiátoros - fűtést, valamint a használati meleg vizet a saját gázkazán, míg a hűtést szintenként egy-egy 3,5 kWh-s hűtő/fűtő klíma biztosítja. A felújításkor alkalmazott technológia megoldások, valamint a fűtési rendszer miatt a lakás minimális rezsivel üzemeltethető és A+-os energetikai besorolást fog kapni.

A teljes körű felújítások túl valamennyi lakásban gépészettel szerelt (négylapos tűzhely, sütő, páraelszívó, mosogatógép és hűtő) konyhabútor kerül beépítésre.

A vételár tehát tartalmazza a kulcsrakész lakás, a gépészettel szerelt konyhabútor, a terasz, kizárólagos használatú kert, és a saját tároló együttes ellenértékét, azzal, hogy igény esetén az adott lakáshoz a társasház belső, zárt udvarában (nem fedett) gk. beállót is lehet vásárolni, egységesen 6 mFt/db irányáron.

Mivel a társasház ennyire közel fekszik az Orvosi Karhoz, ezért különös tekintettel ajánljuk mindazon kedves érdeklődőnk figyelmébe, akik Pécsett kifejezetten befektetési szándékkal kívánnak ingatlant vásárolni (ideértve természetesen azokat a szülőket is, akik gyermekeik lakhatását kívánják ily módon megoldani), tekintettel arra, hogy a Pécsett tanuló legtöbb külföldi orvostanhallgató leginkább ebben a szektorban kíván lakni. Vásárlás esetén társaságunk természetesen vállalja az ingatlan jövőbeni kiadását és igény esetén a lakáskezelést is.
FONTOS: a részletes műszaki tartalom, a fizetési ütemezés, és befektetési cél támogatása esetében a kiadhatóság kérdéskörében, valamint a helyszíni bejárás időpontjának előzetes egyeztetése vonatkozásában kérünk minden Kedves Érdeklődőnket, hogy hívja a hirdetés feladóját.

Iár.: 71,9 mFt Elérhetőség: 30/773-9436

Hirdetés feltöltve: 2026. 04. 28. Utoljára módosítva: 2026. 05. 14.

2 szobás téglalakások ára Pécsett

Ebből az összehasonlításból megtudhatod, hogyan viszonyul a lakás ára a környékbeli téglalakások átlagos árához. Ez nem azt jelenti, hogy ennyivel olcsóbb vagy drágább, mint amennyit a lakás ér, hanem hogy ennyivel tér el a környékbeli átlagtól.

Ennek a m² ára
Makár m² ár
Pécs m² ár
1179 e Ft
1153 e Ft -2%
1080 e Ft -9%
Ennek az ára
Makár átlagár
Pécs átlagár
71.9 M Ft m Ft
92.1 m Ft 22%
58.1 m Ft -24%

Az ingatlan elhelyezkedése

Cím: Pécs, Makár, Szigeti út, földszint

Eladó téglalakások a környékről

Pécs
Eladó téglalakás

Pécs

90.38 M Ft
2 szoba
72 m²
Pécs
Eladó téglalakás

Pécs

69.89 M Ft
1 szoba
51 m²
Pécs
Eladó téglalakás

Pécs

58.09 M Ft
2 szoba
45 m²
Pécs
Eladó téglalakás

Pécs

95.521 M Ft
3 szoba
73 m²
Pécs
Eladó téglalakás

Pécs

81.7 M Ft
4 szoba
86 m²
Pécs
Eladó téglalakás

Pécs

90.38 M Ft
3 szoba
71 m²
Pécs
Eladó téglalakás

Pécs

68.594 M Ft
2 szoba
52 m²
Pécs
Eladó téglalakás

Pécs

95.52 M Ft
3 szoba
62 m²
Pécs, Szigeti külváros, Hungária utca
Eladó téglalakás

Pécs

29.9 M Ft
1 szoba
41 m²
Pécs
Eladó téglalakás

Pécs

70 M Ft
3 szoba
60 m²
Pécs
Eladó téglalakás

Pécs

74.77 M Ft
2 szoba
60 m²
Pécs
Eladó téglalakás

Pécs

63.9 M Ft
2 szoba
47 m²
Pécs
Eladó téglalakás

Pécs

51.345 M Ft
2 szoba
35 m²
Pécs
Eladó téglalakás

Pécs

74.77 M Ft
2 szoba
60 m²
Pécs
Eladó téglalakás

Pécs

91.2 M Ft
4 szoba
96 m²
Pécs
Eladó téglalakás

Pécs

69.89 M Ft
1 szoba
51 m²
Pécs
Eladó téglalakás

Pécs

68.594 M Ft
2 szoba
52 m²
Pécs
Eladó téglalakás

Pécs

64.011 M Ft
2 szoba
52 m²
Pécs
Eladó téglalakás

Pécs

62.7 M Ft
2 szoba
46 m²
Pécs
Eladó téglalakás

Pécs

7.9 M Ft
1 szoba
26 m²
Pécs
Eladó téglalakás

Pécs

60.958 M Ft
2 szoba
45 m²
Pécs
Eladó téglalakás

Pécs

90.38 M Ft
3 szoba
71 m²
Pécs
Eladó téglalakás

Pécs

90.38 M Ft
2 szoba
72 m²
Pécs
Eladó téglalakás

Pécs

70 M Ft
3 szoba
60 m²

Falusi CSOK ingatlanok

Arló, Mátyás Király utca
Eladó családi ház

Arló

14.99 M Ft
2 szoba
66 m²
Rábaszentmihály
Eladó családi ház

Rábaszentmihály

53 M Ft
3 szoba
156 m²
Tápióság
Eladó családi ház

Tápióság

71.5 M Ft
4 szoba
72 m²
Újhartyán
Eladó családi ház

Újhartyán

59.9 M Ft
4 szoba
75 m²
Szamosszeg
Eladó családi ház

Szamosszeg

22 M Ft
2 szoba
60 m²
Hegyeshalom, Margaréta utca 12
Eladó téglalakás

Hegyeshalom

50.09 M Ft
2 szoba
43 m²
Nyírjákó
Eladó családi ház

Nyírjákó

19 M Ft
3 szoba
115 m²
Balatonakali
Eladó ikerház

Balatonakali

550 M Ft
4 szoba
94 m²