River Life

Eladó téglalakás
Pécs, 2. emelet

+ 17 kép 1/20
47 900 000 Ft47.9 M Ft 958 000 Ft/m2
2 szoba
50 m2
2. emelet
építés éve:1965

Részletes adatok

Fűtés: Távfűtés
Energetikai besorolás: Nem adta meg a hirdető

Az OTP Bank lakáshitel ajánlataFizetett hirdetés

+36 30 204
Reisz Éva
OTPIP - Pécs, Rákóczi út 19.

Érdekel az OTP Bank kedvezményes lakáshitel ajánlata? *

* A kérdésre „Igen” válasz bejelölése esetén, az „Üzenet küldése” gombra kattintva kijelentem, hogy az OTP Bank Nyrt. Adatkezelési tájékoztatójának tartalmát megismertem és tudomásul vettem.

Eladó téglalakás leírása

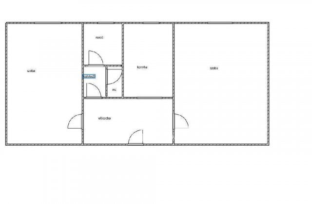
Eladó Pécs-Uránvárosban egy 2 szobás, második emeleti, 50 nm alapterületű lakás. A 3 emeletes társasház csúsztatott zsalus technológiával készült, mind a ház fala, mind a tető szigetelt, így kedvező hőkomfort és energiatakarékosság biztosított.

A lakás műanyag hőszigetelt ablakokkal rendelkezik, redőnnyel és szúnyoghálóval felszerelt, a bejárati ajtó széles, műanyag, a belső ajtók pedig egyedi gyártású fa ajtók. A fürdőszobában zuhanyzó található, a WC külön helyiségben van. Mindkét szobában klímaberendezés segíti a kellemes hőmérsékletet. A fűtés távfűtéses, egyedi mérővel mérve, így a rezsi jobb tervezhetősége adott.

Parkolási lehetőség ingyenes az épület környékén. A környék infrastruktúrája kiváló: iskola, óvoda, orvosi rendelő, boltok, üzletek és buszmegálló pár perc sétával elérhetők, ami nagyban megkönnyíti a mindennapi életet.

Amennyiben felkeltette érdeklődését ez az otthon, szívesen adok további információt vagy egyeztetünk megtekintési időpontot.
Otthon Start fix 3 %. hitel! OTP Bankhitelhez kapcsolódóan az OTP Ingatlanpont irodánk teljes körű tájékoztatást és ügyintézést vállal.
M314991

Referencia szám: M314991-ZE

Hirdetés feltöltve: 2025. 11. 14. Utoljára módosítva: 2025. 11. 14.

2 szobás téglalakások ára Pécsett

Ebből az összehasonlításból megtudhatod, hogyan viszonyul a lakás ára a környékbeli téglalakások átlagos árához. Ez nem azt jelenti, hogy ennyivel olcsóbb vagy drágább, mint amennyit a lakás ér, hanem hogy ennyivel tér el a környékbeli átlagtól.

Ennek a m² ára
Pécs m² ár
958 e Ft
1035 e Ft 7%
Ennek az ára
Pécs átlagár
47.9 M Ft m Ft
56.9 m Ft 16%

Az ingatlan elhelyezkedése

Cím: Pécs, 2. emelet

Eladó téglalakások a környékről

Eladó téglalakás
Eladó téglalakás

Pécs

74.77 M Ft
2 szoba
60 m2
Eladó téglalakás
Eladó téglalakás

Komló, Irinyi János utca

18.9 M Ft
2 szoba
54 m2
Eladó téglalakás
Eladó téglalakás

Pécs

90.38 M Ft
2 szoba
72 m2
Eladó téglalakás
Eladó téglalakás

Pécs

51.345 M Ft
2 szoba
35 m2
Eladó téglalakás
Eladó téglalakás

Pécs

62.698 M Ft
2 szoba
49 m2
Eladó téglalakás
Eladó téglalakás

Pécs

81.7 M Ft
4 szoba
86 m2
Eladó téglalakás
Eladó téglalakás

Mohács

33 M Ft
5 szoba
110 m2
Eladó téglalakás
Eladó téglalakás

Pécs, Belváros, Papnövelde utca

22.9 M Ft
1 szoba
28 m2
Eladó téglalakás
Eladó téglalakás

Pécs

68.594 M Ft
2 szoba
52 m2
Eladó téglalakás
Eladó téglalakás

Pécs

91.2 M Ft
4 szoba
96 m2
Eladó téglalakás
Eladó téglalakás

Pécs

58.09 M Ft
2 szoba
45 m2
Eladó téglalakás
Eladó téglalakás

Pécs

69.93 M Ft
2 szoba
54 m2
Eladó téglalakás
Eladó téglalakás

Pécs

63.9 M Ft
2 szoba
47 m2
Eladó téglalakás
Eladó téglalakás

Kozármisleny, Október 23. tér

60 M Ft
3 szoba
80 m2
Eladó téglalakás
Eladó téglalakás

Pécs, Szigeti külváros, Hungária utca

29.9 M Ft
1 szoba
41 m2
Eladó téglalakás
Eladó téglalakás

Pécs

95.521 M Ft
3 szoba
73 m2
Eladó téglalakás
Eladó téglalakás

Pécs

63.588 M Ft
2 szoba
52 m2
Eladó téglalakás
Eladó téglalakás

Pécs

51.345 M Ft
2 szoba
35 m2
Eladó téglalakás
Eladó téglalakás

Pécs

69.89 M Ft
1 szoba
51 m2
Eladó téglalakás
Eladó téglalakás

Pécs

60.896 M Ft
2 szoba
48 m2
Eladó téglalakás
Eladó téglalakás

Pécs

60.958 M Ft
2 szoba
45 m2
Eladó téglalakás
Eladó téglalakás

Pécs, Belváros, Papnövelde utca

22.9 M Ft
1 szoba
28 m2
Eladó téglalakás
Eladó téglalakás

Komló, Zrínyi tér

13.5 M Ft
2 szoba
54 m2
Eladó téglalakás
Eladó téglalakás

Pécs

58.09 M Ft
2 szoba
45 m2

Falusi CSOK ingatlanok

Eladó családi ház
Eladó családi ház

Törtel

18 M Ft
6 szoba
188 m2
Eladó családi ház
Eladó családi ház

Szigetújfalu

120 M Ft
291 m2
Eladó családi ház
Eladó családi ház

Cece

23.5 M Ft
3 szoba
66 m2
Eladó családi ház
Eladó családi ház

Hegyhátsál

39.9 M Ft
3 szoba
122 m2
Eladó családi ház
Eladó családi ház

Törtel

25.9 M Ft
5 szoba
95 m2
Eladó családi ház
Eladó családi ház

Hövej

149.9 M Ft
4 szoba
115 m2
Eladó családi ház
Eladó családi ház

Pétfürdő

36.5 M Ft
3 szoba
100 m2
Eladó családi ház
Eladó családi ház

Bugac

55 M Ft
3 szoba
90 m2