Astora Art House

Eladó téglalakás
Pécs, 2. emelet

+ 15 kép 1/18
65 000 000 Ft65 M Ft 984 848 Ft/m2
2 szoba
66 m2
2. emelet
építés éve:1964

Részletes adatok

Állapot: Felújított
Fűtés: Távfűtés
Extrák: Lift
Energetikai besorolás: Nem adta meg a hirdető

Az OTP Bank lakáshitel ajánlataFizetett hirdetés

+36 20 509
Szabó Ágnes
OTPIP - Pécs, Rákóczi út 19.

Érdekel az OTP Bank kedvezményes lakáshitel ajánlata? *

* A kérdésre „Igen” válasz bejelölése esetén, az „Üzenet küldése” gombra kattintva kijelentem, hogy az OTP Bank Nyrt. Adatkezelési tájékoztatójának tartalmát megismertem és tudomásul vettem.

Eladó téglalakás leírása

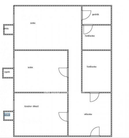
Pécs egyik legnépszerűbb városrészében, Uránvárosban, az Esztergár Lajos utcában kínálok eladásra egy 66nm-es, 7/2. emeleti, tágas, 2 szobás, 2 fürdőszobás, gardróbbal, konyha/étkezővel és előszobával rendelkező liftes társasházi lakást, amely jelenleg teljeskörű felújítás alatt áll.
A téglaépület második emeletén található ingatlan különleges adottságokkal rendelkezik: három erkélye bőséges természetes fényt biztosít, a távfűtés egyedi mérőórával működik, a kilátás utcai, a fényviszonyok pedig kifejezetten kedvezőek. Az épületben lift is található, a parkolás közterületen, ingyenesen megoldható.
A lakás elrendezése praktikus és kényelmes: két külön nyíló szoba, konyha?étkező, gardrób, valamint két fürdőszoba (az egyikben tusoló, a másikban kád) szolgálja a lakók kényelmét.
A felújítás során minden helyiség megújul, így a leendő tulajdonos gyakorlatilag új otthonba költözhet, garanciával. A felújítás befejezésének várható időpontja október vége, a megtekintés előzetes egyeztetéssel már most is lehetséges. A kész állapotról készült fényképek hamarosan elérhetők lesznek.
M314046

Referencia szám: M314046

Hirdetés feltöltve: 2025. 10. 30. Utoljára módosítva: 2025. 12. 15.

2 szobás téglalakások ára Pécsett

Ebből az összehasonlításból megtudhatod, hogyan viszonyul a lakás ára a környékbeli téglalakások átlagos árához. Ez nem azt jelenti, hogy ennyivel olcsóbb vagy drágább, mint amennyit a lakás ér, hanem hogy ennyivel tér el a környékbeli átlagtól.

Ennek a m² ára
Pécs m² ár
985 e Ft
861 e Ft -14%
Ennek az ára
Pécs átlagár
65 M Ft m Ft
100.7 m Ft 35%

Az ingatlan elhelyezkedése

Cím: Pécs, 2. emelet

Eladó téglalakások a környékről

Eladó téglalakás
Eladó téglalakás

Pécs

58.09 M Ft
2 szoba
45 m2
Eladó téglalakás
Eladó téglalakás

Pécs, Belváros, Papnövelde utca

22.9 M Ft
1 szoba
28 m2
Eladó téglalakás
Eladó téglalakás

Pécs

95.521 M Ft
3 szoba
73 m2
Eladó téglalakás
Eladó téglalakás

Pécs

81.7 M Ft
4 szoba
86 m2
Eladó téglalakás
Eladó téglalakás

Pécs

69.89 M Ft
1 szoba
51 m2
Eladó téglalakás
Eladó téglalakás

Pécs

63.9 M Ft
2 szoba
47 m2
Eladó téglalakás
Eladó téglalakás

Komló, Zrínyi tér

13.5 M Ft
2 szoba
54 m2
Eladó téglalakás
Eladó téglalakás

Pécs

60.896 M Ft
2 szoba
48 m2
Eladó téglalakás
Eladó téglalakás

Pécs

91.2 M Ft
4 szoba
96 m2
Eladó téglalakás
Eladó téglalakás

Mohács

79.9 M Ft
3 szoba
105 m2
Eladó téglalakás
Eladó téglalakás

Pécs

90.38 M Ft
3 szoba
71 m2
Eladó téglalakás
Eladó téglalakás

Pécs

95.52 M Ft
3 szoba
62 m2
Eladó téglalakás
Eladó téglalakás

Pécs

90.38 M Ft
2 szoba
72 m2
Eladó téglalakás
Eladó téglalakás

Pécs

63.588 M Ft
2 szoba
52 m2
Eladó téglalakás
Eladó téglalakás

Pécs

70 M Ft
3 szoba
60 m2
Eladó téglalakás
Eladó téglalakás

Pécs

81.7 M Ft
4 szoba
86 m2
Eladó téglalakás
Eladó téglalakás

Pécs

62.7 M Ft
2 szoba
46 m2
Eladó téglalakás
Eladó téglalakás

Pécs

7.9 M Ft
1 szoba
26 m2
Eladó téglalakás
Eladó téglalakás

Pécs

81.7 M Ft
4 szoba
86 m2
Eladó téglalakás
Eladó téglalakás

Pécs

51.345 M Ft
2 szoba
35 m2
Eladó téglalakás
Eladó téglalakás

Pécs

91.2 M Ft
4 szoba
96 m2
Eladó téglalakás
Eladó téglalakás

Pécs

51.345 M Ft
2 szoba
35 m2
Eladó téglalakás
Eladó téglalakás

Pécs

58.09 M Ft
2 szoba
45 m2
Eladó téglalakás
Eladó téglalakás

Kozármisleny, Október 23. tér

60 M Ft
3 szoba
80 m2

Falusi CSOK ingatlanok

Eladó családi ház
Eladó családi ház

Nemesvid, Templom utca

16 M Ft
2 szoba
76 m2
Eladó családi ház
Eladó családi ház

Bag

110 M Ft
5 szoba
320 m2
Eladó családi ház
Eladó családi ház

Homokbödöge

49.9 M Ft
4 + 1 szoba
167 m2
Eladó családi ház
Eladó családi ház

Mezőzombor

19.99 M Ft
3 szoba
91 m2
Eladó családi ház
Eladó családi ház

Patak

26.9 M Ft
4 szoba
160 m2
Eladó téglalakás
Eladó téglalakás

Rétság

44.9 M Ft
2 szoba
55 m2
Eladó családi ház
Eladó családi ház

Dáka

69.125 M Ft
5 szoba
135 m2
Eladó családi ház
Eladó családi ház

Ádánd

79 M Ft
4 szoba
140 m2