River Life

Eladó téglalakás
Nyíregyháza, földszint

+ 10 kép 1/13
36 500 000 Ft36.5 M Ft 986 486 Ft/m2
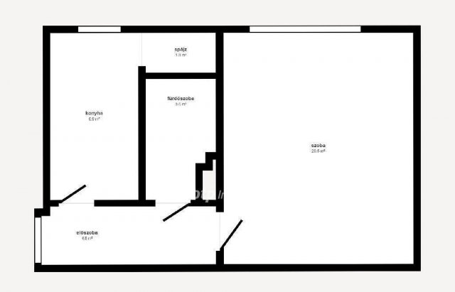
1 szoba
37 m²
földszint
építés éve:1980

Részletes adatok

Állapot: Átlagos
Fűtés: Gázkonvektor
Emelet: földszint
Energetikai besorolás: Nem adta meg a hirdető

Az OTP Bank lakáshitel ajánlataFizetett hirdetés

+36 70 316
Pannuska Marcell
OTPip - Nyíregyháza Sólyom utca 4 - OTP Ingatlanpont Iroda

Érdekel az OTP Bank kedvezményes lakáshitel ajánlata? *

* A kérdésre „Igen” válasz bejelölése esetén, az „Üzenet küldése” gombra kattintva kijelentem, hogy az OTP Bank Nyrt. Adatkezelési tájékoztatójának tartalmát megismertem és tudomásul vettem.

Eladó téglalakás leírása

Nyíregyháza belvárosában, a Bessenyei tér kulturális negyedében eladó egy földszinti, 1 szobás, 37 nm-es tégla lakás.

Az ingatlan elhelyezkedése kiváló: a belváros szívében található, így minden fontos közintézmény, boltok, iskola, óvoda és a tömegközlekedés néhány perc sétával elérhető. A ház előtt szabadidőpark biztosít lehetőséget sportolásra és futásra.

A lakás fűtéséről gázkonvektor gondoskodik, elrendezése időseknek, egyedülállóknak és egyetemistáknak egyaránt ideális. Az ingatlan tehermentes és azonnal költözhető.

Kivételes elhelyezkedésének köszönhetően befektetésnek is remek választás.

OTP Banki hátterünknek köszönhetően finanszírozási igényekben (pl. Otthon Start Hitelprogram, Babaváró, Falusi CSOK, CSOK Plusz, Lakáshitel, Személyi kölcsön stb.), illetve biztosítások tekintetében is díjmentesen, soron kívüli ügyintézéssel segítem ügyfeleim!

Hirdetés feltöltve: 2026. 04. 01. Utoljára módosítva: 2026. 04. 21.

1 szobás téglalakások ára Nyíregyházán

Ebből az összehasonlításból megtudhatod, hogyan viszonyul a lakás ára a környékbeli téglalakások átlagos árához. Ez nem azt jelenti, hogy ennyivel olcsóbb vagy drágább, mint amennyit a lakás ér, hanem hogy ennyivel tér el a környékbeli átlagtól.

Ennek a m² ára
Nyíregyháza m² ár
986 e Ft
1022 e Ft 3%
Ennek az ára
Nyíregyháza átlagár
36.5 M Ft m Ft
42.7 m Ft 15%

Az ingatlan elhelyezkedése

Cím: Nyíregyháza, földszint

Eladó téglalakások a környékről

Nyíregyháza
Eladó téglalakás

Nyíregyháza

36 M Ft
2 szoba
58 m²
Tiszavasvári
Eladó téglalakás

Tiszavasvári

19.5 M Ft
3 szoba
61 m²
Nyíregyháza
Eladó téglalakás

Nyíregyháza

73 M Ft
2 + 1 szoba
67 m²
Nyíregyháza
Eladó téglalakás

Nyíregyháza

72.5 M Ft
3 + 1 szoba
170 m²
Nyíregyháza
Eladó téglalakás

Nyíregyháza

73 M Ft
2 + 1 szoba
67 m²
Nyíregyháza
Eladó téglalakás

Nyíregyháza

59.9 M Ft
5 szoba
120 m²
Nyíregyháza
Eladó téglalakás

Nyíregyháza

53.7 M Ft
3 szoba
83 m²
Nyíregyháza
Eladó téglalakás

Nyíregyháza

77 M Ft
3 szoba
61 m²
Nyíregyháza
Eladó téglalakás

Nyíregyháza

36 M Ft
2 szoba
58 m²
Nyíregyháza, Örökösföld, Törzs utca 2
Eladó téglalakás

Nyíregyháza

67.9 M Ft
3 szoba
71 m²
Tiszavasvári, Kossuth Lajos utca
Eladó téglalakás

Tiszavasvári

18 M Ft
3 szoba
61 m²
Nyíregyháza
Eladó téglalakás

Nyíregyháza

36 M Ft
2 szoba
58 m²
Nyíregyháza
Eladó téglalakás

Nyíregyháza

55.9 M Ft
2 szoba
74 m²
Nyíregyháza
Eladó téglalakás

Nyíregyháza

43.5 M Ft
3 + 1 szoba
79 m²
Nyíregyháza
Eladó téglalakás

Nyíregyháza

69.8 M Ft
4 szoba
92 m²
Nyíregyháza
Eladó téglalakás

Nyíregyháza

55.8 M Ft
3 szoba
63 m²
Nyíregyháza
Eladó téglalakás

Nyíregyháza

55.9 M Ft
2 szoba
74 m²
Nyíregyháza
Eladó téglalakás

Nyíregyháza

84.9 M Ft
4 szoba
152 m²
Nyíregyháza
Eladó téglalakás

Nyíregyháza

39.9 M Ft
2 szoba
67 m²
Nyíregyháza
Eladó téglalakás

Nyíregyháza

77.5 M Ft
4 szoba
120 m²
Nyíregyháza, Örökösföld, Törzs utca 2
Eladó téglalakás

Nyíregyháza

74.9 M Ft
3 szoba
75 m²
Nyíregyháza
Eladó téglalakás

Nyíregyháza

36 M Ft
2 szoba
58 m²
Nyíregyháza
Eladó téglalakás

Nyíregyháza

55.5 M Ft
2 szoba
78 m²
Nyíregyháza
Eladó téglalakás

Nyíregyháza

43.5 M Ft
3 + 1 szoba
79 m²

Falusi CSOK ingatlanok

Somlójenő
Eladó családi ház

Somlójenő

64.9 M Ft
4 szoba
221 m²
Gönc
Eladó családi ház

Gönc

18 M Ft
2 szoba
80 m²
Ságvár
Eladó családi ház

Ságvár

53.9 M Ft
3 szoba
75 m²
Marcalgergelyi
Eladó családi ház

Marcalgergelyi

31 M Ft
2 + 1 szoba
120 m²
Bácsbokod
Eladó családi ház

Bácsbokod

55 M Ft
6 szoba
250 m²
Vizsoly
Eladó családi ház

Vizsoly

77 M Ft
5 szoba
190 m²
Nagyszénás
Eladó családi ház

Nagyszénás

14 M Ft
3 szoba
81 m²
Gönc
Eladó családi ház

Gönc

24 M Ft
2 szoba
105 m²