Astora Márvány8

Eladó téglalakás
Nyíregyháza, Belváros, 2. emelet

+ 5 kép 1/8
42 660 000 Ft42.66 M Ft 761 786 Ft/m2
1 szoba
56 m²
2. emelet
építés éve:2026

Részletes adatok

Fűtés: Egyéb
Emelet: 2. emelet
Extrák: Lift
Energetikai besorolás: Nem adta meg a hirdető

Az OTP Bank lakáshitel ajánlataFizetett hirdetés

+36 30 647
Tirpák Ferenc
referens

Érdekel az OTP Bank kedvezményes lakáshitel ajánlata? *

* A kérdésre „Igen” válasz bejelölése esetén, az „Üzenet küldése” gombra kattintva kijelentem, hogy az OTP Bank Nyrt. Adatkezelési tájékoztatójának tartalmát megismertem és tudomásul vettem.

Eladó téglalakás leírása

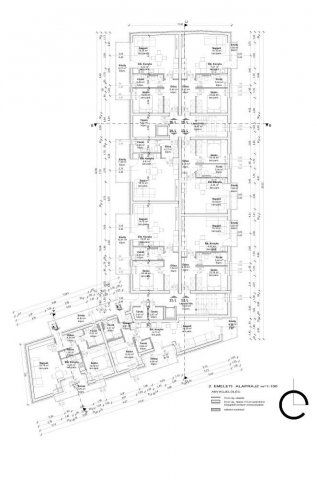
Ikonikus Prémium Rezidencia – Második emeleti lakások Nyíregyháza szívében

Eladásra kínálunk második emeleti lakásokat Nyíregyháza belvárosának közvetlen közelében, a belváros és a kórház közötti exkluzív lokációban. Ez a háromszintes, húszlakásos, liftes prémium rezidencia tökéletes egyensúlyt teremt a modern városi életstílus és a nyugodt, minőségi otthon között.

Ez nem csupán egy új építésű társasház – ez egy életérzés.
Limitált darabszám. Emelt szintű élettér.

Az előértékesítésben megvásárolható lakások:

9. LAKÁS - 2. emelet
Bruttó alapterület: 54,09 m2
Erkély: 2,60 m2
Terasz: 3,58
Irányár: 55.000.000 HUF

10. LAKÁS - 2. emelet
Bruttó alapterület: 55,59 m2
Erkély: 3,69 m2
Terasz: 3.70 m2
Irányár: 52.890.000 HUF

11. LAKÁS - 2. emelet
Bruttó alapterület: 62,42 m2
Erkély: 10,41 m2
Irányár: 61.670.000 HUF

12. LAKÁS - ELADVA
Bruttó alapterület: 46,78 m2
Erkély: 1,80 m2

13. LAKÁS - 2. emelet - ELADVA
Bruttó alapterület: 46,98m2
Erkély: 1,80 m2

14. LAKÁS - 2. emelet
Bruttó alapterület: 44,34 m2
Erkély: 7,40 m2
Irányár: 42.660.000 HUF

15. LAKÁS - 2. emelet
Bruttó alapterület: 49,62 m2
Erkély: 1,80 m2
Irányár: 48.720.000 HUF

16. LAKÁS - 2. emelet - ELADVA
Bruttó alapterület: 46,77 m2
Erkély: 9,95 m2

A projekt célja egy olyan prémium komplexum létrehozása, amely a kényelmet, fenntarthatóságot és eleganciát magas szinten ötvözi – mindezt a pezsgő belváros közvetlen közelében.

Két lépcsőház
Két lift
Privát, élhető közösség

Modern technológia – időtálló érték

A lakások műszaki tartalma a minőségi kategóriát képviseli:

Gáz-cirkó fűtés
Teljes felületen padlófűtés
Ajándék klíma
Háromrétegű műanyag nyílászárók
Téglaépítés

A kényelem és az energiahatékonyság itt valóban kéz a kézben jár – alacsony
fenntartási költség, magas komfortszint.

Választható elrendezések

• 1 hálószoba + amerikai konyhás nappali
• 2 hálószoba + amerikai konyhás nappali
Erkélyes, loggiás vagy teraszos kialakítással
(Az erkélyek és loggiák fél áron kerülnek beszámításra.)

Extra lehetőségek

Kocsibeálló: 2.500.000 HUF
16 m²-es garázs: 8.500.000 HUF
Részben parkosított, térkövezett udvar
Elektronikával felszerelt garázsok
Földszinten két üzlethelyiség

Otthon Start hitel igényelhető.

Időzítés – most érdemes lépni

Építkezés kezdete: 2026. március
Várható átadás: 2027. nyár vége

Az előértékesítés elindult, a kivitelező referenciái alapján a lakások várhatóan gyorsan gazdára találnak.
Ha szeretné élvezni a belváros közelségét, de nem kíván kompromisszumot kötni minőségben és eleganciában, ez a projekt Önnek szól. Foglalja le most második emeleti álomotthonát bevezető áron, és biztosítsa helyét Nyíregyháza egyik legígéretesebb prémium fejlesztésében!

Hirdetés feltöltve: 2026. 02. 24. Utoljára módosítva: 2026. 05. 18.

1 szobás téglalakások ára Nyíregyházán

Ebből az összehasonlításból megtudhatod, hogyan viszonyul a lakás ára a környékbeli téglalakások átlagos árához. Ez nem azt jelenti, hogy ennyivel olcsóbb vagy drágább, mint amennyit a lakás ér, hanem hogy ennyivel tér el a környékbeli átlagtól.

Ennek a m² ára
Belváros m² ár
Nyíregyháza m² ár
762 e Ft
1007 e Ft 24%
1041 e Ft 27%
Ennek az ára
Belváros átlagár
Nyíregyháza átlagár
42.66 M Ft m Ft
46.3 m Ft 8%
43.8 m Ft 3%

Az ingatlan elhelyezkedése

Cím: Nyíregyháza, Belváros, 2. emelet

Eladó téglalakások a környékről

Nyíregyháza
Eladó téglalakás

Nyíregyháza

43.5 M Ft
3 + 1 szoba
79 m²
Nyíregyháza
Eladó téglalakás

Nyíregyháza

55.5 M Ft
2 szoba
78 m²
Nyíregyháza
Eladó téglalakás

Nyíregyháza

77 M Ft
3 szoba
61 m²
Nyíregyháza, Örökösföld, Törzs utca 2
Eladó téglalakás

Nyíregyháza

74.9 M Ft
3 szoba
75 m²
Nyíregyháza
Eladó téglalakás

Nyíregyháza

43.5 M Ft
3 + 1 szoba
79 m²
Nyíregyháza
Eladó téglalakás

Nyíregyháza

32 M Ft
1 szoba
36 m²
Nyíregyháza
Eladó téglalakás

Nyíregyháza

105 M Ft
4 szoba
150 m²
Nyíregyháza
Eladó téglalakás

Nyíregyháza

105 M Ft
4 szoba
150 m²
Nyíregyháza
Eladó téglalakás

Nyíregyháza

59.9 M Ft
5 szoba
120 m²
Nyíregyháza, Örökösföld, Törzs utca 2
Eladó téglalakás

Nyíregyháza

67.9 M Ft
3 szoba
71 m²
Nyíregyháza, Örökösföld, Törzs utca 2
Eladó téglalakás

Nyíregyháza

74.9 M Ft
3 szoba
75 m²
Nyíregyháza, Örökösföld, Törzs utca 2
Eladó téglalakás

Nyíregyháza

67.9 M Ft
3 szoba
71 m²
Nyíregyháza
Eladó téglalakás

Nyíregyháza

72.5 M Ft
3 + 1 szoba
170 m²
Nyíregyháza
Eladó téglalakás

Nyíregyháza

64.9 M Ft
5 szoba
120 m²
Nyíregyháza
Eladó téglalakás

Nyíregyháza

73 M Ft
2 + 1 szoba
67 m²
Nyíregyháza
Eladó téglalakás

Nyíregyháza

55.9 M Ft
2 szoba
74 m²
Nyíregyháza
Eladó téglalakás

Nyíregyháza

72.5 M Ft
3 + 1 szoba
170 m²
Nyíregyháza
Eladó téglalakás

Nyíregyháza

32 M Ft
1 szoba
36 m²
Nyíregyháza
Eladó téglalakás

Nyíregyháza

55.9 M Ft
2 szoba
74 m²
Nyíregyháza
Eladó téglalakás

Nyíregyháza

105 M Ft
4 szoba
150 m²
Nyíregyháza
Eladó téglalakás

Nyíregyháza

39.9 M Ft
2 szoba
67 m²
Nyíregyháza
Eladó téglalakás

Nyíregyháza

53.7 M Ft
3 szoba
83 m²
Nyíregyháza
Eladó téglalakás

Nyíregyháza

79.99 M Ft
4 szoba
152 m²
Nyíregyháza
Eladó téglalakás

Nyíregyháza

55.8 M Ft
3 szoba
63 m²

Falusi CSOK ingatlanok

Iváncsa
Eladó családi ház

Iváncsa

93.5 M Ft
5 szoba
283 m²
Halimba
Eladó családi ház

Halimba

59.9 M Ft
6 szoba
182 m²
Dunaegyháza
Eladó családi ház

Dunaegyháza

29.49 M Ft
3 szoba
70 m²
Sződ
Eladó családi ház

Sződ

116 M Ft
5 szoba
136 m²
Tápióság
Eladó családi ház

Tápióság

57 M Ft
4 szoba
94 m²
Kétegyháza
Eladó családi ház

Kétegyháza

21 M Ft
3 szoba
105 m²
Törtel
Eladó családi ház

Törtel

31 M Ft
3 szoba
66 m²
Szabadbattyán
Eladó családi ház

Szabadbattyán

79.6 M Ft
4 szoba
101 m²