Avico Greentop

Eladó téglalakás
Nyíregyháza

+ 4 kép 1/7
42 660 000 Ft42.66 M Ft 969 545 Ft/m2
1 szoba
44 m²
építés éve:2026

Részletes adatok

Fűtés: Egyéb
Extrák: Lift
Energetikai besorolás: Nem adta meg a hirdető

Az OTP Bank lakáshitel ajánlataFizetett hirdetés

+36 30 647
Tirpák Ferenc
referens

Érdekel az OTP Bank kedvezményes lakáshitel ajánlata? *

* A kérdésre „Igen” válasz bejelölése esetén, az „Üzenet küldése” gombra kattintva kijelentem, hogy az OTP Bank Nyrt. Adatkezelési tájékoztatójának tartalmát megismertem és tudomásul vettem.

Eladó téglalakás leírása

Városi elegancia a második emeleten – Prémium Otthonok Nyíregyháza kiemelt lokációjában

Nyíregyháza belvárosának közvetlen közelében, a belváros és a kórház közötti exkluzív övezetben kínáljuk megvételre a második emelet válogatott lakásait egy háromszintes, húszlakásos, liftes prémium rezidenciában.

Ez a fejlesztés nem pusztán új építésű társasház – hanem tudatosan megtervezett, értékálló élettér azok számára, akik a városi kényelmet elegáns, nyugodt környezetben kívánják élvezni.

Kifinomult építészeti koncepció – diszkrét exkluzivitás

Két külön lépcsőház
Két modern lift
Limitált lakásszám - privát, élhető közösség

Az épület arányai, megjelenése és belső kialakítása egyaránt a prémium minőséget tükrözik, miközben élhető, családias léptéket őriznek.

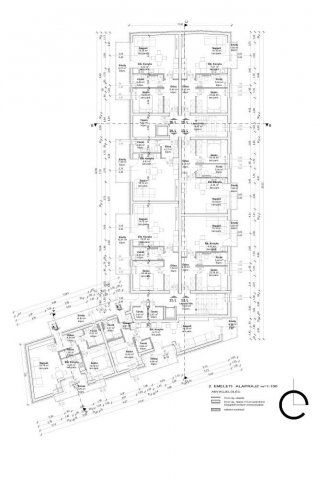
Az előértékesítésben megvásárolható lakások:

13. LAKÁS - 2. emelet - ELADVA
Bruttó alapterület: 46,98m2
Erkély: 1,80 m2

14. LAKÁS - 2. emelet
Bruttó alapterület: 44,34 m2
Erkély: 7,40 m2
Irányár:42.660.000 HUF

15. LAKÁS - 2. emelet
Bruttó alapterület: 49,62 m2
Erkély: 1,80 m2
Irányár: 48.720.000 HUF

16. LAKÁS - 2. emelet - ELADVA
Bruttó alapterület: 46,77 m2
Erkély: 9,95 m2

Rendezett, parkosított belső kert

A részben parkosított, igényesen térkövezett belső udvar csendes, zöld oázist teremt a városi környezetben.

Gondozott zöldfelületek
Esztétikus, letisztult kialakítás
Nyugodt, biztonságos közösségi tér

Korszerű műszaki tartalom – időtálló érték

A lakások felszereltsége a magas műszaki színvonalat képviseli:

Teljes felületű padlófűtés
Gáz-cirkó rendszer
Ajándék klímaberendezés
Háromrétegű, hőszigetelt nyílászárók
Minőségi téglaépítés

Az energiahatékonyság és a komfort kiegyensúlyozott egységet alkot, biztosítva az alacsony fenntartási költséget és a kimagasló lakóélményt.

Átgondolt alaprajzok – választható kialakítás

• 1 hálószoba + amerikai konyhás nappali
• 2 hálószoba + amerikai konyhás nappali

Erkélyes, loggiás vagy teraszos kivitelben
(A kültéri kapcsolatok területe fél áron kerül beszámításra.)

Kényelmi extrák

Felszíni beálló: 2.500.000 HUF
16 m²-es, elektronikával felszerelt garázs: 8.500.000 HUF
Földszinten két üzlethelyiség

Otthon Start hitel igényelhető.

Előértékesítés – stratégiai időzítés

Építkezés kezdete: 2026. március
Várható átadás: 2027. nyár vége

Az előértékesítés megkezdődött, a projekt adottságai és a lokáció kiemelkedő értékállóságot képviselnek.
Amennyiben olyan második emeleti otthont keres, amely ötvözi a belvárosi közelséget, a parkosított belső kert nyugalmát és a prémium műszaki tartalmat, ez a lehetőség Önnek szól.

Foglalja le időben új otthonát, és válassza a minőséget – elegánsan, tudatosan, hosszú távra.

Hirdetés feltöltve: 2026. 02. 24.

1 szobás téglalakások ára Nyíregyházán

Ebből az összehasonlításból megtudhatod, hogyan viszonyul a lakás ára a környékbeli téglalakások átlagos árához. Ez nem azt jelenti, hogy ennyivel olcsóbb vagy drágább, mint amennyit a lakás ér, hanem hogy ennyivel tér el a környékbeli átlagtól.

Ennek a m² ára
Nyíregyháza m² ár
970 e Ft
1021 e Ft 5%
Ennek az ára
Nyíregyháza átlagár
42.66 M Ft m Ft
42.8 m Ft 0%

Az ingatlan elhelyezkedése

Cím: Nyíregyháza

Eladó téglalakások a környékről

Nyíregyháza
Eladó téglalakás

Nyíregyháza

54.5 M Ft
3 szoba
67 m²
Nyíregyháza
Eladó téglalakás

Nyíregyháza

54.5 M Ft
3 szoba
67 m²
Nyíregyháza
Eladó téglalakás

Nyíregyháza

37.5 M Ft
1 szoba
44 m²
Nyíregyháza
Eladó téglalakás

Nyíregyháza

53.7 M Ft
2 szoba
83 m²
Nyíregyháza
Eladó téglalakás

Nyíregyháza

53.7 M Ft
3 szoba
83 m²
Nyíregyháza
Eladó téglalakás

Nyíregyháza

43.5 M Ft
3 + 1 szoba
79 m²
Nyíregyháza
Eladó téglalakás

Nyíregyháza

77.5 M Ft
4 szoba
120 m²
Nyíregyháza
Eladó téglalakás

Nyíregyháza

43.5 M Ft
2 + 2 szoba
79 m²
Nyíregyháza
Eladó téglalakás

Nyíregyháza

36 M Ft
2 szoba
58 m²
Nyíregyháza
Eladó téglalakás

Nyíregyháza

53.7 M Ft
3 szoba
83 m²
Nyíregyháza
Eladó téglalakás

Nyíregyháza

72.5 M Ft
3 + 1 szoba
170 m²
Nyíregyháza
Eladó téglalakás

Nyíregyháza

43.5 M Ft
2 + 1 szoba
79 m²
Nyíregyháza
Eladó téglalakás

Nyíregyháza

53.7 M Ft
2 szoba
83 m²
Nyíregyháza
Eladó téglalakás

Nyíregyháza

43.5 M Ft
2 + 2 szoba
79 m²
Nyíregyháza
Eladó téglalakás

Nyíregyháza

43.5 M Ft
3 + 1 szoba
79 m²
Nyíregyháza
Eladó téglalakás

Nyíregyháza

43.5 M Ft
3 + 1 szoba
79 m²
Nyíregyháza
Eladó téglalakás

Nyíregyháza

36 M Ft
2 szoba
58 m²
Nyíregyháza
Eladó téglalakás

Nyíregyháza

77.5 M Ft
4 szoba
120 m²
Nyíregyháza, Örökösföld, Törzs utca 2
Eladó téglalakás

Nyíregyháza

65.9 M Ft
3 szoba
71 m²
Nyíregyháza
Eladó téglalakás

Nyíregyháza

79.99 M Ft
4 szoba
152 m²
Nyíregyháza, Örökösföld, Törzs utca 2
Eladó téglalakás

Nyíregyháza

74.9 M Ft
3 szoba
75 m²
Nyíregyháza
Eladó téglalakás

Nyíregyháza

36 M Ft
2 szoba
58 m²
Nyíregyháza
Eladó téglalakás

Nyíregyháza

53.7 M Ft
2 szoba
103 m²
Nyíregyháza
Eladó téglalakás

Nyíregyháza

53.7 M Ft
2 szoba
83 m²

Falusi CSOK ingatlanok

Herend
Eladó téglalakás

Herend

59.99 M Ft
3 szoba
69 m²
Csákánydoroszló
Eladó családi ház

Csákánydoroszló

69 M Ft
5 szoba
170 m²
Helesfa
Eladó családi ház

Helesfa

17.999 M Ft
2 szoba
74 m²
Bakonycsernye
Eladó családi ház

Bakonycsernye

48 M Ft
3 szoba
76 m²
Törtel
Eladó családi ház

Törtel

44 M Ft
2 + 1 szoba
81 m²
Verseg
Eladó családi ház

Verseg

54 M Ft
2 szoba
92 m²
Bugac
Eladó családi ház

Bugac

90 M Ft
5 szoba
230 m²
Porva
Eladó családi ház

Porva

74.6 M Ft
3 szoba
115 m²