Astora Márvány8

Eladó téglalakás
Nyíregyháza, 3. emelet

+ 2 kép 1/5
37 800 000 Ft37.8 M Ft 687 273 Ft/m2
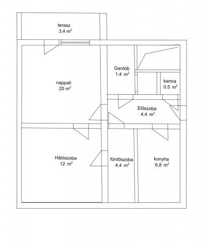
2 szoba
55 m2
3. emelet
építés éve:1970

Részletes adatok

Állapot: Átlagos
Fűtés: Gázkonvektor
Emelet: 3. emelet
Energetikai besorolás: Nem adta meg a hirdető

Az OTP Bank lakáshitel ajánlataFizetett hirdetés

+36 20 965
Az Ön otthona
Szabolcs Ingatlanközvetítő Iroda

Érdekel az OTP Bank kedvezményes lakáshitel ajánlata? *

* A kérdésre „Igen” válasz bejelölése esetén, az „Üzenet küldése” gombra kattintva kijelentem, hogy az OTP Bank Nyrt. Adatkezelési tájékoztatójának tartalmát megismertem és tudomásul vettem.

Eladó téglalakás leírása

AZONNAL KÖLTÖZHETŐ OTTHON VAGY REMEK BEFEKTETÉS A NYÍREGYHÁZI VÍZTORONY KÖZELÉBEN!
 
Nyíregyháza kedvelt részén, az Állomáshoz közel, a Víztorony szomszédságában eladó egy kiváló elrendezésű, 55 nm-es, 2 szobás tégla lakás, mely azonnal birtokba vehető és tehermentes!
 
Főbb Jellemzők:
 

Elhelyezkedés: Nyíregyháza, 4400 (Víztorony/Állomás közeli környék)
Ingatlan típusa: Téglaépítésű társasházi lakás)
Emelet: 3. emelet (a négyemeletes épületben)
Alapterület: 55 nm
Szobák száma: 2 (praktikus elrendezés)
Állapot: Átlagos, de tiszta és rendezett
Fűtés: Gazdaságos gázkonvektoros fűtés
Komfort: Összkomfortos

 

Az Épület és a Lakás Előnyei:
 

Szigetelés: A társasház külsőleg szigetelt, ami hozzájárul az alacsony rezsihez.
Nyílászárók: Korszerű, műanyag nyílászárók kerültek beépítésre mindenhol.
Extrák: Saját erkély és egy praktikus, saját tároló is tartozik az ingatlanhoz.
Burkolatok: A szobákban parketta, a többi helyiségben (konyha, fürdő, mosdó) járólap borítás található.

 

Kiváló Lehetőség:
 
Az ingatlan tehermentes és azonnal költözhető, így ideális választás lehet fiatal pároknak első otthonként, családoknak, vagy akár befektetőknek is, hiszen elhelyezkedése miatt könnyen és gyorsan bérbe adható.
 
Ne maradjon le erről a remek lehetőségről!
 
Amennyiben szeretné megtekinteni, vagy további információra van szüksége, forduljon hozzám bizalommal!Az ingatlan azonosítója: 99632Érdeklődni: +3620/965-8200

Hirdetés feltöltve: 2026. 02. 05. Utoljára módosítva: 2026. 02. 05.

2 szobás téglalakások ára Nyíregyházán

Ebből az összehasonlításból megtudhatod, hogyan viszonyul a lakás ára a környékbeli téglalakások átlagos árához. Ez nem azt jelenti, hogy ennyivel olcsóbb vagy drágább, mint amennyit a lakás ér, hanem hogy ennyivel tér el a környékbeli átlagtól.

Ennek a m² ára
Nyíregyháza m² ár
687 e Ft
884 e Ft 22%
Ennek az ára
Nyíregyháza átlagár
37.8 M Ft m Ft
49.4 m Ft 23%

Az ingatlan elhelyezkedése

Cím: Nyíregyháza, 3. emelet

Eladó téglalakások a környékről

Eladó téglalakás
Eladó téglalakás

Nyíregyháza

43.5 M Ft
3 + 1 szoba
79 m2
Eladó téglalakás
Eladó téglalakás

Nyíregyháza

49.7 M Ft
3 szoba
83 m2
Eladó téglalakás
Eladó téglalakás

Nyíregyháza

36 M Ft
2 szoba
58 m2
Eladó téglalakás
Eladó téglalakás

Nyíregyháza

54.5 M Ft
3 szoba
67 m2
Eladó téglalakás
Eladó téglalakás

Nyíregyháza, Örökösföld, Törzs utca 2

74.9 M Ft
3 szoba
75 m2
Eladó téglalakás
Eladó téglalakás

Nyíregyháza

53.7 M Ft
2 szoba
103 m2
Eladó téglalakás
Eladó téglalakás

Nyíregyháza

53.7 M Ft
2 szoba
83 m2
Eladó téglalakás
Eladó téglalakás

Nyíregyháza, Örökösföld, Törzs utca 2

65.9 M Ft
3 szoba
71 m2
Eladó téglalakás
Eladó téglalakás

Nyíregyháza

43.5 M Ft
3 + 1 szoba
79 m2
Eladó téglalakás
Eladó téglalakás

Nyíregyháza

72.5 M Ft
3 + 1 szoba
170 m2
Eladó téglalakás
Eladó téglalakás

Nyíregyháza

43.5 M Ft
2 + 1 szoba
79 m2
Eladó téglalakás
Eladó téglalakás

Nyíregyháza

43.5 M Ft
3 + 1 szoba
79 m2
Eladó téglalakás
Eladó téglalakás

Nyíregyháza

55.5 M Ft
2 szoba
78 m2
Eladó téglalakás
Eladó téglalakás

Nyíregyháza, Örökösföld, Törzs utca 2

65.9 M Ft
3 szoba
71 m2
Eladó téglalakás
Eladó téglalakás

Nyíregyháza

55.99 M Ft
2 szoba
77 m2
Eladó téglalakás
Eladó téglalakás

Nyíregyháza

53.7 M Ft
2 szoba
83 m2
Eladó téglalakás
Eladó téglalakás

Nyíregyháza

54.5 M Ft
3 szoba
67 m2
Eladó téglalakás
Eladó téglalakás

Nyíregyháza

72.5 M Ft
3 + 1 szoba
170 m2
Eladó téglalakás
Eladó téglalakás

Nyíregyháza, Örökösföld, Törzs utca 2

74.9 M Ft
3 szoba
75 m2
Eladó téglalakás
Eladó téglalakás

Nyíregyháza

43.5 M Ft
2 + 2 szoba
79 m2
Eladó téglalakás
Eladó téglalakás

Nyíregyháza

53.7 M Ft
2 szoba
103 m2
Eladó téglalakás
Eladó téglalakás

Nyíregyháza

43.5 M Ft
2 + 2 szoba
79 m2
Eladó téglalakás
Eladó téglalakás

Nyíregyháza

49.7 M Ft
3 szoba
83 m2
Eladó téglalakás
Eladó téglalakás

Nyíregyháza

53.7 M Ft
2 szoba
83 m2

Falusi CSOK ingatlanok

Eladó családi ház
Eladó családi ház

Magyarszék

48.5 M Ft
3 + 1 szoba
86 m2
Eladó családi ház
Eladó családi ház

Csátalja, Dózsa György utca

36 M Ft
3 szoba
110 m2
Eladó családi ház
Eladó családi ház

Pápakovácsi

79.9 M Ft
4 szoba
210 m2
Eladó családi ház
Eladó családi ház

Adásztevel

8.9 M Ft
2 szoba
63 m2
Eladó családi ház
Eladó családi ház

Recsk

23 M Ft
3 szoba
98 m2
Eladó családi ház
Eladó családi ház

Üllés

35.5 M Ft
3 szoba
99 m2
Eladó családi ház
Eladó családi ház

Borota

16.9 M Ft
2 szoba
75 m2
Eladó családi ház
Eladó családi ház

Gyöngyöshalász

59 M Ft
4 + 3 szoba
214 m2