Astora Olive Club House

Eladó téglalakás
Nyíregyháza, földszint

+ 11 kép 1/14
36 500 000 Ft36.5 M Ft 986 486 Ft/m2
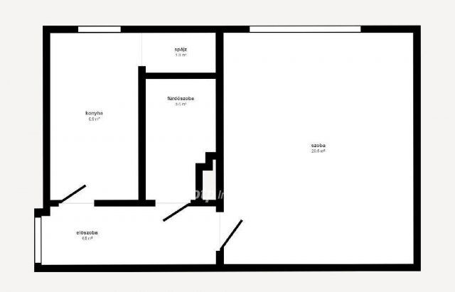
1 szoba
37 m2
földszint
építés éve:1980

Részletes adatok

Állapot: Átlagos
Fűtés: Gázkonvektor
Energetikai besorolás: Nem adta meg a hirdető

Az OTP Bank lakáshitel ajánlataFizetett hirdetés

+36 20 940
Lipcseiné Kozák Judit
OTPIP Nyíregyháza Hunyadi u.

Érdekel az OTP Bank kedvezményes lakáshitel ajánlata? *

* A kérdésre „Igen” válasz bejelölése esetén, az „Üzenet küldése” gombra kattintva kijelentem, hogy az OTP Bank Nyrt. Adatkezelési tájékoztatójának tartalmát megismertem és tudomásul vettem.

Eladó téglalakás leírása

Nyíregyháza belvárosában, a Bessenyei tér kulturális negyedében eladó egy földszinti, 1 szobás, 37 nm-es tégla lakás.

Az ingatlan elhelyezkedése kiváló: a belváros szívében található, így minden fontos közintézmény, boltok, iskola, óvoda és a tömegközlekedés néhány perc sétával elérhető. A ház előtt szabadidőpark biztosít lehetőséget sportolásra és futásra.

A lakás fűtéséről gázkonvektor gondoskodik, elrendezése időseknek, egyedülállóknak és egyetemistáknak egyaránt ideális. Az ingatlan tehermentes és azonnal költözhető.

Kivételes elhelyezkedésének köszönhetően befektetésnek is remek választás.

OTP Banki hátterünknek köszönhetően finanszírozási igényekben (pl. Otthon Start Hitelprogram, Babaváró, Falusi CSOK, CSOK Plusz, Lakáshitel, Személyi kölcsön stb.), illetve biztosítások tekintetében is díjmentesen, soron kívüli ügyintézéssel segítem ügyfeleim! Referenciaszám: M310747

Hirdetés feltöltve: 2025. 11. 25. Utoljára módosítva: 2025. 12. 15.

1 szobás téglalakások ára Nyíregyházán

Ebből az összehasonlításból megtudhatod, hogyan viszonyul a lakás ára a környékbeli téglalakások átlagos árához. Ez nem azt jelenti, hogy ennyivel olcsóbb vagy drágább, mint amennyit a lakás ér, hanem hogy ennyivel tér el a környékbeli átlagtól.

Ennek a m² ára
Nyíregyháza m² ár
986 e Ft
1006 e Ft 2%
Ennek az ára
Nyíregyháza átlagár
36.5 M Ft m Ft
40 m Ft 9%

Az ingatlan elhelyezkedése

Cím: Nyíregyháza, földszint

Eladó téglalakások a környékről

Eladó téglalakás
Eladó téglalakás

Nyíregyháza

53.7 M Ft
2 szoba
103 m2
Eladó téglalakás
Eladó téglalakás

Nyíregyháza

77.5 M Ft
4 szoba
120 m2
Eladó téglalakás
Eladó téglalakás

Nyíregyháza

39.2 M Ft
2 + 2 szoba
79 m2
Eladó téglalakás
Eladó téglalakás

Nyíregyháza

54.5 M Ft
2 + 1 szoba
67 m2
Eladó téglalakás
Eladó téglalakás

Nyíregyháza

39.2 M Ft
2 + 1 szoba
79 m2
Eladó téglalakás
Eladó téglalakás

Nyíregyháza

39.2 M Ft
3 + 1 szoba
79 m2
Eladó téglalakás
Eladó téglalakás

Nyíregyháza

54.5 M Ft
2 + 1 szoba
67 m2
Eladó téglalakás
Eladó téglalakás

Nyíregyháza

53.7 M Ft
2 szoba
83 m2
Eladó téglalakás
Eladó téglalakás

Nyíregyháza

53.7 M Ft
2 szoba
83 m2
Eladó téglalakás
Eladó téglalakás

Nyíregyháza, Örökösföld, Törzs utca 2

65.9 M Ft
3 szoba
71 m2
Eladó téglalakás
Eladó téglalakás

Nyíregyháza

72.5 M Ft
3 + 1 szoba
170 m2
Eladó téglalakás
Eladó téglalakás

Nyíregyháza

55.5 M Ft
2 szoba
78 m2
Eladó téglalakás
Eladó téglalakás

Nyíregyháza

104.9 M Ft
5 szoba
209 m2
Eladó téglalakás
Eladó téglalakás

Nyíregyháza

37.5 M Ft
1 szoba
44 m2
Eladó téglalakás
Eladó téglalakás

Nyíregyháza

53.7 M Ft
2 szoba
103 m2
Eladó téglalakás
Eladó téglalakás

Nyíregyháza, Örökösföld, Törzs utca 2

74.9 M Ft
3 szoba
75 m2
Eladó téglalakás
Eladó téglalakás

Nyíregyháza

39.2 M Ft
2 + 2 szoba
79 m2
Eladó téglalakás
Eladó téglalakás

Nyíregyháza

62.9 M Ft
2 + 2 szoba
130 m2
Eladó téglalakás
Eladó téglalakás

Nyíregyháza

37.5 M Ft
1 szoba
44 m2
Eladó téglalakás
Eladó téglalakás

Nyíregyháza, Örökösföld, Törzs utca 2

74.9 M Ft
3 szoba
75 m2
Eladó téglalakás
Eladó téglalakás

Nyíregyháza

54.5 M Ft
3 szoba
67 m2
Eladó téglalakás
Eladó téglalakás

Nyíregyháza

53.7 M Ft
2 szoba
83 m2
Eladó téglalakás
Eladó téglalakás

Nyíregyháza

46.5 M Ft
2 szoba
102 m2
Eladó téglalakás
Eladó téglalakás

Nyíregyháza

39.2 M Ft
3 + 1 szoba
79 m2

Falusi CSOK ingatlanok

Eladó családi ház
Eladó családi ház

Iklad

70 M Ft
5 szoba
150 m2
Eladó családi ház
Eladó családi ház

Tésenfa, Kossuth utca 23/a

5.55 M Ft
1 + 1 szoba
109 m2
Eladó családi ház
Eladó családi ház

Ölbő

15 M Ft
3 szoba
103 m2
Eladó családi ház
Eladó családi ház

Segesd

14.3 M Ft
3 szoba
100 m2
Eladó családi ház
Eladó családi ház

Szil

25 M Ft
2 szoba
90 m2
Eladó családi ház
Eladó családi ház

Tápiószőlős

69 M Ft
3 szoba
77 m2
Eladó családi ház
Eladó családi ház

Enese

78.9 M Ft
4 szoba
90 m2
Eladó családi ház
Eladó családi ház

Hernádnémeti

18.9 M Ft
2 szoba
62 m2