NapForrás 20 - Buda

Eladó téglalakás
Nyíregyháza, 2. emelet

+ 11 kép 1/14
43 000 000 Ft43 M Ft 781 818 Ft/m2
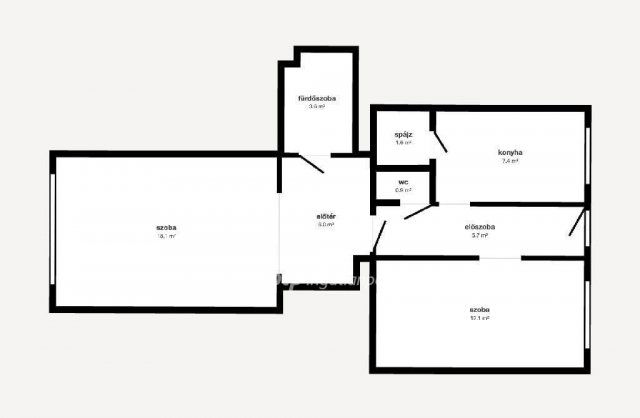
2 szoba
55 m2
2. emelet
építés éve:1967

Részletes adatok

Állapot: Felújítandó
Fűtés: Távfűtés
Energetikai besorolás: Nem adta meg a hirdető

Az OTP Bank lakáshitel ajánlataFizetett hirdetés

+36 20 510
Takács Jánosné
referens

Érdekel az OTP Bank kedvezményes lakáshitel ajánlata? *

* A kérdésre „Igen” válasz bejelölése esetén, az „Üzenet küldése” gombra kattintva kijelentem, hogy az OTP Bank Nyrt. Adatkezelési tájékoztatójának tartalmát megismertem és tudomásul vettem.

Eladó téglalakás leírása

Nyíregyháza szívében eladó egy remek lehetőség!
Eladóvá vált egy 55,4 nm-es, 2. emeleti, két szobás lakás, amely a parkra néz, így nyugodt, zöld kilátásban gyönyörködhet minden nap. Az épület tégla szerkezetű, kívül átlagos állapotú, belül felújítandó, így ideális választás azoknak, akik saját ízlésük szerint szeretnék kialakítani otthonukat. A lakás elrendezése praktikus és jól alakítható, a nagy ablakoknak köszönhetően világos és barátságos tér várja új tulajdonosát. Kiváló elhelyezkedésének köszönhetően minden karnyújtásnyira van: üzletek, iskola, buszmegálló, városi élet és mégis csendes, parkos környezet. Tökéletes lehetőség befektetőknek vagy első lakást keresőknek, akik értékelik a városi élet kényelmét és a természet közelségét. Itt most a fantáziád az érték! Ne hagyd ki ezt a ritka alkalmat Nyíregyháza legkedveltebb részén ? érdeklődj még ma, mielőtt más lecsap rá!
OTP Banki hátterünknek köszönhetően finanszírozási igényekben (pl. Otthon Start Hitelprogram, Babaváró, Falusi CSOK, CSOK Plusz, Lakáshitel, Személyi kölcsön stb.), illetve biztosítások tekintetében is díjmentesen, soron kívüli ügyintézéssel segítem ügyfeleim!
Referenciaszám: M315339

Referencia szám: M315339

Hirdetés feltöltve: 2025. 10. 31. Utoljára módosítva: 2025. 11. 13.

2 szobás téglalakások ára Nyíregyházán

Ebből az összehasonlításból megtudhatod, hogyan viszonyul a lakás ára a környékbeli téglalakások átlagos árához. Ez nem azt jelenti, hogy ennyivel olcsóbb vagy drágább, mint amennyit a lakás ér, hanem hogy ennyivel tér el a környékbeli átlagtól.

Ennek a m² ára
Nyíregyháza m² ár
782 e Ft
871 e Ft 10%
Ennek az ára
Nyíregyháza átlagár
43 M Ft m Ft
49.2 m Ft 13%

Az ingatlan elhelyezkedése

Cím: Nyíregyháza, 2. emelet

Eladó téglalakások a környékről

Eladó téglalakás
Eladó téglalakás

Nyíregyháza

53.7 M Ft
2 szoba
83 m2
Eladó téglalakás
Eladó téglalakás

Nyíregyháza

39.2 M Ft
2 + 2 szoba
79 m2
Eladó téglalakás
Eladó téglalakás

Nyíregyháza

46.5 M Ft
2 szoba
102 m2
Eladó téglalakás
Eladó téglalakás

Nyíregyháza

99.9 M Ft
4 szoba
128 m2
Eladó téglalakás
Eladó téglalakás

Nyíregyháza

53.7 M Ft
2 szoba
103 m2
Eladó téglalakás
Eladó téglalakás

Nyíregyháza

39.2 M Ft
3 + 1 szoba
79 m2
Eladó téglalakás
Eladó téglalakás

Nyíregyháza

49.7 M Ft
3 szoba
83 m2
Eladó téglalakás
Eladó téglalakás

Nyíregyháza, Örökösföld, Törzs utca 2

62.9 M Ft
3 szoba
71 m2
Eladó téglalakás
Eladó téglalakás

Nyíregyháza

53.7 M Ft
2 szoba
83 m2
Eladó téglalakás
Eladó téglalakás

Nyíregyháza

54.5 M Ft
2 + 1 szoba
67 m2
Eladó téglalakás
Eladó téglalakás

Nyíregyháza

72.5 M Ft
3 + 1 szoba
170 m2
Eladó téglalakás
Eladó téglalakás

Nyíregyháza

34.99 M Ft
3 szoba
70 m2
Eladó téglalakás
Eladó téglalakás

Nyíregyháza

34.99 M Ft
3 szoba
70 m2
Eladó téglalakás
Eladó téglalakás

Nyíregyháza

53.7 M Ft
2 szoba
103 m2
Eladó téglalakás
Eladó téglalakás

Nyíregyháza

46.5 M Ft
2 szoba
102 m2
Eladó téglalakás
Eladó téglalakás

Nyíregyháza, Örökösföld, Törzs utca 2

62.9 M Ft
3 szoba
71 m2
Eladó téglalakás
Eladó téglalakás

Nyíregyháza

54.5 M Ft
2 + 1 szoba
67 m2
Eladó téglalakás
Eladó téglalakás

Nyíregyháza

39.2 M Ft
3 + 1 szoba
79 m2
Eladó téglalakás
Eladó téglalakás

Kisvárda

54.2 M Ft
4 szoba
74 m2
Eladó téglalakás
Eladó téglalakás

Nyíregyháza

39.2 M Ft
2 + 2 szoba
79 m2
Eladó téglalakás
Eladó téglalakás

Nyíregyháza, Örökösföld, Törzs utca 2

71.9 M Ft
3 szoba
75 m2
Eladó téglalakás
Eladó téglalakás

Nyíregyháza

99.9 M Ft
4 szoba
128 m2
Eladó téglalakás
Eladó téglalakás

Nyíregyháza

53.7 M Ft
2 szoba
103 m2
Eladó téglalakás
Eladó téglalakás

Nyíregyháza

39.2 M Ft
3 + 1 szoba
79 m2

Falusi CSOK ingatlanok

Eladó családi ház
Eladó családi ház

Tésenfa, Kossuth utca 23/a

5.55 M Ft
1 + 1 szoba
109 m2
Eladó családi ház
Eladó családi ház

Ónod, Kossuth út 10

27.499 M Ft
3 + 2 szoba
120 m2
Eladó családi ház
Eladó családi ház

Ceglédbercel

64.9 M Ft
3 szoba
87 m2
Eladó családi ház
Eladó családi ház

Karád

44.7 M Ft
3 szoba
100 m2
Eladó családi ház
Eladó családi ház

Szil

25 M Ft
2 szoba
90 m2
Eladó családi ház
Eladó családi ház

Pölöskefő

19.9 M Ft
2 szoba
96 m2
Eladó családi ház
Eladó családi ház

Sümegcsehi

119 M Ft
5 szoba
237 m2
Eladó családi ház
Eladó családi ház

Homokmégy

15.9 M Ft
2 + 1 szoba
78 m2