Metrodom

Eladó téglalakás
Mosonszolnok, földszint

85 000 000 Ft85 M Ft 809 524 Ft/m2
4 szoba
105 m²
földszint
építés éve:2024

Részletes adatok

Fűtés: Egyéb
Emelet: földszint
Energetikai besorolás: Nem adta meg a hirdető

Az OTP Bank lakáshitel ajánlataFizetett hirdetés

+36 70 372
Dobos András
referens

Érdekel az OTP Bank kedvezményes lakáshitel ajánlata? *

* A kérdésre „Igen” válasz bejelölése esetén, az „Üzenet küldése” gombra kattintva kijelentem, hogy az OTP Bank Nyrt. Adatkezelési tájékoztatójának tartalmát megismertem és tudomásul vettem.

Eladó téglalakás leírása

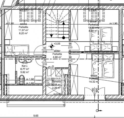
Győr-Moson-Sopron vármegyében Mosonszolnokon lakás eladó. A beruházó magas kivitelezésű, minőségi építőanyagok felhasználásával kezdi meg a társasház építését, melynek a földszintjén saját kertkapcsolattal, terasszal, garázzsal rendelkező - belső kétszintes - ingatlant kínálom eladásra. Az ár fűtéskész állapotra vonatkozik, mely tartalmazza: Gázkazános vagy hőszivattyús padlófűtés, víz,-csatorna és elektromos alapszerelés nyomáspróbával, belső falak anyagában simított vakolattal, egyenes gipszkarton álmennyezet, 2 db klíma csövezés 2 m csőhosszig. Terasz és belépő kaviccsal vagy nyersbeton, járda murvázva. Hűtő-fűtő klíma br 400.000 Ft/ db áron rendelhető. Az ingatlan előtt felszíni parkoló kerül kialakításra. Kulcsrakész befejezés is lehetséges egyéni igényekkel egyeztetve.
Mosonszolnok falu a Fertő tó és a Duna között az M1-es autópályától 6 km-re a Mosoni-síkságon a Szigetköz és a Fertő-Hanság-medence találkozásánál fekszik. Mosonmagyaróvár 10, Győr 45 km távolságra található. A településen magas szintű az infrastrukturális ellátottság, hiszen megtalálható, bölcsőde, óvoda, általános iskola, élelmiszer bolt, háziorvosi szolgálat, községháza, vasútállomás is. Az építkezés helyszínét, a tervdokumentációkat a helyszínen illetve irodánkban is prezentálom ügyfeleim részére. Kérdés esetén és további információval kapcsolatosan keressen bizalommal elérhetőségeimen! OTTHON START HITELPROGRAM!

85000000 Ft
Tekintse meg személyesen, várom hívását!
Dobos András +36703724717

Referencia szám: M281321

Hirdetés feltöltve: 2026. 04. 03.

Az ingatlan elhelyezkedése

Cím: Mosonszolnok, földszint

Eladó ingatlanok a környékről

Győrújbarát
Eladó mezogazdasagi ingatlan

Győrújbarát

12 M Ft
1 szoba
0 m²
Cirák
Eladó ipari ingatlan

Cirák

41.9 M Ft
3 szoba
570 m²
Csáfordjánosfa
Eladó családi ház

Csáfordjánosfa

25 M Ft
3 szoba
135 m²
Cirák
Eladó üzlethelyiség

Cirák

41.9 M Ft
3 szoba
570 m²
Győr
Eladó téglalakás

Győr

199.99 M Ft
3 + 1 szoba
160 m²
Mosonszolnok
Eladó téglalakás

Mosonszolnok

85 M Ft
4 szoba
105 m²
Sopron
Eladó téglalakás

Sopron

66 M Ft
2 szoba
53 m²
Sopron
Eladó téglalakás

Sopron

73.9 M Ft
2 szoba
49 m²
Győr
Eladó téglalakás

Győr

38.99 M Ft
2 szoba
46 m²
Győr
Eladó téglalakás

Győr

38.99 M Ft
2 szoba
46 m²
Mosonszolnok
Eladó téglalakás

Mosonszolnok

85 M Ft
4 szoba
104 m²
Győr
Eladó családi ház

Győr

101.9 M Ft
3 szoba
123 m²
Cirák
Eladó ipari ingatlan

Cirák

41.9 M Ft
3 szoba
570 m²
Mosonmagyaróvár
Eladó téglalakás

Mosonmagyaróvár

60.5 M Ft
2 szoba
38 m²
Győr
Eladó téglalakás

Győr

38.99 M Ft
2 szoba
43 m²
Bősárkány
Eladó családi ház

Bősárkány

29.9 M Ft
2 + 1 szoba
80 m²
Győr
Eladó téglalakás

Győr

48.99 M Ft
3 szoba
57 m²
Győr
Eladó téglalakás

Győr

199.99 M Ft
3 + 1 szoba
160 m²
Nagycenk
Eladó téglalakás

Nagycenk

59.9 M Ft
1 + 2 szoba
54 m²
Győr, Alcedonia Lakópark
Eladó garázs

Győr

11 M Ft
18 m²
18 m²
Sopron
Eladó iroda

Sopron

32.9 M Ft
35 m²
Győr
Eladó téglalakás

Győr

95 M Ft
4 szoba
94 m²
Cirák
Eladó üzlethelyiség

Cirák

41.9 M Ft
3 szoba
570 m²
Bágyogszovát
Eladó családi ház

Bágyogszovát

19.9 M Ft
2 szoba
50 m²

Falusi CSOK ingatlanok

Pánd, Toldi Miklós utca
Eladó családi ház

Pánd

22.9 M Ft
2 szoba
60 m²
Nagykarácsony
Eladó családi ház

Nagykarácsony

34.9 M Ft
3 szoba
112 m²
Gyöngyössolymos
Eladó családi ház

Gyöngyössolymos

57.99 M Ft
4 szoba
160 m²
Onga
Eladó családi ház

Onga

52.9 M Ft
5 szoba
110 m²
Magyarpolány
Eladó családi ház

Magyarpolány

90 M Ft
2 szoba
70 m²
Tápióság
Eladó családi ház

Tápióság

59.9 M Ft
4 szoba
99 m²
Tápióbicske, Nagykátai út
Eladó családi ház

Tápióbicske

14.9 M Ft
3 szoba
70 m²
Lengyeltóti
Eladó családi ház

Lengyeltóti

59.9 M Ft
5 szoba
205 m²