NapForrás 20 - Buda

Eladó téglalakás
Miskolc, 3. emelet

+ 14 kép 1/17
47 900 000 Ft47.9 M Ft 939 216 Ft/m2
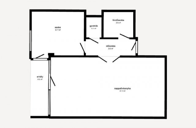
1 + 1 szoba
51 m²
3. emelet
építés éve:2007

Részletes adatok

Fűtés: Házközponti
Emelet: 3. emelet
Extrák: Lift
Energetikai besorolás: Nem adta meg a hirdető

Az OTP Bank lakáshitel ajánlataFizetett hirdetés

+36 70 201
Kégl Zsolt
OTP Ingatlanpont Miskolc Szemere

Érdekel az OTP Bank kedvezményes lakáshitel ajánlata? *

* A kérdésre „Igen” válasz bejelölése esetén, az „Üzenet küldése” gombra kattintva kijelentem, hogy az OTP Bank Nyrt. Adatkezelési tájékoztatójának tartalmát megismertem és tudomásul vettem.

Eladó téglalakás leírása

Befektetők figyelem!!! Kivételes lehetőség Miskolc belvárosában a Macropolisban

Eladásra kínálunk Miskolc abszolút belvárosában, a Macropolis épületében egy újszerű 51 nm-es 1,5 szobás, amerikai konyhás nappalival rendelkező panorámás lakást. A fűtés házközponti rendszerrel működik, amely az épület jó energetikai adottságainak köszönhetően kedvező költségű. A meleg víz szintén központi ellátásból érkezik, egyedi mérőórákkal. Az épület biztonságáról kamerarendszer és éjjel-nappali portaszolgálat gondoskodik, a lépcsőház rendezett és modern, a közlekedést lift segíti.

Elhelyezkedése kiemelkedő: a tömegközlekedés, üzletek, iskolák és különféle szolgáltatások mind pár perc sétára találhatók Az ingatlan teljesen bútorozott, azonnal költözhető, így befektetési célra is kiváló választás. Kérem tekintse meg virtuális sétámat is.

Amennyiben megfizethető áron szeretne Miskolc egyik legkedveltebb belvárosi lokációjában élni, ne is keressen tovább. Hívjon, és nézzük meg együtt, ebbe az ingatlanba garantáltan bele fog szeretni. Várom hívását hétvégén is! OTP Banki hátterünknek köszönhetően finanszírozási igényekben (pl. Otthon Start Hitelprogram , Babaváró, Falusi CSOK, CSOK Plusz, Lakáshitel, Személyi kölcsön stb.), illetve biztosítások tekintetében is díjmentesen, soron kívüli ügyintézéssel segítem ügyfeleim! Igény esetén az adásvételhez ügyvédet is tudunk biztosítani. Hívása során hivatkozzon az M326102-es referenciaszámra.

Hirdetés feltöltve: 2026. 04. 21. Utoljára módosítva: 2026. 04. 21.

2 szobás téglalakások ára Miskolcon

Ebből az összehasonlításból megtudhatod, hogyan viszonyul a lakás ára a környékbeli téglalakások átlagos árához. Ez nem azt jelenti, hogy ennyivel olcsóbb vagy drágább, mint amennyit a lakás ér, hanem hogy ennyivel tér el a környékbeli átlagtól.

Ennek a m² ára
Miskolc m² ár
939 e Ft
755 e Ft -24%
Ennek az ára
Miskolc átlagár
47.9 M Ft m Ft
42.3 m Ft -13%

Az ingatlan elhelyezkedése

Cím: Miskolc, 3. emelet

Eladó téglalakások a környékről

Sárospatak, Tompa Mihály utca
Eladó téglalakás

Sárospatak

23.9 M Ft
2 szoba
62 m²
Miskolc
Eladó téglalakás

Miskolc

51.9 M Ft
3 szoba
82 m²
Miskolc
Eladó téglalakás

Miskolc

65.34 M Ft
1 + 1 szoba
40 m²
Miskolc, Belváros, Kazinczy Ferenc utca
Eladó téglalakás

Miskolc

74.9 M Ft
3 szoba
98 m²
Miskolc
Eladó téglalakás

Miskolc

65.34 M Ft
3 szoba
60 m²
Miskolc
Eladó téglalakás

Miskolc

51.9 M Ft
3 szoba
82 m²
Miskolc
Eladó téglalakás

Miskolc

58.24 M Ft
2 szoba
63 m²
Putnok
Eladó téglalakás

Putnok

13.6 M Ft
3 szoba
123 m²
Miskolc
Eladó téglalakás

Miskolc

59.94 M Ft
2 szoba
51 m²
Miskolc
Eladó téglalakás

Miskolc

9.99 M Ft
2 szoba
59 m²
Miskolc
Eladó téglalakás

Miskolc

69.7 M Ft
3 szoba
60 m²
Miskolc
Eladó téglalakás

Miskolc

65.34 M Ft
3 szoba
60 m²
Miskolc
Eladó téglalakás

Miskolc

163.35 M Ft
4 szoba
110 m²
Miskolc
Eladó téglalakás

Miskolc

65.34 M Ft
1 + 1 szoba
40 m²
Miskolc
Eladó téglalakás

Miskolc

68.99 M Ft
3 szoba
76 m²
Miskolc
Eladó téglalakás

Miskolc

59.99 M Ft
4 szoba
119 m²
Miskolc
Eladó téglalakás

Miskolc

35.9 M Ft
1 + 1 szoba
34 m²
Miskolc
Eladó téglalakás

Miskolc

75.982 M Ft
3 szoba
77 m²
Miskolc, Új Diósgyőr, Torontáli utca
Eladó téglalakás

Miskolc

19.99 M Ft
2 szoba
49 m²
Miskolc
Eladó téglalakás

Miskolc

34.9 M Ft
1 + 1 szoba
49 m²
Ózd
Eladó téglalakás

Ózd

5.9 M Ft
2 szoba
47 m²
Miskolc, Keleti városrész, József Attila
Eladó téglalakás

Miskolc

27.9 M Ft
2 szoba
55 m²
Miskolc, Új Diósgyőr, Torontáli utca
Eladó téglalakás

Miskolc

19.99 M Ft
2 szoba
49 m²
Tiszaújváros, Verebély utca
Eladó téglalakás

Tiszaújváros

23.9 M Ft
1 + 1 szoba
39 m²

Falusi CSOK ingatlanok

Badacsonytomaj
Eladó családi ház

Badacsonytomaj

285 M Ft
4 szoba
230 m²
Hosszúhetény, Petőfi Sándor utca 10
Eladó családi ház

Hosszúhetény

20.65 M Ft
4 + 2 szoba
133 m²
Baks
Eladó családi ház

Baks

18.9 M Ft
3 szoba
118 m²
Tápiógyörgye
Eladó családi ház

Tápiógyörgye

8.5 M Ft
2 szoba
63 m²
Szepetnek
Eladó családi ház

Szepetnek

16.5 M Ft
4 szoba
75 m²
Kislippó
Eladó családi ház

Kislippó

17.99 M Ft
3 szoba
100 m²
Zalalövő
Eladó családi ház

Zalalövő

47 M Ft
4 + 1 szoba
117 m²
Törtel
Eladó családi ház

Törtel

42 M Ft
3 szoba
98 m²