River Life

Eladó téglalakás
Miskolc, 2. emelet

+ 9 kép 1/12
67 700 000 Ft67.7 M Ft 697 938 Ft/m2
4 szoba
97 m²
2. emelet
építés éve:1995

Részletes adatok

Fűtés: Gázkazán
Emelet: 2. emelet
Energetikai besorolás: Nem adta meg a hirdető

Az OTP Bank lakáshitel ajánlataFizetett hirdetés

+36 30 590
Drótos Bence
OTP Ingatlanpont Miskolc Szemere

Érdekel az OTP Bank kedvezményes lakáshitel ajánlata? *

* A kérdésre „Igen” válasz bejelölése esetén, az „Üzenet küldése” gombra kattintva kijelentem, hogy az OTP Bank Nyrt. Adatkezelési tájékoztatójának tartalmát megismertem és tudomásul vettem.

Eladó téglalakás leírása

Kivételes lehetőség Miskolc belvárosában - Ritkaságszámba menő lakás eladó udvari beállóval!

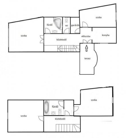
Kedvező áron eladó egy tulajdoni lapon 97nm- es, de a valóságban bruttó 110 m2-es, két szintes, 4 szobás, 2 fürdőszobás, klimatizált lakás Miskolc szívében, egyik igényes, szigetelt, téglaépítésű házában. Központi elhelyezkedése ellenére nagyon csendes lakás. Az ingatlan nem polgári, hanem újabb építésű, így korszerű elrendezéssel és kiváló állapottal rendelkezik.

A lakásban új konyhabútor, központi fűtés, saját pince, valamint egy ritka extrának számító, udvari gépkocsibeálló is a leendő tulajdonos kényelmét szolgálja zárható elektromos kapuval.

Elhelyezkedése páratlan: Miskolc legjobb részén, központi, mégis csendes környezetben található, ahol minden fontos szolgáltatás, bolt, iskola, hivatal, tömegközlekedés pár perc sétával elérhető.

Kiváló befektetési lehetőség is, hiszen a lokáció miatt a lakás könnyen és jól kiadható, ráadásul ezen a környéken rendkívül ritka az eladó ingatlan ? ez tovább növeli az értékét és megtérülését.

Az ingatlan hitelképes, és CSOK (3 vagy több gyermek esetén) is igénybe vehető.

Ne hagyja ki ezt az egyedülálló lehetőséget - ilyen lakás ritkán kerül a piacra!

Hirdetés feltöltve: 2026. 04. 08. Utoljára módosítva: 2026. 05. 10.

4 szobás téglalakások ára Miskolcon

Ebből az összehasonlításból megtudhatod, hogyan viszonyul a lakás ára a környékbeli téglalakások átlagos árához. Ez nem azt jelenti, hogy ennyivel olcsóbb vagy drágább, mint amennyit a lakás ér, hanem hogy ennyivel tér el a környékbeli átlagtól.

Ennek a m² ára
Miskolc m² ár
698 e Ft
696 e Ft 0%
Ennek az ára
Miskolc átlagár
67.7 M Ft m Ft
81.6 m Ft 17%

Az ingatlan elhelyezkedése

Cím: Miskolc, 2. emelet

Eladó téglalakások a környékről

Miskolc
Eladó téglalakás

Miskolc

60.639 M Ft
2 szoba
51 m²
Miskolc
Eladó téglalakás

Miskolc

60.639 M Ft
2 szoba
51 m²
Miskolc
Eladó téglalakás

Miskolc

73.718 M Ft
3 szoba
60 m²
Miskolc
Eladó téglalakás

Miskolc

79.9 M Ft
4 szoba
90 m²
Miskolc
Eladó téglalakás

Miskolc

178 M Ft
4 szoba
110 m²
Miskolc, Bábonyibérc
Eladó téglalakás

Miskolc

35.9 M Ft
1 + 1 szoba
34 m²
Miskolc
Eladó téglalakás

Miskolc

51.9 M Ft
3 szoba
82 m²
Miskolc, Bábonyibérc
Eladó téglalakás

Miskolc

35.9 M Ft
1 + 1 szoba
34 m²
Miskolc
Eladó téglalakás

Miskolc

68.99 M Ft
3 szoba
76 m²
Miskolc
Eladó téglalakás

Miskolc

75.982 M Ft
3 szoba
77 m²
Miskolc, Új Diósgyőr, Torontáli utca
Eladó téglalakás

Miskolc

19.99 M Ft
2 szoba
49 m²
Sátoraljaújhely
Eladó téglalakás

Sátoraljaújhely

17 M Ft
2 szoba
52 m²
Miskolc
Eladó téglalakás

Miskolc

75.982 M Ft
3 szoba
77 m²
Miskolc
Eladó téglalakás

Miskolc

59.45 M Ft
2 szoba
40 m²
Miskolc
Eladó téglalakás

Miskolc

58.5 M Ft
4 szoba
119 m²
Miskolc
Eladó téglalakás

Miskolc

51.9 M Ft
3 szoba
82 m²
Miskolc, Új Diósgyőr, Torontáli utca
Eladó téglalakás

Miskolc

19.99 M Ft
2 szoba
49 m²
Miskolc
Eladó téglalakás

Miskolc

51.9 M Ft
3 szoba
82 m²
Miskolc
Eladó téglalakás

Miskolc

32.5 M Ft
1 + 1 szoba
49 m²
Miskolc
Eladó téglalakás

Miskolc

32.5 M Ft
1 + 1 szoba
49 m²
Sárospatak, Tompa Mihály utca
Eladó téglalakás

Sárospatak

23.9 M Ft
2 szoba
62 m²
Miskolc
Eladó téglalakás

Miskolc

69.7 M Ft
3 szoba
60 m²
Miskolc
Eladó téglalakás

Miskolc

54.9 M Ft
3 szoba
122 m²
Miskolc
Eladó téglalakás

Miskolc

59.94 M Ft
2 szoba
51 m²

Falusi CSOK ingatlanok

Sásd
Eladó családi ház

Sásd

35.9 M Ft
4 + 1 szoba
71 m²
Újlengyel
Eladó családi ház

Újlengyel

77.9 M Ft
4 szoba
0 m²
Szigliget, Ciframajor
Eladó sorház

Szigliget

44.9 M Ft
2 szoba
50 m²
Tihany
Eladó családi ház

Tihany

590 M Ft
8 szoba
340 m²
Monyoród
Eladó családi ház

Monyoród

29.9 M Ft
117 + 3 szoba
117 m²
Hévízgyörk
Eladó családi ház

Hévízgyörk

94.8 M Ft
8 szoba
254 m²
Táborfalva
Eladó családi ház

Táborfalva

34.9 M Ft
3 szoba
49 m²
Hegyeshalom, Margaréta utca 12
Eladó téglalakás

Hegyeshalom

35.92 M Ft
1 szoba
31 m²