City Pearl

Eladó téglalakás
Miskolc, 3. emelet

+ 12 kép 1/15
34 900 000 Ft34.9 M Ft 491 549 Ft/m2
3 szoba
71 m²
3. emelet
építés éve:1964

Részletes adatok

Fűtés: Gázkonvektor
Emelet: 3. emelet
Közmű: Gáz, Villany, Csatorna
Energetikai besorolás: Nem adta meg a hirdető

Az OTP Bank lakáshitel ajánlataFizetett hirdetés

+36 70 465
Damjanovics Rita
referens

Érdekel az OTP Bank kedvezményes lakáshitel ajánlata? *

* A kérdésre „Igen” válasz bejelölése esetén, az „Üzenet küldése” gombra kattintva kijelentem, hogy az OTP Bank Nyrt. Adatkezelési tájékoztatójának tartalmát megismertem és tudomásul vettem.

Eladó téglalakás leírása

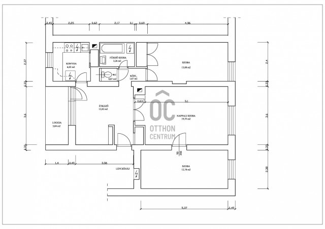
A Miskolc Dél-Kilián városrészben található ingatlan 71 nm-es, három szobával+étkezővel rendelkezik, így ideális több gyerekes család számára.

Az ingatlan jellemzői:
-négy emeletes tégla társasház
-71nm (nappali+2 hálószoba+étkező+fürdőszoba,külön mosdó,konyha kamrával+erkély)
-világos, tágas terek
-parkettás szobák
-műanyag nyílászárók
-gázkonvektoros fűtés
-jó állapotú, beépített konyha
-kis kamra
-nagy méretű BALKON
-csodás panoráma a Bükk felé
-kellemes lakóközösség
-színezett épület
-tetőszigetelés készen van
-játszóterek, parkok a közelben
-parkolás az épület előtt ingyenes
-kiváló közlekedés

A lakás nagyon csendes környezetben található, megközelítése egyszerű, busz- és villamosmegálló a közelben van. Ajánlom fiataloknak és gyerekes családoknak egyaránt. Ritkán jelenik meg ilyen elosztású lakás az ingatlanpiacon, így ne késlekedjen, nézze meg mielőbb! A megtekintéshez előre egyeztetett időpont szükséges.

Az az ingatlan a felezőcsomag portfóliónk része,

Ez az ingatlan a "Felező csomag" megbízási portfólióhoz tartozik. Részletek az Otthon Centrum weboldalán.

Hirdetés feltöltve: 2026. 04. 05. Utoljára módosítva: 2026. 04. 05.

3 szobás téglalakások ára Miskolcon

Ebből az összehasonlításból megtudhatod, hogyan viszonyul a lakás ára a környékbeli téglalakások átlagos árához. Ez nem azt jelenti, hogy ennyivel olcsóbb vagy drágább, mint amennyit a lakás ér, hanem hogy ennyivel tér el a környékbeli átlagtól.

Ennek a m² ára
Miskolc m² ár
492 e Ft
825 e Ft 40%
Ennek az ára
Miskolc átlagár
34.9 M Ft m Ft
66.8 m Ft 48%

Az ingatlan elhelyezkedése

Cím: Miskolc, 3. emelet

Eladó téglalakások a környékről

Miskolc
Eladó téglalakás

Miskolc

65.34 M Ft
3 szoba
60 m²
Miskolc
Eladó téglalakás

Miskolc

41.657 M Ft
2 szoba
51 m²
Miskolc
Eladó téglalakás

Miskolc

35.9 M Ft
1 + 1 szoba
34 m²
Miskolc, Új Diósgyőr, Torontáli utca
Eladó téglalakás

Miskolc

19.99 M Ft
2 szoba
49 m²
Miskolc
Eladó téglalakás

Miskolc

38.657 M Ft
2 szoba
43 m²
Miskolc, Belváros, Kazinczy Ferenc utca
Eladó téglalakás

Miskolc

74.9 M Ft
3 szoba
98 m²
Ózd
Eladó téglalakás

Ózd

4.99 M Ft
2 szoba
55 m²
Miskolc
Eladó téglalakás

Miskolc

59.99 M Ft
4 szoba
119 m²
Miskolc
Eladó téglalakás

Miskolc

41.657 M Ft
2 szoba
51 m²
Miskolc
Eladó téglalakás

Miskolc

54.45 M Ft
2 szoba
51 m²
Kazincbarcika
Eladó téglalakás

Kazincbarcika

15.9 M Ft
1 szoba
44 m²
Tiszaújváros, Verebély utca
Eladó téglalakás

Tiszaújváros

23.9 M Ft
1 + 1 szoba
39 m²
Miskolc
Eladó téglalakás

Miskolc

34.9 M Ft
1 + 1 szoba
49 m²
Miskolc
Eladó téglalakás

Miskolc

65.34 M Ft
3 szoba
60 m²
Miskolc
Eladó téglalakás

Miskolc

54.45 M Ft
2 szoba
51 m²
Miskolc
Eladó téglalakás

Miskolc

68.99 M Ft
3 szoba
76 m²
Miskolc
Eladó téglalakás

Miskolc

65.34 M Ft
3 szoba
60 m²
Miskolc
Eladó téglalakás

Miskolc

65.34 M Ft
3 szoba
60 m²
Putnok
Eladó téglalakás

Putnok

13.6 M Ft
3 szoba
123 m²
Miskolc
Eladó téglalakás

Miskolc

58.24 M Ft
2 szoba
63 m²
Miskolc
Eladó téglalakás

Miskolc

163.35 M Ft
4 szoba
110 m²
Miskolc
Eladó téglalakás

Miskolc

74.1 M Ft
2 szoba
77 m²
Miskolc
Eladó téglalakás

Miskolc

59.99 M Ft
4 szoba
119 m²
Miskolc
Eladó téglalakás

Miskolc

35.9 M Ft
1 + 1 szoba
34 m²

Falusi CSOK ingatlanok

Badacsonytördemic
Eladó családi ház

Badacsonytördemic

90 M Ft
3 szoba
130 m²
Nagykarácsony
Eladó családi ház

Nagykarácsony

34.9 M Ft
3 szoba
112 m²
Balatonszemes
Eladó téglalakás

Balatonszemes

123.3 M Ft
2 szoba
70 m²
Pálfa
Eladó családi ház

Pálfa

22 M Ft
3 szoba
98 m²
Kétpó
Eladó családi ház

Kétpó

14.9 M Ft
1 + 2 szoba
86 m²
Enese
Eladó családi ház

Enese

72.025 M Ft
4 szoba
75 m²
Tápióbicske
Eladó ikerház

Tápióbicske

93.5 M Ft
7 szoba
136 m²
Ceglédbercel
Eladó családi ház

Ceglédbercel

79.9 M Ft
5 szoba
140 m²