Aerogate Homes

Eladó téglalakás
Miskolc, földszint

+ 17 kép 1/20
59 900 000 Ft59.9 M Ft 721 687 Ft/m2
3 szoba
83 m²
földszint
építés éve:1930

Részletes adatok

Állapot: Átlagos
Fűtés: Egyéb
Emelet: földszint
Energetikai besorolás: Nem adta meg a hirdető

Az OTP Bank lakáshitel ajánlataFizetett hirdetés

+36 30 101
Bregó Dávid
OTP Ingatlanpont Miskolc Szemere

Érdekel az OTP Bank kedvezményes lakáshitel ajánlata? *

* A kérdésre „Igen” válasz bejelölése esetén, az „Üzenet küldése” gombra kattintva kijelentem, hogy az OTP Bank Nyrt. Adatkezelési tájékoztatójának tartalmát megismertem és tudomásul vettem.

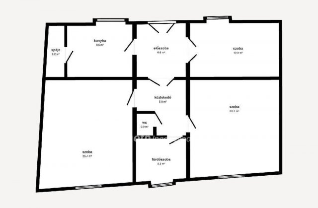
Eladó téglalakás leírása

Miskolc belvárosának egyik legkedveltebb részén kínálunk megvételre egy 83 nm alapterületű, három tágas szobával rendelkező lakást, amely ideális választás mindazok számára, akik a városi élet kényelmét szeretnék élvezni, mégis nyugodt, zöld környezetben keresnek otthont.
Az ingatlan praktikus elrendezésű: három külön nyíló, világos szoba, fürdőszoba, külön WC, spájz, kényelmes előtér és közlekedő biztosítja a komfortos mindennapokat. A lakás előtt található parkosított, elzárt udvar különleges hangulatot teremt. A lakáshoz tartozik egy 28 nm-es pince is, amely kiváló tárolási lehetőséget biztosít.
Az ingatlan jó állapotú, az elmúlt években több korszerűsítés történt: ennek keretében megújult a fürdőszoba, valamint új kondenzációs gázkazán került beépítésre. Az elektromos hálózat részben felújított. A fürdőszoba különlegessége a masszázsfunkciós kádas zuhanykabin, amely extra kényelmet biztosít. Az elhelyezkedésének és adottságainak köszönhetően a lakás ideális lehet családoknak, pároknak vagy akár befektetési célra is. Hívjon és tekintsük meg együtt! Jöjjön és tekintsük meg együtt, akár hétvégén is! OTP Banki hátterünknek köszönhetően finanszírozási igényekben (pl. Otthon Start Hitelprogram, Babaváró, Falusi CSOK, CSOK Plusz, Lakáshitel, Személyi kölcsön stb.), illetve biztosítások tekintetében is állunk ügyfeleink rendelkezésére! Hívása során hivatkozzon az M322490-es referenciaszámra.

Hirdetés feltöltve: 2026. 04. 03. Utoljára módosítva: 2026. 05. 10.

3 szobás téglalakások ára Miskolcon

Ebből az összehasonlításból megtudhatod, hogyan viszonyul a lakás ára a környékbeli téglalakások átlagos árához. Ez nem azt jelenti, hogy ennyivel olcsóbb vagy drágább, mint amennyit a lakás ér, hanem hogy ennyivel tér el a környékbeli átlagtól.

Ennek a m² ára
Miskolc m² ár
722 e Ft
797 e Ft 9%
Ennek az ára
Miskolc átlagár
59.9 M Ft m Ft
63.1 m Ft 5%

Az ingatlan elhelyezkedése

Cím: Miskolc, földszint

Eladó téglalakások a környékről

Miskolc
Eladó téglalakás

Miskolc

59.94 M Ft
2 szoba
51 m²
Miskolc, Belváros, Kazinczy Ferenc utca
Eladó téglalakás

Miskolc

74.9 M Ft
3 szoba
98 m²
Miskolc
Eladó téglalakás

Miskolc

9.5 M Ft
2 szoba
59 m²
Miskolc
Eladó téglalakás

Miskolc

65.34 M Ft
3 szoba
60 m²
Miskolc
Eladó téglalakás

Miskolc

32.5 M Ft
1 + 1 szoba
49 m²
Miskolc
Eladó téglalakás

Miskolc

163.35 M Ft
4 szoba
110 m²
Sátoraljaújhely
Eladó téglalakás

Sátoraljaújhely

32.9 M Ft
4 szoba
105 m²
Ózd
Eladó téglalakás

Ózd

16.9 M Ft
250 m²
Miskolc
Eladó téglalakás

Miskolc

79.9 M Ft
4 szoba
90 m²
Miskolc
Eladó téglalakás

Miskolc

59.45 M Ft
2 szoba
43 m²
Miskolc
Eladó téglalakás

Miskolc

74.1 M Ft
2 szoba
77 m²
Miskolc, Belváros, Kazinczy Ferenc utca
Eladó téglalakás

Miskolc

74.9 M Ft
3 szoba
98 m²
Miskolc
Eladó téglalakás

Miskolc

68.99 M Ft
3 szoba
76 m²
Miskolc
Eladó téglalakás

Miskolc

54.9 M Ft
3 szoba
122 m²
Miskolc
Eladó téglalakás

Miskolc

54.9 M Ft
3 szoba
122 m²
Miskolc, Új Diósgyőr, Torontáli utca
Eladó téglalakás

Miskolc

19.99 M Ft
2 szoba
49 m²
Tiszaújváros, Verebély utca
Eladó téglalakás

Tiszaújváros

23.9 M Ft
1 + 1 szoba
39 m²
Miskolc
Eladó téglalakás

Miskolc

75.982 M Ft
3 szoba
77 m²
Miskolc
Eladó téglalakás

Miskolc

51.9 M Ft
3 szoba
82 m²
Miskolc
Eladó téglalakás

Miskolc

69.7 M Ft
3 szoba
60 m²
Miskolc, Bábonyibérc
Eladó téglalakás

Miskolc

35.9 M Ft
1 + 1 szoba
34 m²
Miskolc
Eladó téglalakás

Miskolc

51.9 M Ft
3 szoba
82 m²
Miskolc
Eladó téglalakás

Miskolc

75.982 M Ft
3 szoba
77 m²
Miskolc, Keleti városrész, József Attila
Eladó téglalakás

Miskolc

27.9 M Ft
2 szoba
55 m²

Falusi CSOK ingatlanok

Hegyeshalom, Margaréta utca 12
Eladó téglalakás

Hegyeshalom

32.89 M Ft
1 szoba
27 m²
Rétság
Eladó téglalakás

Rétság

39.9 M Ft
2 szoba
55 m²
Törtel
Eladó családi ház

Törtel

32.5 M Ft
3 szoba
66 m²
Pilisszentkereszt
Eladó családi ház

Pilisszentkereszt

68.9 M Ft
2 szoba
50 m²
Balatonszemes
Eladó téglalakás

Balatonszemes

119.9 M Ft
2 szoba
0 m²
Csárdaszállás
Eladó családi ház

Csárdaszállás

11.99 M Ft
3 + 2 szoba
100 m²
Kál
Eladó családi ház

Kál

31 M Ft
4 szoba
307 m²
Katymár
Eladó családi ház

Katymár

34 M Ft
5 szoba
200 m²