NapForrás 20 - Buda

Eladó téglalakás
Miskolc, 3. emelet

+ 10 kép 1/13
59 900 000 Ft59.9 M Ft 809 459 Ft/m2
3 szoba
74 m²
3. emelet
építés éve:2010

Részletes adatok

Fűtés: Távfűtés
Emelet: 3. emelet
Extrák: Lift
Energetikai besorolás: Nem adta meg a hirdető

Az OTP Bank lakáshitel ajánlataFizetett hirdetés

+36 30 928
Fehérvári György
OTP IP Miskolc Corvin 1-3

Érdekel az OTP Bank kedvezményes lakáshitel ajánlata? *

* A kérdésre „Igen” válasz bejelölése esetén, az „Üzenet küldése” gombra kattintva kijelentem, hogy az OTP Bank Nyrt. Adatkezelési tájékoztatójának tartalmát megismertem és tudomásul vettem.

Eladó téglalakás leírása

Csak az OTP INGATLANPONT ajánlatában!
Eladásra kínálunk a nyüzsgő belváros szívében, közvetlenül a PLÁZA mellett, egy 74 nm-es, 3. emeleti, klimatizált, 3 szobás lakást, ami kiválóan megfelel a környék hangulatát kedvelő családi otthonnak, esetleg cégnek, irodának, orvosi rendelőnek vagy az elhelyezkedése miatt bármilyen vállalkozásnak, illetve Airbnb hasznosításra.
Az ingatlan 3 szintes, téglából épült 2010-ben, és fontosnak tartom megjegyezni, hogy ebben az épületben a válaszfalak is téglából készültek.
Belvárosi pezsgő élet, éttermek, üzletek, óvoda, iskola, gimnázium, bank, busz pályaudvar, mindez pár perces sétával elérhető.
Az ingatlan liftes, szépen rendben tartott, zárt, a tavalyi évben teljesen felújított lépcsőházból nyílik.
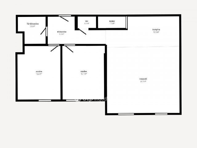
2 hálószobából, 1 amerikai konyhás nappaliból,1 közlekedőből,1 fürdőszobából, 1 WC-ből és egy kicsi tároló helyiségből áll.
Minden szoba külön bejáratú, a fürdő és a WC szintén különálló.
A szobák laminált parkettával fedettek, a többi helyiség hideg burkolattal ellátott.
A lakás elrendezése kiváló, könnyű átalakítani saját elképzelés szerint.
Rendkívül világos, minden helyisége ablakos, a nappali franciaerkélyes.
Az ablakok hő- és hangszigeteltek, háromrétegű üvegezéssel, szúnyoghálóval és redőnnyel felszereltek.
Az épületben több, főleg irodai és orvosi vállalkozás működik, jelen pillanatban is.
Nézze meg, nem fogja megbánni!
Az ingatlan előzetes egyeztetés után megtekinthető, akár hétvégén is!
Várjuk hívását és kérjük, hivatkozzon a következő referenciaszámra: M323244
OTP Banki hátterünknek köszönhetően finanszírozási igényekben (pl. Otthon Start Hitelprogram, Babaváró, Falusi CSOK, CSOK Plusz, Lakáshitel, Személyi kölcsön stb.), illetve biztosítások tekintetében is díjmentesen, soron kívüli ügyintézéssel segítem ügyfeleim!

59900000 Ft
Érdeklődni: Fehérvári György +36 30 928-2084

Referencia szám: M322344

Hirdetés feltöltve: 2026. 03. 12. Utoljára módosítva: 2026. 04. 01.

3 szobás téglalakások ára Miskolcon

Ebből az összehasonlításból megtudhatod, hogyan viszonyul a lakás ára a környékbeli téglalakások átlagos árához. Ez nem azt jelenti, hogy ennyivel olcsóbb vagy drágább, mint amennyit a lakás ér, hanem hogy ennyivel tér el a környékbeli átlagtól.

Ennek a m² ára
Miskolc m² ár
809 e Ft
813 e Ft 0%
Ennek az ára
Miskolc átlagár
59.9 M Ft m Ft
66 m Ft 9%

Az ingatlan elhelyezkedése

Cím: Miskolc, 3. emelet

Eladó téglalakások a környékről

Miskolc
Eladó téglalakás

Miskolc

163.35 M Ft
4 szoba
110 m²
Miskolc
Eladó téglalakás

Miskolc

59.94 M Ft
2 szoba
51 m²
Ózd
Eladó téglalakás

Ózd

8.9 M Ft
2 szoba
57 m²
Sárospatak, Tompa Mihály utca
Eladó téglalakás

Sárospatak

23.9 M Ft
2 szoba
62 m²
Miskolc
Eladó téglalakás

Miskolc

51.9 M Ft
3 szoba
82 m²
Putnok
Eladó téglalakás

Putnok

13.6 M Ft
3 szoba
123 m²
Miskolc
Eladó téglalakás

Miskolc

68.99 M Ft
3 szoba
76 m²
Miskolc
Eladó téglalakás

Miskolc

34.9 M Ft
1 + 1 szoba
49 m²
Tiszaújváros, Verebély utca
Eladó téglalakás

Tiszaújváros

23.9 M Ft
1 + 1 szoba
39 m²
Miskolc
Eladó téglalakás

Miskolc

75.982 M Ft
3 szoba
77 m²
Miskolc
Eladó téglalakás

Miskolc

65.34 M Ft
1 + 1 szoba
40 m²
Miskolc, Új Diósgyőr, Torontáli utca
Eladó téglalakás

Miskolc

19.99 M Ft
2 szoba
49 m²
Miskolc
Eladó téglalakás

Miskolc

35.9 M Ft
1 + 1 szoba
34 m²
Miskolc, Keleti városrész, József Attila
Eladó téglalakás

Miskolc

27.9 M Ft
2 szoba
55 m²
Miskolc, Új Diósgyőr, Torontáli utca
Eladó téglalakás

Miskolc

19.99 M Ft
2 szoba
49 m²
Miskolc
Eladó téglalakás

Miskolc

69.7 M Ft
3 szoba
60 m²
Miskolc
Eladó téglalakás

Miskolc

59.45 M Ft
2 szoba
43 m²
Miskolc
Eladó téglalakás

Miskolc

9.99 M Ft
2 szoba
59 m²
Miskolc
Eladó téglalakás

Miskolc

163.35 M Ft
4 szoba
110 m²
Miskolc
Eladó téglalakás

Miskolc

74.1 M Ft
2 szoba
77 m²
Ózd
Eladó téglalakás

Ózd

4.99 M Ft
2 szoba
55 m²
Miskolc
Eladó téglalakás

Miskolc

65.34 M Ft
1 + 1 szoba
40 m²
Ózd
Eladó téglalakás

Ózd

10.4 M Ft
2 szoba
48 m²
Miskolc
Eladó téglalakás

Miskolc

34.9 M Ft
1 + 1 szoba
49 m²

Falusi CSOK ingatlanok

Nagyszénás
Eladó családi ház

Nagyszénás

14 M Ft
3 szoba
81 m²
Kővágószőlős
Eladó téglalakás

Kővágószőlős

24 M Ft
2 szoba
52 m²
Mezőkeresztes
Eladó ikerház

Mezőkeresztes

13.5 M Ft
2 + 1 szoba
70 m²
Kenyeri
Eladó családi ház

Kenyeri

39.9 M Ft
3 szoba
94 m²
Dombrád, Rákóczi út 22
Eladó családi ház

Dombrád

12.74 M Ft
1 + 1 szoba
125 m²
Nyáregyháza
Eladó családi ház

Nyáregyháza

15.9 M Ft
2 szoba
39 m²
Tápiógyörgye
Eladó családi ház

Tápiógyörgye

8.5 M Ft
2 szoba
63 m²
Bácsbokod
Eladó családi ház

Bácsbokod

55 M Ft
6 szoba
250 m²