Eladó téglalakás
Levél, 2. emelet

1/2
35 000 000 Ft35 M Ft 1 000 000 Ft/m2
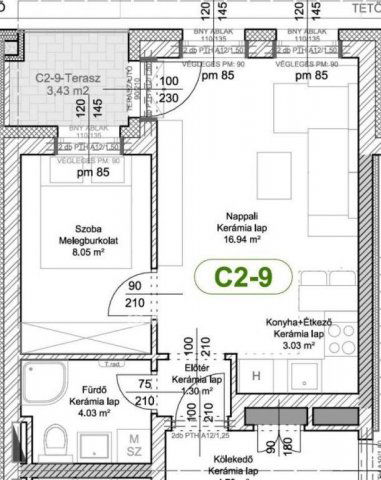
2 szoba
35 m2
2. emelet
építés éve:2025

Részletes adatok

Fűtés: Gázkazán
Energetikai besorolás: Nem adta meg a hirdető

Az OTP Bank lakáshitel ajánlataFizetett hirdetés

+36 70 372
Dobos András
referens

Érdekel az OTP Bank kedvezményes lakáshitel ajánlata? *

* A kérdésre „Igen” válasz bejelölése esetén, az „Üzenet küldése” gombra kattintva kijelentem, hogy az OTP Bank Nyrt. Adatkezelési tájékoztatójának tartalmát megismertem és tudomásul vettem.

Eladó téglalakás leírása

Győr-Moson-Sopron vármegyében, Levélen, modern lakások átgondolt műszaki tartalommal, jó minőségű beépített anyagokkal, új építésű projektben leköthetők! Épületszerkezet: Monolit vasbeton vázszerkezet, falazata: Leiertherm 30 N+F tégla, válaszfalak 10cm-es hanggátló téglából készülnek. Homlokzati hőszigetelés 15 cm vastagságú Austrotherm Dryvit rendszerrel, zárófödém szigetelés AUSTROTHERM AT-N100 rendszer. Nyílászárók: 3 rétegű 5 légkamrás üvegezéssel ellátott. A földszinti lakások - szinte mindegyike - kizárólagos használatú kerttel, az emeleti lakások erkéllyel rendelkeznek. A lakásokhoz tároló, és parkoló igény szerint vásárolható. A fűtésről-melegvízellátásról központi turbó gázkazán gondoskodik, padlófűtéssel egyedi hőmennyiségmérővel. A feltöltött képek csak illusztrációk! Modern megoldásokkal és változatos alaprajzokkal várja Önt is leendő lakása. Nyugodt, zöld környezet,tágas, napfényes lakások-hozzátartozó teraszokkal, kertekkel, több éves tapasztalattal rendelkező kivitelező! Kiemelt bérbeadhatóság, garantált bérleti díj!
Amennyiben további kérdése van forduljon hozzám bizalommal elérhetőségeimen!

35000000 Ft
Tekintse meg személyesen, várom hívását!
Dobos András +36703724717

Referencia szám: M313674

Hirdetés feltöltve: 2025. 10. 06.

2 szobás téglalakások ára Levélen

Ebből az összehasonlításból megtudhatod, hogyan viszonyul a lakás ára a környékbeli téglalakások átlagos árához. Ez nem azt jelenti, hogy ennyivel olcsóbb vagy drágább, mint amennyit a lakás ér, hanem hogy ennyivel tér el a környékbeli átlagtól.

Ennek a m² ára
Levél m² ár
1000 e Ft
916 e Ft -9%
Ennek az ára
Levél átlagár
35 M Ft m Ft
47.4 m Ft 26%

Az ingatlan elhelyezkedése

Cím: Levél, 2. emelet

Eladó ingatlanok a környékről

Eladó téglalakás
Eladó téglalakás

Sopron

44.9 M Ft
1 szoba
44 m2
Eladó téglalakás
Eladó téglalakás

Levél

40.9 M Ft
2 szoba
40 m2
Eladó téglalakás
Eladó téglalakás

Levél

33.9 M Ft
1 szoba
30 m2
Eladó téglalakás
Eladó téglalakás

Sopron

48 M Ft
1 + 2 szoba
42 m2
Eladó téglalakás
Eladó téglalakás

Sopron

77 M Ft
4 szoba
143 m2
Eladó téglalakás
Eladó téglalakás

Levél

31.79 M Ft
1 szoba
30 m2
Eladó családi ház
Eladó családi ház

Nagybajcs

119.99 M Ft
5 szoba
114 m2
Eladó családi ház
Eladó családi ház

Győrság

477 M Ft
13 szoba
1115 m2
Eladó téglalakás
Eladó téglalakás

Mosonmagyaróvár

54.9 M Ft
2 + 1 szoba
57 m2
Eladó panellakás
Eladó panellakás

Mosonmagyaróvár

45.99 M Ft
2 + 1 szoba
55 m2
Eladó téglalakás
Eladó téglalakás

Sopron

84.99 M Ft
3 + 1 szoba
56 m2
Eladó téglalakás
Eladó téglalakás

Győr

48.99 M Ft
3 szoba
57 m2
Eladó telek
Eladó telek

Tényő

17.9 M Ft
1326 m²
1326 m2
Eladó téglalakás
Eladó téglalakás

Nagycenk

57.9 M Ft
1 + 2 szoba
54 m2
Eladó téglalakás
Eladó téglalakás

Sopron

95.7 M Ft
3 szoba
87 m2
Eladó téglalakás
Eladó téglalakás

Mosonmagyaróvár

31.8 M Ft
1 szoba
38 m2
Eladó téglalakás
Eladó téglalakás

Győr

95 M Ft
4 szoba
110 m2
Eladó téglalakás
Eladó téglalakás

Nagycenk

63.9 M Ft
1 + 2 szoba
62 m2
Eladó téglalakás
Eladó téglalakás

Győr

91.8 M Ft
3 szoba
63 m2
Eladó téglalakás
Eladó téglalakás

Levél

51.6 M Ft
42 m²
42 m2
Eladó családi ház
Eladó családi ház

Kópháza

134 M Ft
4 szoba
106 m2
Eladó téglalakás
Eladó téglalakás

Sopron

37 M Ft
1 + 1 szoba
30 m2
Eladó téglalakás
Eladó téglalakás

Sopron, Gólya utca

46.9 M Ft
2 szoba
44 m2
Eladó telek
Eladó telek

Mosonszentmiklós

11.5 M Ft
738 m²
738 m2

Falusi CSOK ingatlanok

Eladó családi ház
Eladó családi ház

Bakonyság

51.9 M Ft
2 + 1 szoba
91 m2
Eladó családi ház
Eladó családi ház

Rédics

51 M Ft
3 szoba
107 m2
Eladó családi ház
Eladó családi ház

Mezőgyán, Árpád utca 48.

2.55 M Ft
1 + 1 szoba
107 m2
Eladó családi ház
Eladó családi ház

Nagyszénás, Zrínyi

8.5 M Ft
3 szoba
94 m2
Eladó családi ház
Eladó családi ház

Szentmártonkáta

35.4 M Ft
2 + 2 szoba
107 m2
Eladó családi ház
Eladó családi ház

Buzsák

16.9 M Ft
4 szoba
100 m2
Eladó családi ház
Eladó családi ház

Iváncsa

73.9 M Ft
1 + 3 szoba
97 m2
Eladó családi ház
Eladó családi ház

Szigetcsép

27.9 M Ft
3 szoba
81 m2