River Life

Eladó téglalakás
Kőszeg, 1. emelet

+ 12 kép 1/15
47 900 000 Ft47.9 M Ft 1 140 476 Ft/m2
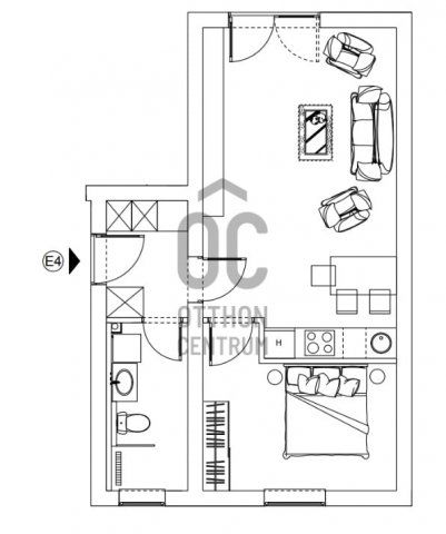
2 szoba
42 m2
1. emelet
építés éve:2026

Részletes adatok

Fűtés: Elektromos
Közmű: Villany, Csatorna
Energetikai besorolás: Nem adta meg a hirdető

Az OTP Bank lakáshitel ajánlataFizetett hirdetés

+36 70 465
Tóth Éva
Otthon Centrum - Kőszeg

Érdekel az OTP Bank kedvezményes lakáshitel ajánlata? *

* A kérdésre „Igen” válasz bejelölése esetén, az „Üzenet küldése” gombra kattintva kijelentem, hogy az OTP Bank Nyrt. Adatkezelési tájékoztatójának tartalmát megismertem és tudomásul vettem.

Eladó téglalakás leírása

Fektessen be a jövőbe egy igazán különleges ingatlanban, amely nem csupán lakóhelyet, hanem egy életstílust kínál Önnek! Kőszegben, Vas vármegyében elérhető ez a modern, új építésű lakás, amely ideális választás lehet befektetők számára, akik értékelik a prémium kivitelezést és az egyedi tervezést. Az ingatlan alapterülete 42,63 négyzetméter, melyben egy tágas, világos nappali -étkező, hálószoba és egy fürdőszoba található, így minden igényt kielégít a kényelmes életvitelhez. Az ingatlan állapota kiváló, a legmodernebb megoldásokkal van felszerelve, amely varázslatos atmoszférát teremt otthonában. . A fűtés megújuló energiaforrásokkal működik, így Ön nemcsak a környezet védelmét szolgálja, hanem hosszú távon költségeit is csökkentheti. A környék ellátottsága kiváló, hiszen a közeli üzletek, éttermek és szolgáltatások mindössze néhány perc sétára találhatók. A közlekedés kitűnő, gyors és kényelmes eljutást biztosítanak a környező településekre , Ausztria 3 km-re. Kőszeg csendes utcái és biztonságos környezete ideális választássá teszik ezt az ingatlant családok, fiatal párok és befektetők számára egyaránt.
A lakópark területén elérhető, már üzemelő fitness, egyedi masszázs, AI vezérelt privát fitness akár személy edzéssel, Infrashape kerékpár, Myfit áll rendelkezésre az itt élők számára.
ELŐÉRTÉKESÍTÉSI KEDVEZMÉNYEK:
-előszerződéskötéskor a vételár 60% megfizetése esetén 5% kedvezmény a vételárból ,
-90% megfizetése esetén 10% megfizetése a vételárból

Modern megoldások, otthonos kényelem Ne hagyja ki ezt a lehetőséget, hogy egy modern, jól megtervezett otthonra tegyen szert, amely nemcsak lakóhely, hanem egyben értékálló befektetés is. Bármilyen kérdése merülne fel az ingatlannal vagy a vásárlási folyamattal kapcsolatban, bizalommal kereshet minket! A célunk, hogy Ön a lehető legjobb döntést hozza meg, és a legmagasabb szintű szolgáltatást nyújtsuk Önnek az ingatlanpiacon.
Projekt bemutatása

Ismerje meg a Kőszeg-River SPA Lakópark legújabb, 6 lakóegységes társasházának kínálatát, ahol modern lakások és extra szolgáltatások várnak.
Miért érdemes választani?
A lakópark elhelyezkedése egyszerre határmenti és belvároshoz közeli, így az értéknövekedés és a kiadhatóság szinte garantált. A hangulatos, motoros úszókapuval zárt udvar központi eleme a süllyesztett, 6.5 x 3,5 méteres medence, melyet egy külön nyíló wellness-rész egészít ki, hogy a pihenés és kényelem minden nap elérhető legyen.
A lakópark területén elérhető, már üzemelő fitness, egyedi masszázs, AI vezérelt privát Fitness akár személy edzéssel, Infrashape kerékpár, Myfit.
Modern megoldások, otthonos kényelem
Az épület modern, letisztult stílusával és korszerű technológiájával a jövő otthonkeresőit célozza meg. Minden lakás:
-Inverteres hűtő/fűtő klíma , infrafilm padlófűtéssel rendelkezik, amely nemcsak kényelmes, de környezetbarát is.
-hővisszanyerős légcserélő gondoskodik a folyamatos jó minőségű levegőről.
-Minimális rezsiköltség, hatékony és gyors, egyedi fűtésrendszer
- Fokozott szigetelést kapott a padozat, a födém, a lábazat és a homlokzat tekintetében, megfelelve a legszigorúbb szabványoknak.
- Háromrétegű, hő- és hangszigetelt nyílászárókkal van felszerelve.
-meleg víz ellátást levegő-hőszivattyús villanybojler biztosítja
A vételár tartalmazza:
• Egy saját parkolóhelyet.
• Kulcsrakész állapotot burkolatok, kapcsolók dugaljak,szaniterek,beltéri ajtók tartalmazzák.

Garázs is vásárolható : 6 db érhető el, ára a későbbiekben kerül meghatározásra.
Lakások és árak:
• FSZ/1: 42,63 nm +12,3 nm terasz+49,5 nm kert– 54,9 millió Ft
• FSZ/2 : 37,09 nm+ 12 nm terasz+42 nm kert – 49,9 millió Ft
• FSZ/3: 55,38 nm+12,03 terasz+ 100 nm kert – 64,9 millió Ft
• 1/4: 42,67 nm +1,36 nm terasz– 47,9 millió Ft
• 1/5: 37,91 nm +4.75 nm terasz– 44,9 millió Ft
• 1/6: 55,4 nm+ 6,15 nm terasz – 61,9 millió Ft
Miért válassz minket?
Több évtizedes tapasztalatunk van családi házak és társasházak építésében – referenciáink között
a kisebb projektektől egészen a 30+ lakásos társasházakig minden megtalálható. Vásárlóink
elégedettsége és ingatlanjaik értéknövekedése a garancia arra, hogy nálunk jó döntést hozol.

Ne maradj le! Foglalj elővételben, és élvezd a határmenti otthon nyújtotta kényelmet és extra
szolgáltatásokat!
A beruházó az esetleges módosítások és anyagváltoztatás jogát fenntartja. A látványképek extra látványelemeket is tartalmazhatnak, ezek utólagosan nem számonkérhetők.

Hirdetés feltöltve: 2025. 10. 01. Utoljára módosítva: 2025. 11. 04.

2 szobás téglalakások ára Kőszegen

Ebből az összehasonlításból megtudhatod, hogyan viszonyul a lakás ára a környékbeli téglalakások átlagos árához. Ez nem azt jelenti, hogy ennyivel olcsóbb vagy drágább, mint amennyit a lakás ér, hanem hogy ennyivel tér el a környékbeli átlagtól.

Ennek a m² ára
Kőszeg m² ár
1140 e Ft
735 e Ft -55%
Ennek az ára
Kőszeg átlagár
47.9 M Ft m Ft
37.6 m Ft -27%

Az ingatlan elhelyezkedése

Cím: Kőszeg, 1. emelet

Eladó téglalakások a környékről

Eladó téglalakás
Eladó téglalakás

Kőszeg

74.9 M Ft
7 szoba
180 m2
Eladó téglalakás
Eladó téglalakás

Kőszeg

63.5 M Ft
3 szoba
85 m2
Eladó téglalakás
Eladó téglalakás

Kőszeg

63.5 M Ft
3 szoba
85 m2
Eladó téglalakás
Eladó téglalakás

Szombathely

71.99 M Ft
120 m2
Eladó téglalakás
Eladó téglalakás

Kőszeg

59.9 M Ft
3 szoba
90 m2
Eladó téglalakás
Eladó téglalakás

Szombathely

69 M Ft
4 szoba
136 m2
Eladó téglalakás
Eladó téglalakás

Kőszeg

46 M Ft
4 szoba
142 m2
Eladó téglalakás
Eladó téglalakás

Répcelak, Petőfi Sándor utca

47.6 M Ft
4 szoba
68 m2
Eladó téglalakás
Eladó téglalakás

Kőszeg

63.5 M Ft
3 szoba
85 m2
Eladó téglalakás
Eladó téglalakás

Vasvár, Március 15. tér

19 M Ft
1 + 1 szoba
56 m2
Eladó téglalakás
Eladó téglalakás

Szombathely

44.9 M Ft
3 szoba
81 m2
Eladó téglalakás
Eladó téglalakás

Kőszeg

32.9 M Ft
2 szoba
56 m2
Eladó téglalakás
Eladó téglalakás

Kőszeg

32 M Ft
2 szoba
50 m2
Eladó téglalakás
Eladó téglalakás

Kőszeg

275 M Ft
10 szoba
370 m2
Eladó téglalakás
Eladó téglalakás

Kőszeg

42.9 M Ft
3 szoba
48 m2
Eladó téglalakás
Eladó téglalakás

Sárvár

25.99 M Ft
2 szoba
110 m2
Eladó téglalakás
Eladó téglalakás

Szombathely

62.8 M Ft
3 szoba
66 m2
Eladó téglalakás
Eladó téglalakás

Kőszeg

32 M Ft
2 szoba
50 m2
Eladó téglalakás
Eladó téglalakás

Kőszeg, Rákóczi Ferenc utca

28 M Ft
2 szoba
64 m2
Eladó téglalakás
Eladó téglalakás

Kőszeg

46 M Ft
4 szoba
142 m2
Eladó téglalakás
Eladó téglalakás

Kőszeg

32 M Ft
2 szoba
50 m2
Eladó téglalakás
Eladó téglalakás

Répcelak, Petőfi Sándor utca

46.2 M Ft
4 szoba
65 m2
Eladó téglalakás
Eladó téglalakás

Kőszeg

32 M Ft
2 szoba
50 m2
Eladó téglalakás
Eladó téglalakás

Celldömölk

32.9 M Ft
4 szoba
155 m2

Falusi CSOK ingatlanok

Eladó családi ház
Eladó családi ház

Ónod, Kossuth út 10

27.499 M Ft
3 + 2 szoba
120 m2
Eladó családi ház
Eladó családi ház

Himesháza

119.9 M Ft
4 szoba
160 m2
Eladó családi ház
Eladó családi ház

Ráksi

69.9 M Ft
4 szoba
139 m2
Eladó családi ház
Eladó családi ház

Ónod, Barátság 9

31.999 M Ft
3 szoba
150 m2
Eladó családi ház
Eladó családi ház

Pannonhalma

76.4 M Ft
4 szoba
97 m2
Eladó családi ház
Eladó családi ház

Görbeháza

22.5 M Ft
2 szoba
60 m2
Eladó családi ház
Eladó családi ház

Pécsvárad

140 M Ft
2 szoba
79 m2
Eladó családi ház
Eladó családi ház

Darnózseli

79.9 M Ft
4 szoba
104 m2