City Pearl

Eladó téglalakás
Komló, 1. emelet

+ 9 kép 1/12
35 400 000 Ft35.4 M Ft 680 769 Ft/m2
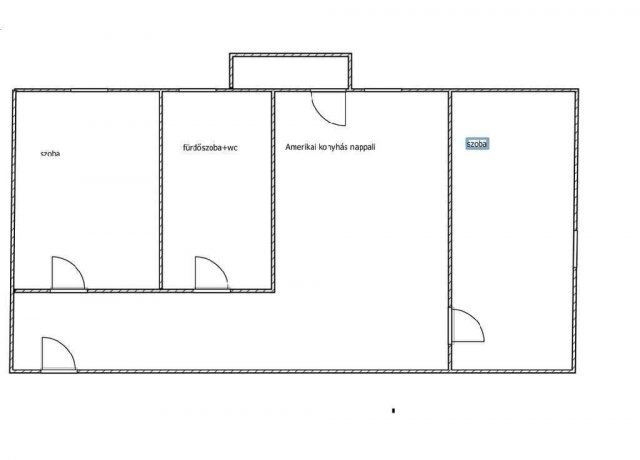
2 szoba
52 m²
1. emelet
építés éve:1970

Részletes adatok

Állapot: Felújított
Fűtés: Elektromos
Emelet: 1. emelet
Energetikai besorolás: Nem adta meg a hirdető

Az OTP Bank lakáshitel ajánlataFizetett hirdetés

+36 20 434
Régi-Mezei Zsuzsanna
referens

Érdekel az OTP Bank kedvezményes lakáshitel ajánlata? *

* A kérdésre „Igen” válasz bejelölése esetén, az „Üzenet küldése” gombra kattintva kijelentem, hogy az OTP Bank Nyrt. Adatkezelési tájékoztatójának tartalmát megismertem és tudomásul vettem.

Eladó téglalakás leírása

Azonnal költözhető, felújított 52 nm-es tégla lakás Komlón!
Kökönyös városrészben, 1. emeleten eladó erkélyes, 2 hálószoba + amerikai konyhás nappali elrendezésű ingatlan.
Modern megoldásokkal: infra padlófűtés, új nyílászárók, elektromos redőnyök, gépesített konyha, kényelmes nagy zuhanyzós fürdőszoba.
Kiváló közlekedés Pécs felé, iskola és óvoda a közelben.
Ne maradj le, hívj még ma, nézzük meg együtt! M324001

Hirdetés feltöltve: 2026. 03. 19. Utoljára módosítva: 2026. 04. 19.

2 szobás téglalakások ára Komlón

Ebből az összehasonlításból megtudhatod, hogyan viszonyul a lakás ára a környékbeli téglalakások átlagos árához. Ez nem azt jelenti, hogy ennyivel olcsóbb vagy drágább, mint amennyit a lakás ér, hanem hogy ennyivel tér el a környékbeli átlagtól.

Ennek a m² ára
Komló m² ár
681 e Ft
513 e Ft -33%
Ennek az ára
Komló átlagár
35.4 M Ft m Ft
27.6 m Ft -28%

Az ingatlan elhelyezkedése

Cím: Komló, 1. emelet

Eladó téglalakások a környékről

Komló
Eladó téglalakás

Komló

13.5 M Ft
3 szoba
67 m²
Komló, Kazinczy Ferenc utca 6
Eladó téglalakás

Komló

11.5 M Ft
2 szoba
52 m²
Komló
Eladó téglalakás

Komló

17.9 M Ft
2 szoba
50 m²
Pécs
Eladó téglalakás

Pécs

63.904 M Ft
2 szoba
52 m²
Pécs
Eladó téglalakás

Pécs

74.77 M Ft
2 szoba
60 m²
Pécs
Eladó téglalakás

Pécs

70 M Ft
3 szoba
60 m²
Pécs
Eladó téglalakás

Pécs

51.345 M Ft
2 szoba
35 m²
Komló, Arany János utca 9
Eladó téglalakás

Komló

17.9 M Ft
2 szoba
48 m²
Pécs
Eladó téglalakás

Pécs

91.2 M Ft
4 szoba
96 m²
Komló
Eladó téglalakás

Komló

24.5 M Ft
1 + 1 szoba
43 m²
Komló
Eladó téglalakás

Komló

43 M Ft
2 szoba
86 m²
Pécs
Eladó téglalakás

Pécs

60.958 M Ft
2 szoba
45 m²
Komló
Eladó téglalakás

Komló

17.5 M Ft
2 szoba
56 m²
Pécs
Eladó téglalakás

Pécs

63.588 M Ft
2 szoba
52 m²
Pécs
Eladó téglalakás

Pécs

68.594 M Ft
2 szoba
52 m²
Komló, Jó szerencsét utca 5
Eladó téglalakás

Komló

34.4 M Ft
2 szoba
52 m²
Pécs
Eladó téglalakás

Pécs

62.7 M Ft
2 szoba
46 m²
Pécs, Szigeti külváros, Hungária utca
Eladó téglalakás

Pécs

29.9 M Ft
1 szoba
41 m²
Pécs
Eladó téglalakás

Pécs

90.38 M Ft
3 szoba
71 m²
Pécs
Eladó téglalakás

Pécs

81.7 M Ft
4 szoba
86 m²
Komló
Eladó téglalakás

Komló

33.9 M Ft
3 szoba
56 m²
Komló
Eladó téglalakás

Komló

18.5 M Ft
2 szoba
51 m²
Komló
Eladó téglalakás

Komló

33.9 M Ft
3 szoba
56 m²
Komló, Kossuth Lajos utca
Eladó téglalakás

Komló

36.5 M Ft
2 + 1 szoba
63 m²

Falusi CSOK ingatlanok

Mályi
Eladó családi ház

Mályi

35 M Ft
3 szoba
115 m²
Felsőlajos
Eladó családi ház

Felsőlajos

100 M Ft
4 szoba
140 m²
Kunadacs
Eladó családi ház

Kunadacs

114.9 M Ft
4 szoba
174 m²
Bag
Eladó családi ház

Bag

79.9 M Ft
5 szoba
124 m²
Ceglédbercel
Eladó családi ház

Ceglédbercel

95 M Ft
6 szoba
220 m²
Németkér
Eladó családi ház

Németkér

149.9 M Ft
2 szoba
540 m²
Szigetújfalu
Eladó családi ház

Szigetújfalu

71.65 M Ft
2 + 1 szoba
81 m²
Hosszúhetény, Petőfi Sándor utca 10
Eladó családi ház

Hosszúhetény

20.65 M Ft
4 + 2 szoba
133 m²