Aerogate Homes

Eladó téglalakás
Komárom, földszint

+ 6 kép 1/9
43 862 000 Ft43.862 M Ft 843 500 Ft/m2
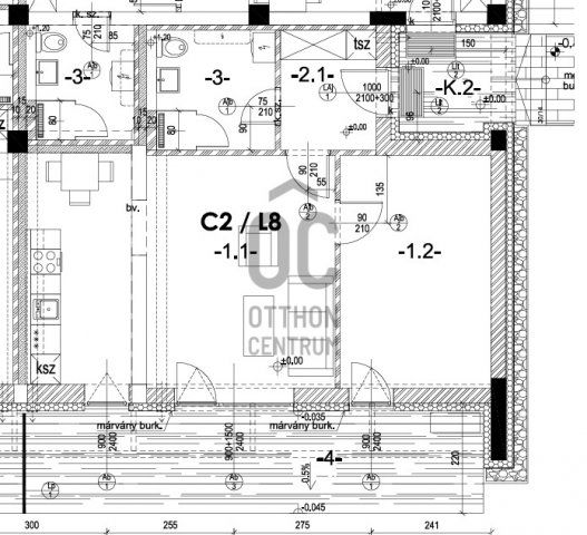
2 szoba
52 m2
földszint
építés éve:2025

Részletes adatok

Fűtés: Egyéb
Közmű: Villany, Csatorna
Energetikai besorolás: Nem adta meg a hirdető

Az OTP Bank lakáshitel ajánlataFizetett hirdetés

+36 70 465
Takács András
referens

Érdekel az OTP Bank kedvezményes lakáshitel ajánlata? *

* A kérdésre „Igen” válasz bejelölése esetén, az „Üzenet küldése” gombra kattintva kijelentem, hogy az OTP Bank Nyrt. Adatkezelési tájékoztatójának tartalmát megismertem és tudomásul vettem.

Eladó téglalakás leírása

Projekt bemutatása

Komárom egyik legvonzóbb beruházása a volt Gyermekváros területén valósul meg, ahol összesen 121 lakás kap helyet 6 különálló épületben. A lakópark csendes, zöld környezetben, mégis könnyen megközelíthető helyen épül, aszfaltos úttal és sorompóval lezárt, kizárólag a lakók számára elérhető bejárattal.
A fejlesztés célja a magas minőségű, energiatakarékos, modern otthonok kialakítása – mind szerkezetkész, mind kulcsrakész állapotban elérhetők.

Elérhető árak
Szerkezetkész árak – A, B és C épület
- Lakás: 750.000 Ft/m²
- Loggia: 375.000 Ft/m²
- Terasz: 120.000 Ft/m²
- Kert: 19.000 Ft/m²
- Előkert: 5.000 Ft/m²
- Parkoló: 2.000.000 Ft
Szerkezetkész műszaki tartalom:
- Épületgépészeti és villamos kiállások kialakítva
- Bojler az árban
- Fűtés: klímával megoldva
- Vakolt falak, padló aljzatkiegyenlítve
- Antracit színű fém ablakok és erkélyajtók
- Bejárati ajtó
- Beltéri ajtók, konyhabútor, gardrób, csillár NINCS az árban
- Kert: durva tereprendezés
- Teraszok, loggiák burkolat nélkül
Kulcsrakész árak – A, B és C épület
- Lakás: 950.000 Ft/m²
- Loggia: 475.000 Ft/m²
- Terasz: 200.000 Ft/m²
- Kert: 19.000 Ft/m²
- Előkert: 5.000 Ft/m²
- Parkoló: 2.000.000 Ft
Kulcsrakész felszereltség:
- Standard burkolatok (parketta + kerámia)
- Fehér falfestés
- Bejárati és beltéri ajtók (fa, magasfényű fehér)
- Antracit fém ablakok, erkélyajtók
- Olasz bojler
- Elektromos törölközőszárítós radiátor a fürdőben
- Épített zuhanytálca + zuhanyfal
- Mosdó + csaptelep
- Loggiák és teraszok kerámia burkolattal
- Kapcsolók, konnektorok (fehér)
- Konyhabútor, gardrób és csillár nincs az árban
- Kert durva tereprendezve
Fűtés:
Gree Pro Comfort 2,5–3,5 kW, fűtésre optimalizált klímák.

Hirdetés feltöltve: 2025. 10. 09. Utoljára módosítva: 2025. 11. 29.

2 szobás téglalakások ára Komáromban

Ebből az összehasonlításból megtudhatod, hogyan viszonyul a lakás ára a környékbeli téglalakások átlagos árához. Ez nem azt jelenti, hogy ennyivel olcsóbb vagy drágább, mint amennyit a lakás ér, hanem hogy ennyivel tér el a környékbeli átlagtól.

Ennek a m² ára
Komárom m² ár
844 e Ft
810 e Ft -4%
Ennek az ára
Komárom átlagár
43.862 M Ft m Ft
41.2 m Ft -6%

Az ingatlan elhelyezkedése

Cím: Komárom, földszint

Eladó téglalakások a környékről

Eladó téglalakás
Eladó téglalakás

Esztergom, Vaskapui út

99.9 M Ft
4 szoba
140 m2
Eladó téglalakás
Eladó téglalakás

Dorog

89 M Ft
2 szoba
150 m2
Eladó téglalakás
Eladó téglalakás

Komárom, Mártírok útja

36.225 M Ft
47 m2
Eladó téglalakás
Eladó téglalakás

Komárom, Mártírok útja

25.578 M Ft
1 szoba
36 m2
Eladó téglalakás
Eladó téglalakás

Komárom, Mártírok útja

43.477 M Ft
2 szoba
50 m2
Eladó téglalakás
Eladó téglalakás

Komárom, Mártírok útja

34.02 M Ft
2 szoba
48 m2
Eladó téglalakás
Eladó téglalakás

Komárom

35 M Ft
1 szoba
50 m2
Eladó téglalakás
Eladó téglalakás

Komárom, Városi

38.9 M Ft
1 szoba
43 m2
Eladó téglalakás
Eladó téglalakás

Komárom

39.75 M Ft
2 szoba
53 m2
Eladó téglalakás
Eladó téglalakás

Komárom

22.4 M Ft
1 szoba
32 m2
Eladó téglalakás
Eladó téglalakás

Komárom

83 M Ft
3 szoba
104 m2
Eladó téglalakás
Eladó téglalakás

Komárom, Mártírok útja

40.146 M Ft
2 szoba
53 m2
Eladó téglalakás
Eladó téglalakás

Komárom, Városi

86.06 M Ft
2 szoba
73 m2
Eladó téglalakás
Eladó téglalakás

Komárom, Mártírok útja

49.58 M Ft
2 szoba
51 m2
Eladó téglalakás
Eladó téglalakás

Komárom, Mártírok útja

46.8 M Ft
2 szoba
65 m2
Eladó téglalakás
Eladó téglalakás

Komárom

39.75 M Ft
2 szoba
53 m2
Eladó téglalakás
Eladó téglalakás

Komárom

30.8 M Ft
1 szoba
44 m2
Eladó téglalakás
Eladó téglalakás

Komárom, Mártírok útja

27.658 M Ft
1 szoba
34 m2
Eladó téglalakás
Eladó téglalakás

Komárom, Mártírok útja

39.823 M Ft
2 szoba
52 m2
Eladó téglalakás
Eladó téglalakás

Komárom, Mártírok útja

33.946 M Ft
2 szoba
43 m2
Eladó téglalakás
Eladó téglalakás

Esztergom, Vaskapui út

99.9 M Ft
4 szoba
140 m2
Eladó téglalakás
Eladó téglalakás

Tatabánya

48.6 M Ft
3 szoba
56 m2
Eladó téglalakás
Eladó téglalakás

Komárom, Mártírok útja

34.02 M Ft
2 szoba
48 m2
Eladó téglalakás
Eladó téglalakás

Komárom, Mártírok útja

41.903 M Ft
2 szoba
55 m2

Falusi CSOK ingatlanok

Eladó családi ház
Eladó családi ház

Sellye

15 M Ft
3 szoba
120 m2
Eladó családi ház
Eladó családi ház

Tápióság

30 M Ft
3 szoba
67 m2
Eladó családi ház
Eladó családi ház

Iváncsa

73.9 M Ft
1 + 3 szoba
97 m2
Eladó családi ház
Eladó családi ház

Vácszentlászló

45 M Ft
4 szoba
100 m2
Eladó ikerház
Eladó ikerház

Tápióbicske

28.5 M Ft
4 szoba
74 m2
Eladó családi ház
Eladó családi ház

Zákány, Május 1. utca

39.9 M Ft
2 szoba
112 m2
Eladó családi ház
Eladó családi ház

Jakabszállás

69.99 M Ft
1 + 4 szoba
91 m2
Eladó családi ház
Eladó családi ház

Felsőlajos

100 M Ft
4 szoba
140 m2