NapForrás 20 - Buda

Eladó téglalakás
Komárom, földszint

+ 6 kép 1/9
60 888 000 Ft60.888 M Ft 1 170 923 Ft/m2
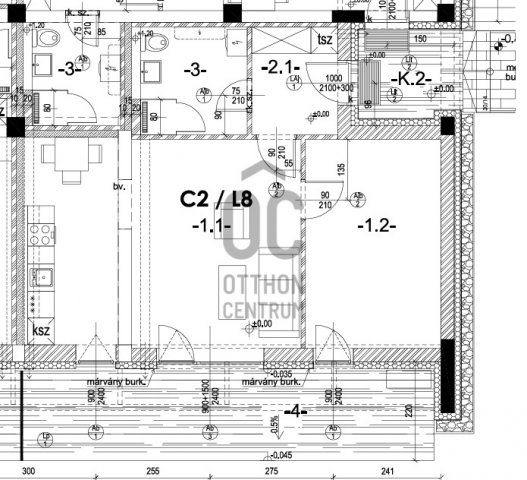
2 szoba
52 m2
földszint
építés éve:2025

Részletes adatok

Fűtés: Egyéb
Közmű: Villany, Csatorna
Energetikai besorolás: Nem adta meg a hirdető

Az OTP Bank lakáshitel ajánlataFizetett hirdetés

+36 70 465
Takács András
referens

Érdekel az OTP Bank kedvezményes lakáshitel ajánlata? *

* A kérdésre „Igen” válasz bejelölése esetén, az „Üzenet küldése” gombra kattintva kijelentem, hogy az OTP Bank Nyrt. Adatkezelési tájékoztatójának tartalmát megismertem és tudomásul vettem.

Eladó téglalakás leírása

Projekt bemutatása

Komárom egyik legvonzóbb beruházása a volt Gyermekváros területén valósul meg, ahol összesen 121 lakás kap helyet 6 különálló épületben. A lakópark csendes, zöld környezetben, mégis könnyen megközelíthető helyen épül, aszfaltos úttal és sorompóval lezárt, kizárólag a lakók számára elérhető bejárattal.
A fejlesztés célja a magas minőségű, energiatakarékos, modern otthonok kialakítása – mind szerkezetkész, mind kulcsrakész állapotban elérhetők.

Elérhető árak
Szerkezetkész árak – A, B és C épület
- Lakás: 750.000 Ft/m²
- Loggia: 375.000 Ft/m²
- Terasz: 120.000 Ft/m²
- Kert: 19.000 Ft/m²
- Előkert: 5.000 Ft/m²
- Parkoló: 2.000.000 Ft
Szerkezetkész műszaki tartalom:
- Épületgépészeti és villamos kiállások kialakítva
- Bojler az árban
- Fűtés: klímával megoldva
- Vakolt falak, padló aljzatkiegyenlítve
- Antracit színű fém ablakok és erkélyajtók
- Bejárati ajtó
- Beltéri ajtók, konyhabútor, gardrób, csillár NINCS az árban
- Kert: durva tereprendezés
- Teraszok, loggiák burkolat nélkül
Kulcsrakész árak – A, B és C épület
- Lakás: 950.000 Ft/m²
- Loggia: 475.000 Ft/m²
- Terasz: 200.000 Ft/m²
- Kert: 19.000 Ft/m²
- Előkert: 5.000 Ft/m²
- Parkoló: 2.000.000 Ft
Kulcsrakész felszereltség:
- Standard burkolatok (parketta + kerámia)
- Fehér falfestés
- Bejárati és beltéri ajtók (fa, magasfényű fehér)
- Antracit fém ablakok, erkélyajtók
- Olasz bojler
- Elektromos törölközőszárítós radiátor a fürdőben
- Épített zuhanytálca + zuhanyfal
- Mosdó + csaptelep
- Loggiák és teraszok kerámia burkolattal
- Kapcsolók, konnektorok (fehér)
- Konyhabútor, gardrób és csillár nincs az árban
- Kert durva tereprendezve
Fűtés:
Gree Pro Comfort 2,5–3,5 kW, fűtésre optimalizált klímák.

Hirdetés feltöltve: 2025. 10. 09. Utoljára módosítva: 2025. 11. 29.

2 szobás téglalakások ára Komáromban

Ebből az összehasonlításból megtudhatod, hogyan viszonyul a lakás ára a környékbeli téglalakások átlagos árához. Ez nem azt jelenti, hogy ennyivel olcsóbb vagy drágább, mint amennyit a lakás ér, hanem hogy ennyivel tér el a környékbeli átlagtól.

Ennek a m² ára
Komárom m² ár
1171 e Ft
810 e Ft -45%
Ennek az ára
Komárom átlagár
60.888 M Ft m Ft
41.2 m Ft -48%

Az ingatlan elhelyezkedése

Cím: Komárom, földszint

Eladó téglalakások a környékről

Eladó téglalakás
Eladó téglalakás

Esztergom, Vaskapui út

99.9 M Ft
4 szoba
140 m2
Eladó téglalakás
Eladó téglalakás

Komárom, Mártírok útja

33.946 M Ft
2 szoba
43 m2
Eladó téglalakás
Eladó téglalakás

Komárom

24.75 M Ft
1 szoba
33 m2
Eladó téglalakás
Eladó téglalakás

Komárom, Mártírok útja

43.477 M Ft
2 szoba
50 m2
Eladó téglalakás
Eladó téglalakás

Komárom

39.75 M Ft
2 szoba
53 m2
Eladó téglalakás
Eladó téglalakás

Komárom, Mártírok útja

34.02 M Ft
2 szoba
48 m2
Eladó téglalakás
Eladó téglalakás

Komárom, Mártírok útja

33.946 M Ft
2 szoba
43 m2
Eladó téglalakás
Eladó téglalakás

Komárom, Mártírok útja

27.658 M Ft
1 szoba
34 m2
Eladó téglalakás
Eladó téglalakás

Esztergom, Vaskapui út

99.9 M Ft
4 szoba
140 m2
Eladó téglalakás
Eladó téglalakás

Komárom, Mártírok útja

34.02 M Ft
2 szoba
48 m2
Eladó téglalakás
Eladó téglalakás

Komárom, Mártírok útja

46.8 M Ft
2 szoba
65 m2
Eladó téglalakás
Eladó téglalakás

Komárom, Mártírok útja

39.823 M Ft
2 szoba
52 m2
Eladó téglalakás
Eladó téglalakás

Komárom, Városi

86.06 M Ft
2 szoba
73 m2
Eladó téglalakás
Eladó téglalakás

Komárom

83 M Ft
3 szoba
104 m2
Eladó téglalakás
Eladó téglalakás

Komárom, Mártírok útja

26.166 M Ft
1 szoba
37 m2
Eladó téglalakás
Eladó téglalakás

Tatabánya, Kertváros, Kamilla utca

75 M Ft
4 szoba
114 m2
Eladó téglalakás
Eladó téglalakás

Dorog

89 M Ft
2 szoba
150 m2
Eladó téglalakás
Eladó téglalakás

Komárom, Mártírok útja

46.8 M Ft
2 szoba
65 m2
Eladó téglalakás
Eladó téglalakás

Komárom

83 M Ft
3 szoba
104 m2
Eladó téglalakás
Eladó téglalakás

Tatabánya

48.6 M Ft
3 szoba
56 m2
Eladó téglalakás
Eladó téglalakás

Nyergesújfalu, Kossuth Lajos utca

82.9 M Ft
3 szoba
80 m2
Eladó téglalakás
Eladó téglalakás

Komárom, Mártírok útja

36.225 M Ft
47 m2
Eladó téglalakás
Eladó téglalakás

Komárom, Városi

38.9 M Ft
1 szoba
43 m2
Eladó téglalakás
Eladó téglalakás

Komárom, Mártírok útja

25.746 M Ft
36 m2

Falusi CSOK ingatlanok

Eladó családi ház
Eladó családi ház

Iváncsa

73.9 M Ft
1 + 3 szoba
97 m2
Eladó családi ház
Eladó családi ház

Mezőkeresztes

32.5 M Ft
2 szoba
68 m2
Eladó családi ház
Eladó családi ház

Hahót

64.9 M Ft
5 szoba
118 m2
Eladó családi ház
Eladó családi ház

Egerszólát

45 M Ft
3 szoba
120 m2
Eladó ikerház
Eladó ikerház

Tápióbicske

28.5 M Ft
4 szoba
74 m2
Eladó családi ház
Eladó családi ház

Csemő

16 M Ft
2 szoba
46 m2
Eladó családi ház
Eladó családi ház

Hernádnémeti

18.9 M Ft
2 szoba
62 m2
Eladó családi ház
Eladó családi ház

Verseg

84.9 M Ft
6 szoba
152 m2