Astora Olive Club House

Eladó téglalakás
Keszthely

+ 9 kép 1/12
62 179 000 Ft62.179 M Ft 1 295 396 Ft/m2
2 szoba
48 m2
építés éve:2026

Részletes adatok

Fűtés: Egyéb
Parkolás: Garázs
Közmű: Víz, Villany, Csatorna
Energetikai besorolás: Nem adta meg a hirdető

Az OTP Bank lakáshitel ajánlataFizetett hirdetés

+36 70 703
Németh Zsuzsanna
referens

Érdekel az OTP Bank kedvezményes lakáshitel ajánlata? *

* A kérdésre „Igen” válasz bejelölése esetén, az „Üzenet küldése” gombra kattintva kijelentem, hogy az OTP Bank Nyrt. Adatkezelési tájékoztatójának tartalmát megismertem és tudomásul vettem.

Eladó téglalakás leírása

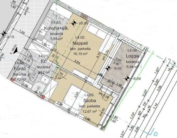
Lido Home Keszthelyi irodája eladásra kínál ÚJ ÉPÍTÉSŰ LAKÁSOKAT Keszthely Központi részén! Legyen az Öné a BALATON kulturális fővárosában KESZTHELYEN egy újépítésű LAKÁS!Lakáskínálat: A projektben 43–76 m² közötti alapterületű lakások érhetők el, különböző elrendezésekkel. Átadás: 2026 év vége Kiemelt lakás – 1. emelet 4 lakása -Alapterület: 47,83 nm -Loggai: 5,94 nm – tágas tér a pihenéshez -Kulcsrakész ár: 62.179.000 Ft -nappali + 1 hálószoba, Konyha - étkezővel, fürdőszoba wc-vel, előszoba Minden lakás világos, jól átgondolt térszervezéssel készül, így akár fiatal pároknak, családoknak vagy befektetőknek is ideális választás.Műszaki tartalom és minőség: A lakások nemcsak esztétikusak, hanem energiatakarékosak és időtállóak is: -30 cm vázkerámia falazat + 15 cm homlokzati hőszigetelés -Monolit vasbeton födém és lemezalap -Házközponti hőszivattyús rendszer -Padlófűtés mindenhol + hűtő-fűtő klíma minden lakásban -Fürdőben törölközőszárítós radiátor pluszba kérhető, de alapban ott is padlófütés -3 rétegű üvegezésű, 5 légkamrás nyílászárók -Motoros redőny és szúnyogháló előkészítéssel -Lakásonként 32A Parkolás és tároló: A kényelmes mindennapokat szolgálja teremgarázs, ahol 27 autó kap helyet -teremgarázs beálló 6M Miért érdemes most dönteni? -Az értékesítés elindult – a legjobb lakások gyorsan elkelnek -Rugalmasság a fizetési és befejezési feltételekben -Korszerű, energiatakarékos otthon hosszú távú értékkel -Új építésű projekt, amely magas minőséget és kényelmet garantál Ne maradjon le erről az egyedülálló lehetőségről! Hívjon minket a részletekért, és foglalja le új, modern otthonát időben! Amennyiben a LIDO HOME által kínált Keszthelyen található lakás vagy bármely a kínálatunkban található ingatlan felkeltette érdeklődését hívjon a megadott telefonszámon. Vásárolna, de nincs rá keret? Kollégám díjmentes, bank semleges hitel ügyintézéssel áll rendelkezésére. LIDO HOME - Ingatlanok egy életen át!

Hirdetés feltöltve: 2025. 10. 03. Utoljára módosítva: 2025. 11. 02.

2 szobás téglalakások ára Keszthelyen

Ebből az összehasonlításból megtudhatod, hogyan viszonyul a lakás ára a környékbeli téglalakások átlagos árához. Ez nem azt jelenti, hogy ennyivel olcsóbb vagy drágább, mint amennyit a lakás ér, hanem hogy ennyivel tér el a környékbeli átlagtól.

Ennek a m² ára
Keszthely m² ár
1295 e Ft
1245 e Ft -4%
Ennek az ára
Keszthely átlagár
62.179 M Ft m Ft
71.5 m Ft 13%

Az ingatlan elhelyezkedése

Cím: Keszthely

Eladó téglalakások a környékről

Eladó téglalakás
Eladó téglalakás

Keszthely, Entz Géza sétány 11-13

370 M Ft
4 szoba
228 m2
Eladó téglalakás
Eladó téglalakás

Keszthely, Entz Géza sétány 11-13

112 M Ft
3 szoba
75 m2
Eladó téglalakás
Eladó téglalakás

Keszthely, Entz Géza sétány 11-13

82 M Ft
2 szoba
60 m2
Eladó téglalakás
Eladó téglalakás

Keszthely, Entz Géza sétány 11-13

129 M Ft
3 szoba
96 m2
Eladó téglalakás
Eladó téglalakás

Keszthely, Entz Géza sétány 11-13

112 M Ft
3 szoba
75 m2
Eladó téglalakás
Eladó téglalakás

Keszthely, Entz Géza sétány 11-13

96.5 M Ft
3 szoba
75 m2
Eladó téglalakás
Eladó téglalakás

Keszthely, Entz Géza sétány 11-13

80 M Ft
2 szoba
60 m2
Eladó téglalakás
Eladó téglalakás

Keszthely, Entz Géza sétány 11-13

82 M Ft
2 szoba
60 m2
Eladó téglalakás
Eladó téglalakás

Keszthely, Entz Géza sétány 11-13

80 M Ft
2 szoba
60 m2
Eladó téglalakás
Eladó téglalakás

Keszthely, Entz Géza sétány 11-13

114 M Ft
3 szoba
76 m2
Eladó téglalakás
Eladó téglalakás

Keszthely, Entz Géza sétány 11-13

360 M Ft
4 szoba
224 m2
Eladó téglalakás
Eladó téglalakás

Keszthely, Entz Géza sétány 11-13

159 M Ft
3 szoba
75 m2
Eladó téglalakás
Eladó téglalakás

Keszthely, Entz Géza sétány 11-13

104 M Ft
3 szoba
82 m2
Eladó téglalakás
Eladó téglalakás

Keszthely, Entz Géza sétány 11-13

199 M Ft
4 szoba
121 m2
Eladó téglalakás
Eladó téglalakás

Keszthely, Entz Géza sétány 11-13

99.9 M Ft
3 szoba
76 m2
Eladó téglalakás
Eladó téglalakás

Keszthely, Entz Géza sétány 11-13

159 M Ft
3 szoba
75 m2
Eladó téglalakás
Eladó téglalakás

Keszthely, Entz Géza sétány 11-13

99.9 M Ft
3 szoba
76 m2
Eladó téglalakás
Eladó téglalakás

Keszthely, Entz Géza sétány 11-13

360 M Ft
4 szoba
224 m2
Eladó téglalakás
Eladó téglalakás

Keszthely, Entz Géza sétány 11-13

96.5 M Ft
3 szoba
75 m2
Eladó téglalakás
Eladó téglalakás

Keszthely, Entz Géza sétány 11-13

370 M Ft
4 szoba
228 m2
Eladó téglalakás
Eladó téglalakás

Keszthely, Entz Géza sétány 11-13

71.5 M Ft
2 szoba
60 m2
Eladó téglalakás
Eladó téglalakás

Keszthely, Entz Géza sétány 11-13

80 M Ft
2 szoba
60 m2
Eladó téglalakás
Eladó téglalakás

Keszthely, Entz Géza sétány 11-13

81 M Ft
2 szoba
60 m2
Eladó téglalakás
Eladó téglalakás

Keszthely, Entz Géza sétány 11-13

129 M Ft
3 szoba
96 m2

Falusi CSOK ingatlanok

Eladó családi ház
Eladó családi ház

Sarud

17 M Ft
3 szoba
94 m2
Eladó családi ház
Eladó családi ház

Vitnyéd, Petőfi Sándor utca 3

16.71 M Ft
1 + 1 szoba
99 m2
Eladó családi ház
Eladó családi ház

Marcaltő

26 M Ft
3 szoba
103 m2
Eladó ikerház
Eladó ikerház

Balatonakali

129 M Ft
4 szoba
145 m2
Eladó családi ház
Eladó családi ház

Kenyeri

39.9 M Ft
3 szoba
94 m2
Eladó családi ház
Eladó családi ház

Iváncsa

73.9 M Ft
1 + 3 szoba
97 m2
Eladó családi ház
Eladó családi ház

Tápiószőlős

69 M Ft
3 szoba
77 m2
Eladó családi ház
Eladó családi ház

Abaújszántó

19.99 M Ft
3 szoba
84 m2