River Life

Eladó téglalakás
Hegyeshalom, 1. emelet

Figyelem!

Ez az ingatlan a 2019.07.01-től induló falusi CSOK által támogatott településen található

1/2
31 890 000 Ft31.89 M Ft 937 941 Ft/m2
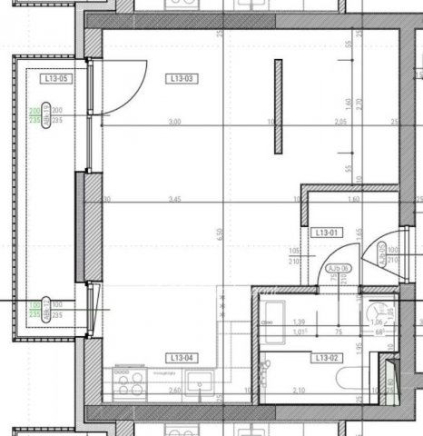
1 szoba
34 m²
1. emelet
építés éve:2026

Részletes adatok

Fűtés: Egyéb
Emelet: 1. emelet
Energetikai besorolás: A

Az OTP Bank lakáshitel ajánlataFizetett hirdetés

+36 30 225
Kasznár József
referens

Érdekel az OTP Bank kedvezményes lakáshitel ajánlata? *

* A kérdésre „Igen” válasz bejelölése esetén, az „Üzenet küldése” gombra kattintva kijelentem, hogy az OTP Bank Nyrt. Adatkezelési tájékoztatójának tartalmát megismertem és tudomásul vettem.

Eladó téglalakás leírása

Hegyeshalom új lakóparkjában épülő, 18 lakásos társasházi projekt, ahol 30-74 m2 közötti, modern kialakítású, változatos alaprajzú lakások közül választhat.
Lakástípusok:
- Kertkapcsolatos földszinti lakások akár 400 m2-es telekhányaddal
- Teraszos lakások az első emeleten
- Penthouse jellegű lakások nagy terasszal a második emeleten

Nyugodt, zöld környezet, kiváló műszaki tartalom:
Leier therm falazat 30cm, 15 cm AUSTROTHERM hőszigetelés, BAUMIT homlokzat
- 3 rétegű 6 kamrás KÖMMERLING nyílászárók
- Padlófűtés, gáz/levegő-víz hibrid hő- szivattyús rendszer
- Elektromos redőny és klíma előkészítés
- Lakásonként önálló mérés, egyedi szabályozás
Kiváló elhelyezkedés:
- Gyors kapcsolat az M1 autópályához és a határhoz
- Mosonmagyaróvár és Bécs rövid időn belül elérhető

A lakásokhoz tároló, garázs és kocsibeálló is vásárolható.

Finanszírozásban is segítünk:
- Ingyenes előszűrés
- Gyorsított ügyintézés, akár banki nyitva tartáson túl
- Az ingatlan CSOK Pluszra és Otthon Start hitelre is alkalmas

Felkeltetem érdeklődését hívjon!

Hivatkozási szám: M322144

Referencia szám: M322144-ZE

Hirdetés feltöltve: 2026. 02. 27. Utoljára módosítva: 2026. 02. 27.

1 szobás téglalakások ára Hegyeshalomban

Ebből az összehasonlításból megtudhatod, hogyan viszonyul a lakás ára a környékbeli téglalakások átlagos árához. Ez nem azt jelenti, hogy ennyivel olcsóbb vagy drágább, mint amennyit a lakás ér, hanem hogy ennyivel tér el a környékbeli átlagtól.

Ennek a m² ára
Hegyeshalom m² ár
938 e Ft
1087 e Ft 14%
Ennek az ára
Hegyeshalom átlagár
31.89 M Ft m Ft
35.6 m Ft 10%

Az ingatlan elhelyezkedése

Cím: Hegyeshalom, 1. emelet

Eladó téglalakások a környékről

Hegyeshalom
Eladó téglalakás

Hegyeshalom

58 M Ft
3 szoba
59 m²
Győr
Eladó téglalakás

Győr

71.978 M Ft
3 szoba
71 m²
Nagycenk
Eladó téglalakás

Nagycenk

59.9 M Ft
1 + 2 szoba
54 m²
Hegyeshalom
Eladó téglalakás

Hegyeshalom

41.18 M Ft
2 szoba
38 m²
Győr
Eladó téglalakás

Győr

199.99 M Ft
3 + 1 szoba
160 m²
Hegyeshalom
Eladó téglalakás

Hegyeshalom

45.26 M Ft
2 szoba
44 m²
Győr
Eladó téglalakás

Győr

54.99 M Ft
3 szoba
64 m²
Győr
Eladó téglalakás

Győr

95 M Ft
4 szoba
94 m²
Hegyeshalom
Eladó téglalakás

Hegyeshalom

44.03 M Ft
2 szoba
42 m²
Győr
Eladó téglalakás

Győr

38.99 M Ft
2 szoba
43 m²
Hegyeshalom
Eladó téglalakás

Hegyeshalom

36.82 M Ft
1 szoba
32 m²
Sopron
Eladó téglalakás

Sopron

84.99 M Ft
3 + 1 szoba
56 m²
Hegyeshalom
Eladó téglalakás

Hegyeshalom

41.59 M Ft
2 szoba
38 m²
Hegyeshalom
Eladó téglalakás

Hegyeshalom

21.9 M Ft
63 m²
Hegyeshalom
Eladó téglalakás

Hegyeshalom

34.92 M Ft
1 szoba
28 m²
Győr
Eladó téglalakás

Győr

38.99 M Ft
2 szoba
46 m²
Hegyeshalom
Eladó téglalakás

Hegyeshalom

35 M Ft
43 m²
43 m²
Győr
Eladó téglalakás

Győr

48.99 M Ft
3 szoba
57 m²
Győr
Eladó téglalakás

Győr

38.99 M Ft
2 szoba
43 m²
Hegyeshalom
Eladó téglalakás

Hegyeshalom

44.03 M Ft
2 szoba
42 m²
Hegyeshalom
Eladó téglalakás

Hegyeshalom

44.03 M Ft
2 szoba
42 m²
Sopron
Eladó téglalakás

Sopron

73.9 M Ft
2 szoba
49 m²
Győr
Eladó téglalakás

Győr

48.99 M Ft
3 szoba
57 m²
Hegyeshalom
Eladó téglalakás

Hegyeshalom

38.71 M Ft
2 szoba
37 m²

Falusi CSOK ingatlanok

Galgahévíz
Eladó családi ház

Galgahévíz

135 M Ft
26 szoba
1091 m²
Kemeneshőgyész
Eladó családi ház

Kemeneshőgyész

8 M Ft
2 szoba
60 m²
Bakonycsernye
Eladó családi ház

Bakonycsernye

39 M Ft
3 szoba
350 m²
Tárkány
Eladó családi ház

Tárkány

5.9 M Ft
3 szoba
80 m²
Magyarpolány
Eladó családi ház

Magyarpolány

90 M Ft
2 szoba
70 m²
Nyírbogdány
Eladó családi ház

Nyírbogdány

31.55 M Ft
1 + 2 szoba
73 m²
Maráza
Eladó családi ház

Maráza

29.9 M Ft
3 szoba
96 m²
Nyáregyháza
Eladó családi ház

Nyáregyháza

68.9 M Ft
3 szoba
143 m²

Falusi CSOK ingatlanok

Magyarpolány
Eladó családi ház

Magyarpolány

90 M Ft
2 szoba
70 m²
Bodrogkisfalud
Eladó családi ház

Bodrogkisfalud

59.99 M Ft
5 + 1 szoba
122 m²
Pécsvárad
Eladó családi ház

Pécsvárad

140 M Ft
2 szoba
79 m²
Somogyhárságy
Eladó családi ház

Somogyhárságy

22.9 M Ft
3 szoba
130 m²
Mezőzombor
Eladó családi ház

Mezőzombor

14.6 M Ft
3 szoba
81 m²
Szigliget
Eladó családi ház

Szigliget

299 M Ft
3 szoba
95 m²
Kenyeri
Eladó családi ház

Kenyeri

21.8 M Ft
2 szoba
75 m²
Nyírbogdány
Eladó családi ház

Nyírbogdány

31.55 M Ft
1 + 2 szoba
73 m²