City Pearl

Eladó téglalakás
Hegyeshalom, 1. emelet

Figyelem!

Ez az ingatlan a 2019.07.01-től induló falusi CSOK által támogatott településen található

1/2
45 490 000 Ft45.49 M Ft 947 708 Ft/m2
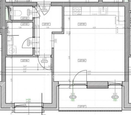
2 szoba
48 m²
1. emelet
építés éve:2026

Részletes adatok

Fűtés: Egyéb
Emelet: 1. emelet
Energetikai besorolás: A+

Az OTP Bank lakáshitel ajánlataFizetett hirdetés

+36 70 907
Borsó Attiláné
referens

Érdekel az OTP Bank kedvezményes lakáshitel ajánlata? *

* A kérdésre „Igen” válasz bejelölése esetén, az „Üzenet küldése” gombra kattintva kijelentem, hogy az OTP Bank Nyrt. Adatkezelési tájékoztatójának tartalmát megismertem és tudomásul vettem.

Eladó téglalakás leírása

Új építésű, prémium lakások Hegyeshalomban már leköthetők!

Hegyeshalom új lakóparkjában épülő, 18 lakásos társasházi projekt, ahol 30-74 m2 közötti, modern kialakítású, változatos alaprajzú lakások közül választhat.

Lakástípusok:
- Kertkapcsolatos földszinti lakások akár 400 m2-es telekhányaddal
- Teraszos lakások az első emeleten
- Penthouse jellegű lakások nagy terasszal a második emeleten

Nyugodt, zöld környezet, kiváló műszaki tartalom:
Leier therm falazat 30cm, 15 cm AUSTROTHERM hőszigetelés, BAUMIT homlokzat
- 3 rétegű 6 kamrás KÖMMERLING nyílászárók
- Padlófűtés, gáz/levegő-víz hibrid hő- szivattyús rendszer
- Elektromos redőny és klíma előkészítés
- Lakásonként önálló mérés, egyedi szabályozás

Kiváló elhelyezkedés:
- Gyors kapcsolat az M1 autópályához és a határhoz
- Mosonmagyaróvár és Bécs rövid időn belül elérhető

A lakásokhoz tároló, garázs és kocsibeálló is vásárolható.

Finanszírozásban is segítünk:
- Ingyenes előszűrés
- Gyorsított ügyintézés, akár banki nyitva tartáson túl
- Az ingatlan CSOK Pluszra és Otthon Start hitelre is alkalmas

Felkeltetem érdeklődését hívjon!
Megvásárlása számtalan lehetőséget tartogat Önnek és családjának.
Igény szerint díjmentes, teljes körű hitel ügyintézést biztosítunk, egyedi kedvezményekkel az OTP Csoport szakértelmével.
Felkeltettem érdeklődését keressen alábbi elérhetőségemen. +36709078007

Referencia szám: M322126-ZE

Hirdetés feltöltve: 2026. 02. 26. Utoljára módosítva: 2026. 02. 26.

2 szobás téglalakások ára Hegyeshalomban

Ebből az összehasonlításból megtudhatod, hogyan viszonyul a lakás ára a környékbeli téglalakások átlagos árához. Ez nem azt jelenti, hogy ennyivel olcsóbb vagy drágább, mint amennyit a lakás ér, hanem hogy ennyivel tér el a környékbeli átlagtól.

Ennek a m² ára
Hegyeshalom m² ár
948 e Ft
1025 e Ft 8%
Ennek az ára
Hegyeshalom átlagár
45.49 M Ft m Ft
44.3 m Ft -3%

Az ingatlan elhelyezkedése

Cím: Hegyeshalom, 1. emelet

Eladó téglalakások a környékről

Sopron
Eladó téglalakás

Sopron

84.99 M Ft
3 + 1 szoba
56 m²
Hegyeshalom
Eladó téglalakás

Hegyeshalom

36.82 M Ft
1 szoba
32 m²
Sopron
Eladó téglalakás

Sopron

73.9 M Ft
2 szoba
49 m²
Hegyeshalom
Eladó téglalakás

Hegyeshalom

36.82 M Ft
1 szoba
32 m²
Győr
Eladó téglalakás

Győr

89 M Ft
4 szoba
112 m²
Hegyeshalom
Eladó téglalakás

Hegyeshalom

41.18 M Ft
2 szoba
38 m²
Sopron, Gólya utca
Eladó téglalakás

Sopron

46.9 M Ft
2 szoba
44 m²
Győr
Eladó téglalakás

Győr

71.978 M Ft
3 szoba
71 m²
Sopron
Eladó téglalakás

Sopron

96.9 M Ft
3 szoba
72 m²
Győr
Eladó téglalakás

Győr

38.99 M Ft
2 szoba
43 m²
Győr
Eladó téglalakás

Győr

54.99 M Ft
3 szoba
64 m²
Győr
Eladó téglalakás

Győr

199.99 M Ft
3 + 1 szoba
160 m²
Győr
Eladó téglalakás

Győr

48.99 M Ft
3 szoba
57 m²
Nagycenk
Eladó téglalakás

Nagycenk

68.9 M Ft
1 + 2 szoba
62 m²
Hegyeshalom
Eladó téglalakás

Hegyeshalom

38.71 M Ft
2 szoba
37 m²
Hegyeshalom
Eladó téglalakás

Hegyeshalom

45.26 M Ft
2 szoba
44 m²
Hegyeshalom
Eladó téglalakás

Hegyeshalom

41.59 M Ft
2 szoba
42 m²
Hegyeshalom, Szent István utca
Eladó téglalakás

Hegyeshalom

30.175 M Ft
1 szoba
35 m²
Győr
Eladó téglalakás

Győr

38.99 M Ft
2 szoba
43 m²
Hegyeshalom
Eladó téglalakás

Hegyeshalom

35 M Ft
43 m²
43 m²
Hegyeshalom, Szent István utca
Eladó téglalakás

Hegyeshalom

36.7 M Ft
1 szoba
43 m²
Hegyeshalom
Eladó téglalakás

Hegyeshalom

34.92 M Ft
1 szoba
28 m²
Hegyeshalom, Szent István utca
Eladó téglalakás

Hegyeshalom

30.728 M Ft
1 szoba
36 m²
Hegyeshalom
Eladó téglalakás

Hegyeshalom

41.59 M Ft
2 szoba
38 m²

Falusi CSOK ingatlanok

Herend
Eladó téglalakás

Herend

59.99 M Ft
3 szoba
69 m²
Kálmánháza
Eladó családi ház

Kálmánháza

54.9 M Ft
3 szoba
138 m²
Balatonszemes, Ady E. utca 6
Eladó téglalakás

Balatonszemes

108.9 M Ft
2 + 1 szoba
63 m²
Nyáregyháza
Eladó családi ház

Nyáregyháza

68.9 M Ft
3 szoba
143 m²
Halimba
Eladó családi ház

Halimba

59.9 M Ft
6 szoba
182 m²
Bag
Eladó családi ház

Bag

16.9 M Ft
6 szoba
160 m²
Tiszasziget, Sziget lakópark
Eladó sorház

Tiszasziget

33.9 M Ft
2 szoba
48 m²
Tiszasziget, Sziget u
Eladó téglalakás

Tiszasziget

37.5 M Ft
2 szoba
41 m²

Falusi CSOK ingatlanok

Újhartyán
Eladó családi ház

Újhartyán

79.9 M Ft
3 szoba
72 m²
Tihany
Eladó családi ház

Tihany

165 M Ft
6 szoba
133 m²
Kőtelek
Eladó családi ház

Kőtelek

25 M Ft
2 szoba
90 m²
Lengyel
Eladó családi ház

Lengyel

58.125 M Ft
2 szoba
135 m²
Bugac
Eladó családi ház

Bugac

90 M Ft
5 szoba
230 m²
Szentkirályszabadja
Eladó családi ház

Szentkirályszabadja

119.9 M Ft
6 szoba
185 m²
Magyarpolány
Eladó családi ház

Magyarpolány

90 M Ft
2 szoba
70 m²
Nyírbogdány
Eladó családi ház

Nyírbogdány

48 M Ft
4 szoba
135 m²