City Pearl

Eladó téglalakás
Harkány, Sorház

+ 12 kép 1/15
21 900 000 Ft21.9 M Ft 842 308 Ft/m2
1 szoba
26 m2
Sorház
építés éve:1970

Részletes adatok

Fűtés: Elektromos
Emelet: 3. emelet
Energetikai besorolás: Nem adta meg a hirdető

Az OTP Bank lakáshitel ajánlataFizetett hirdetés

+36 30 819
Kőrösi Csaba
referens

Érdekel az OTP Bank kedvezményes lakáshitel ajánlata? *

* A kérdésre „Igen” válasz bejelölése esetén, az „Üzenet küldése” gombra kattintva kijelentem, hogy az OTP Bank Nyrt. Adatkezelési tájékoztatójának tartalmát megismertem és tudomásul vettem.

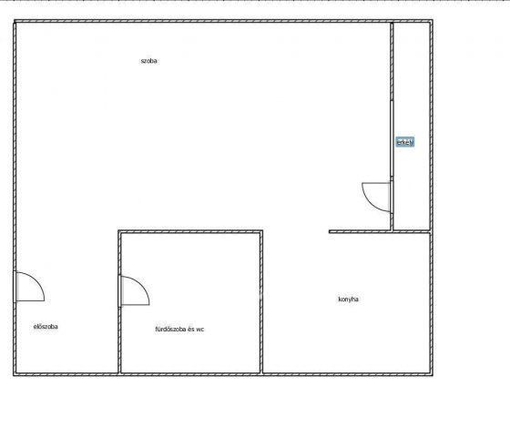
Eladó téglalakás leírása

Eladó Harkányban egy tágas erkélyes, 3. emeleti, 1 szobás, 26 m2-es felújított apartman. Ideális választás akár nyaralásra, akár állandó lakhatásra, vagy befektetés céljára. Az ingatlan világos, barátságos elosztású: a szoba, konyha, fürdő-WC mellett egy kényelmes, tágas erkély is tartozik hozzá, ahol egy kis reggeli kávé vagy esti pihenés is igazi élmény lehet. A lakás új, modern műanyag nyílászárókkal és redőnyökkel felszerelt, a kényelmet pedig a korszerű hűtő-fűtő klíma biztosítja. A meleg vizet villanybojler adja, ami alacsony fenntartást tesz lehetővé.

A társasház egy zárt, biztonságos udvarban helyezkedik el, ahol a lakóknak parkoló is jár, így az autósok számára sem kell a parkolás miatt aggódni. A környék rendezett és csendes, mégis minden fontos szolgáltatás, bolt, közlekedés és a helyi gyógyfürdő egy-két perc sétára található: ideális elhelyezkedés mindennapi használatra, hétvégi kikapcsolódásra vagy üzleti céllal történő kiadásra is.

Ez az apartman remek lehetőséget kínál azoknak, akik egy könnyen fenntartható, nyugodt, mégis praktikus elhelyezkedésű ingatlant keresnek, legyen az saját nyaraló, állandó otthon vagy befektetési cél.

(M318834)

Hirdetés feltöltve: 2026. 01. 23. Utoljára módosítva: 2026. 01. 23.

1 szobás téglalakások ára Harkányban

Ebből az összehasonlításból megtudhatod, hogyan viszonyul a lakás ára a környékbeli téglalakások átlagos árához. Ez nem azt jelenti, hogy ennyivel olcsóbb vagy drágább, mint amennyit a lakás ér, hanem hogy ennyivel tér el a környékbeli átlagtól.

Ennek a m² ára
Harkány m² ár
842 e Ft
766 e Ft -10%
Ennek az ára
Harkány átlagár
21.9 M Ft m Ft
19.6 m Ft -12%

Az ingatlan elhelyezkedése

Cím: Harkány, Sorház

Eladó téglalakások a környékről

Eladó téglalakás
Eladó téglalakás

Pécs

81.7 M Ft
4 szoba
86 m2
Eladó téglalakás
Eladó téglalakás

Harkány, Bartók Béla utca

14 M Ft
1 szoba
27 m2
Eladó téglalakás
Eladó téglalakás

Harkány, Bartók Béla utca

17.9 M Ft
1 szoba
25 m2
Eladó téglalakás
Eladó téglalakás

Harkány

44.9 M Ft
2 szoba
52 m2
Eladó téglalakás
Eladó téglalakás

Harkány, Than Károly utca

77 M Ft
3 szoba
77 m2
Eladó téglalakás
Eladó téglalakás

Harkány, Deák Ferenc utca

49.99 M Ft
3 szoba
51 m2
Eladó téglalakás
Eladó téglalakás

Harkány, Bartók Béla utca

28.9 M Ft
1 + 1 szoba
40 m2
Eladó téglalakás
Eladó téglalakás

Harkány, Vasút utca

29.5 M Ft
2 szoba
108 m2
Eladó téglalakás
Eladó téglalakás

Harkány

14 M Ft
1 szoba
27 m2
Eladó téglalakás
Eladó téglalakás

Pécs, Szigeti külváros, Hungária utca

29.9 M Ft
1 szoba
41 m2
Eladó téglalakás
Eladó téglalakás

Harkány

29.5 M Ft
2 szoba
108 m2
Eladó téglalakás
Eladó téglalakás

Pécs

69.93 M Ft
2 szoba
54 m2
Eladó téglalakás
Eladó téglalakás

Pécs

51.345 M Ft
2 szoba
35 m2
Eladó téglalakás
Eladó téglalakás

Pécs

64.011 M Ft
2 szoba
52 m2
Eladó téglalakás
Eladó téglalakás

Harkány, Bartók Béla utca

12.4 M Ft
1 szoba
17 m2
Eladó téglalakás
Eladó téglalakás

Pécs

63.588 M Ft
2 szoba
52 m2
Eladó téglalakás
Eladó téglalakás

Harkány, Bartók Béla utca

14.2 M Ft
1 szoba
26 m2
Eladó téglalakás
Eladó téglalakás

Pécs

95.52 M Ft
3 szoba
62 m2
Eladó téglalakás
Eladó téglalakás

Harkány, Bartók Béla utca

16 M Ft
1 szoba
17 m2
Eladó téglalakás
Eladó téglalakás

Pécs, Belváros, Papnövelde utca

22.9 M Ft
1 szoba
28 m2
Eladó téglalakás
Eladó téglalakás

Harkány, Szabadság utca

55 M Ft
2 szoba
50 m2
Eladó téglalakás
Eladó téglalakás

Harkány

49.99 M Ft
3 szoba
51 m2
Eladó téglalakás
Eladó téglalakás

Pécs

58.09 M Ft
2 szoba
45 m2
Eladó téglalakás
Eladó téglalakás

Harkány

29.5 M Ft
2 szoba
108 m2

Falusi CSOK ingatlanok

Eladó családi ház
Eladó családi ház

Balatonfenyves

430 M Ft
4 szoba
274 m2
Eladó családi ház
Eladó családi ház

Törtel

39 M Ft
1 + 1 szoba
118 m2
Eladó családi ház
Eladó családi ház

Kenyeri

21.8 M Ft
2 szoba
75 m2
Eladó családi ház
Eladó családi ház

Töttös, Rákóczi utca

55.9 M Ft
4 szoba
129 m2
Eladó családi ház
Eladó családi ház

Egyed

24.9 M Ft
2 + 1 szoba
56 m2
Eladó családi ház
Eladó családi ház

Maráza

49.99 M Ft
4 szoba
130 m2
Eladó családi ház
Eladó családi ház

Tab

14.9 M Ft
3 szoba
110 m2
Eladó családi ház
Eladó családi ház

Szakmár

12.9 M Ft
3 + 1 szoba
90 m2