Kedves Felhasználónk! Rendszerfrissítés miatt az oldalunk 2026. február 9-én 12 órától várhatóan 20 óráig nem lesz elérhető. Köszönjük megértésed!
Astora Márvány8

Eladó téglalakás
Harkány

+ 12 kép 1/15
21 900 000 Ft21.9 M Ft 842 308 Ft/m2
1 szoba
26 m2
építés éve:1970

Részletes adatok

Állapot: Átlagos
Fűtés: Elektromos
Energetikai besorolás: Nem adta meg a hirdető

Az OTP Bank lakáshitel ajánlataFizetett hirdetés

+36 20 509
Szabó Ágnes
Pécs Király utca 75 - OTP Ingatlanpont Iroda

Érdekel az OTP Bank kedvezményes lakáshitel ajánlata? *

* A kérdésre „Igen” válasz bejelölése esetén, az „Üzenet küldése” gombra kattintva kijelentem, hogy az OTP Bank Nyrt. Adatkezelési tájékoztatójának tartalmát megismertem és tudomásul vettem.

Eladó téglalakás leírása

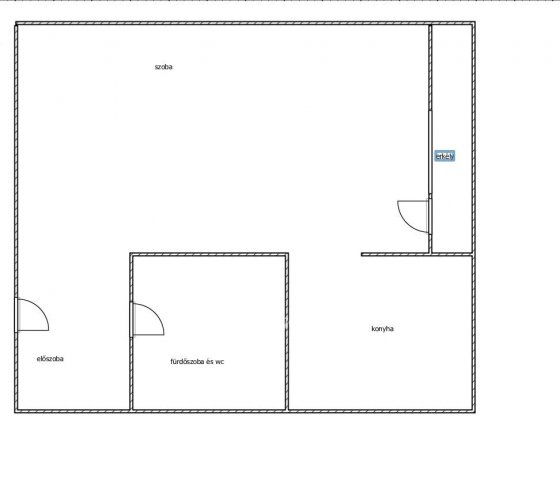
Eladó Harkányban egy tágas erkélyes, 3. emeleti, 1 szobás, 26 m?-es felújított apartman ? ideális választás akár nyaralásra, akár állandó lakhatásra, vagy befektetés céljára. Az ingatlan világos, barátságos elosztású: a szoba, konyha, fürdő-WC mellett egy kényelmes, tágas erkély is tartozik hozzá, ahol egy kis reggeli kávé vagy esti pihenés is igazi élmény lehet. A lakás új, modern műanyag nyílászárókkal és redőnyökkel felszerelt, a kényelmet pedig a korszerű hűtő-fűtő klíma biztosítja ? a meleg vizet villanybojler adja, ami alacsony fenntartást tesz lehetővé.

A társasház egy zárt, biztonságos udvarban helyezkedik el, ahol a lakóknak parkoló is jár ? így az autósok számára sem kell a parkolás miatt aggódni. A környék rendezett és csendes, mégis minden fontos szolgáltatás, bolt, közlekedés és a helyi gyógyfürdő egy-két perc sétára található: ideális elhelyezkedés mindennapi használatra, hétvégi kikapcsolódásra vagy üzleti céllal történő kiadásra is.

Ez az apartman remek lehetőséget kínál azoknak, akik egy könnyen fenntartható, nyugodt, mégis praktikus elhelyezkedésű ingatlant keresnek ? legyen az saját nyaraló, állandó otthon vagy befektetési cél.

Hirdetés feltöltve: 2025. 12. 06. Utoljára módosítva: 2026. 01. 13.

1 szobás téglalakások ára Harkányban

Ebből az összehasonlításból megtudhatod, hogyan viszonyul a lakás ára a környékbeli téglalakások átlagos árához. Ez nem azt jelenti, hogy ennyivel olcsóbb vagy drágább, mint amennyit a lakás ér, hanem hogy ennyivel tér el a környékbeli átlagtól.

Ennek a m² ára
Harkány m² ár
842 e Ft
794 e Ft -6%
Ennek az ára
Harkány átlagár
21.9 M Ft m Ft
20.1 m Ft -9%

Az ingatlan elhelyezkedése

Cím: Harkány

Eladó téglalakások a környékről

Eladó téglalakás
Eladó téglalakás

Harkány, Bartók Béla utca

16.8 M Ft
1 szoba
26 m2
Eladó téglalakás
Eladó téglalakás

Harkány

19.9 M Ft
1 szoba
22 m2
Eladó téglalakás
Eladó téglalakás

Harkány, Than Károly utca

77 M Ft
3 szoba
77 m2
Eladó téglalakás
Eladó téglalakás

Pécs

91.2 M Ft
4 szoba
96 m2
Eladó téglalakás
Eladó téglalakás

Pécs, Szigeti külváros, Hungária utca

29.9 M Ft
1 szoba
41 m2
Eladó téglalakás
Eladó téglalakás

Pécs

81.7 M Ft
4 szoba
86 m2
Eladó téglalakás
Eladó téglalakás

Harkány, Deák Ferenc utca

44.9 M Ft
3 szoba
65 m2
Eladó téglalakás
Eladó téglalakás

Harkány

29.5 M Ft
2 szoba
108 m2
Eladó téglalakás
Eladó téglalakás

Pécs

64.011 M Ft
2 szoba
52 m2
Eladó téglalakás
Eladó téglalakás

Harkány, Than Károly utca

71 M Ft
3 szoba
86 m2
Eladó téglalakás
Eladó téglalakás

Harkány, Bartók Béla utca

28.9 M Ft
1 + 1 szoba
40 m2
Eladó téglalakás
Eladó téglalakás

Harkány

29.5 M Ft
2 szoba
108 m2
Eladó téglalakás
Eladó téglalakás

Pécs

69.89 M Ft
1 szoba
51 m2
Eladó téglalakás
Eladó téglalakás

Pécs

95.52 M Ft
3 szoba
62 m2
Eladó téglalakás
Eladó téglalakás

Harkány, Bartók Béla utca

14.25 M Ft
1 szoba
17 m2
Eladó téglalakás
Eladó téglalakás

Harkány, Hársfa tér

69.9 M Ft
3 szoba
96 m2
Eladó téglalakás
Eladó téglalakás

Pécs

63.588 M Ft
2 szoba
52 m2
Eladó téglalakás
Eladó téglalakás

Pécs

63.9 M Ft
2 szoba
47 m2
Eladó téglalakás
Eladó téglalakás

Pécs

7.9 M Ft
1 szoba
26 m2
Eladó téglalakás
Eladó téglalakás

Harkány, Szabadság utca

55 M Ft
2 szoba
50 m2
Eladó téglalakás
Eladó téglalakás

Pécs

60.896 M Ft
2 szoba
48 m2
Eladó téglalakás
Eladó téglalakás

Pécs

62.7 M Ft
2 szoba
46 m2
Eladó téglalakás
Eladó téglalakás

Harkány, Hársfa tér

69.9 M Ft
3 szoba
60 m2
Eladó téglalakás
Eladó téglalakás

Harkány, Bartók Béla utca

17.9 M Ft
1 szoba
25 m2

Falusi CSOK ingatlanok

Eladó családi ház
Eladó családi ház

Szigetcsép

110 M Ft
3 szoba
137 m2
Eladó családi ház
Eladó családi ház

Kenyeri

21.8 M Ft
2 szoba
75 m2
Eladó családi ház
Eladó családi ház

Somogyszentpál

25.3 M Ft
3 szoba
80 m2
Eladó családi ház
Eladó családi ház

Elek

85.9 M Ft
5 szoba
274 m2
Eladó családi ház
Eladó családi ház

Bugac

90 M Ft
5 szoba
230 m2
Eladó családi ház
Eladó családi ház

Csemő

36.6 M Ft
1 szoba
48 m2
Eladó családi ház
Eladó családi ház

Kaposgyarmat

695 M Ft
6 szoba
610 m2
Eladó családi ház
Eladó családi ház

Bag

16.9 M Ft
6 szoba
160 m2