Aerogate Homes

Eladó téglalakás
Győr, 2. emelet

+ 17 kép 1/20
99 000 000 Ft99 M Ft 1 320 000 Ft/m2
3 szoba
75 m²
2. emelet
építés éve:2015

Részletes adatok

Fűtés: Gázkazán
Emelet: 2. emelet
Extrák: Lift
Energetikai besorolás: C

Az OTP Bank lakáshitel ajánlataFizetett hirdetés

+36 30 650
Vörös Brigitta
referens

Érdekel az OTP Bank kedvezményes lakáshitel ajánlata? *

* A kérdésre „Igen” válasz bejelölése esetén, az „Üzenet küldése” gombra kattintva kijelentem, hogy az OTP Bank Nyrt. Adatkezelési tájékoztatójának tartalmát megismertem és tudomásul vettem.

Eladó téglalakás leírása

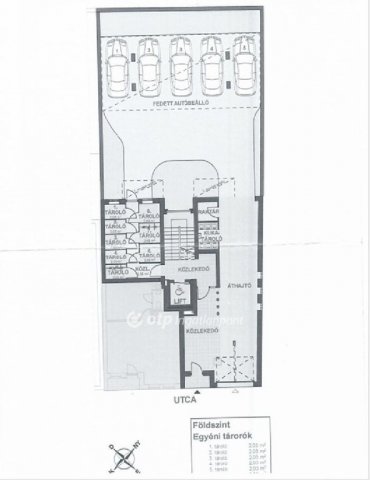
Eladásra kínálok egy közel 80 m2-es hasznos alapterülettel rendelkező, 3 szobás, 2. emeleti, erkélyes, modern belvárosi tégla lakást, a Tarcsay Vilmos utcában, amely a tágas, világos tereket és a kényelmes városi életet ötvözi. A lakás egy rendezett, modern társasházban található, kiváló infrastruktúrával, minden fontos szolgáltatás könnyen elérhető. Különlegessége, hogy soha nem lakták, így új tulajdonosa teljesen új állapotban veheti birtokba. Külön előnye a két erkély, összesen 7 m2 területtel, amelyek ideálisak pihenésre vagy reggeli kávézáshoz. A lakáshoz tartozik saját kocsibeálló és külön tároló, ami a belvárosban különösen nagy értéket képvisel.
A fedett parkoló és a földszinti tároló ára 6.000.000. Ft, amely kötelezően megvásárolandó a lakással.
Ha egy modern, értékálló belvárosi otthont keres, amely azonnal költözhető és minden adott a kényelmes élethez, ezt az ingatlant mindenképpen érdemes megnéznie.
Ideális választás saját otthonnak vagy befektetésnek is!

További információért és megtekintésért keressen bizalommal!

Referenciaszám: M324307

Hirdetés feltöltve: 2026. 04. 18. Utoljára módosítva: 2026. 04. 26.

3 szobás téglalakások ára Győrött

Ebből az összehasonlításból megtudhatod, hogyan viszonyul a lakás ára a környékbeli téglalakások átlagos árához. Ez nem azt jelenti, hogy ennyivel olcsóbb vagy drágább, mint amennyit a lakás ér, hanem hogy ennyivel tér el a környékbeli átlagtól.

Ennek a m² ára
Győr m² ár
1320 e Ft
1079 e Ft -22%
Ennek az ára
Győr átlagár
99 M Ft m Ft
77.5 m Ft -28%

Az ingatlan elhelyezkedése

Cím: Győr, 2. emelet

Eladó téglalakások a környékről

Győr
Eladó téglalakás

Győr

82.6 M Ft
4 szoba
101 m²
Győr
Eladó téglalakás

Győr

95 M Ft
4 szoba
94 m²
Győr
Eladó téglalakás

Győr

38.99 M Ft
2 szoba
43 m²
Győr
Eladó téglalakás

Győr

48.99 M Ft
3 szoba
57 m²
Győr
Eladó téglalakás

Győr

38.99 M Ft
2 szoba
46 m²
Sopron
Eladó téglalakás

Sopron

96.9 M Ft
3 szoba
72 m²
Győr
Eladó téglalakás

Győr

199.99 M Ft
3 + 1 szoba
160 m²
Győr
Eladó téglalakás

Győr

54.99 M Ft
3 szoba
64 m²
Győr
Eladó téglalakás

Győr

89 M Ft
4 szoba
112 m²
Győr
Eladó téglalakás

Győr

48.99 M Ft
3 szoba
57 m²
Győr
Eladó téglalakás

Győr

45.99 M Ft
1 szoba
57 m²
Győr
Eladó téglalakás

Győr

38.99 M Ft
2 szoba
46 m²
Győr
Eladó téglalakás

Győr

63.9 M Ft
2 szoba
0 m²
Sopron
Eladó téglalakás

Sopron

109 M Ft
5 szoba
130 m²
Hegyeshalom
Eladó téglalakás

Hegyeshalom

21.9 M Ft
63 m²
Győr
Eladó téglalakás

Győr

72.25 M Ft
4 szoba
84 m²
Nagycenk
Eladó téglalakás

Nagycenk

59.9 M Ft
1 + 2 szoba
54 m²
Sopron
Eladó téglalakás

Sopron

73.9 M Ft
2 szoba
49 m²
Győr
Eladó téglalakás

Győr

38.99 M Ft
2 szoba
46 m²
Győr
Eladó téglalakás

Győr

199.99 M Ft
3 + 1 szoba
160 m²
Győr
Eladó téglalakás

Győr

48.99 M Ft
3 szoba
57 m²
Győr
Eladó téglalakás

Győr

38.99 M Ft
2 szoba
43 m²
Győr
Eladó téglalakás

Győr

199.99 M Ft
3 + 1 szoba
160 m²
Győr, Sziget, Knézich utca
Eladó téglalakás

Győr

79 M Ft
3 szoba
98 m²

Falusi CSOK ingatlanok

Somogygeszti
Eladó családi ház

Somogygeszti

38.6 M Ft
3 + 1 szoba
98 m²
Berzence
Eladó családi ház

Berzence

40 M Ft
3 szoba
233 m²
Érpatak
Eladó családi ház

Érpatak

35 M Ft
4 szoba
160 m²
Kunadacs
Eladó családi ház

Kunadacs

80 M Ft
4 szoba
148 m²
Ganna
Eladó családi ház

Ganna

18.9 M Ft
2 szoba
70 m²
Nagykarácsony
Eladó családi ház

Nagykarácsony

34.9 M Ft
3 szoba
112 m²
Győrság
Eladó családi ház

Győrság

79.9 M Ft
4 szoba
92 m²
Badacsonytomaj
Eladó családi ház

Badacsonytomaj

285 M Ft
4 szoba
230 m²