Astora Olive Club House

Eladó téglalakás
Győr, 1. emelet

+ 1 kép 1/4
50 780 000 Ft50.78 M Ft 1 128 444 Ft/m2
2 szoba
45 m2
1. emelet
építés éve:2025

Részletes adatok

Fűtés: Egyéb
Közmű: Víz, Villany, Csatorna
Energetikai besorolás: Nem adta meg a hirdető

Az OTP Bank lakáshitel ajánlataFizetett hirdetés

+36 70 904
Balogh Martin
referens

Érdekel az OTP Bank kedvezményes lakáshitel ajánlata? *

* A kérdésre „Igen” válasz bejelölése esetén, az „Üzenet küldése” gombra kattintva kijelentem, hogy az OTP Bank Nyrt. Adatkezelési tájékoztatójának tartalmát megismertem és tudomásul vettem.

Eladó téglalakás leírása

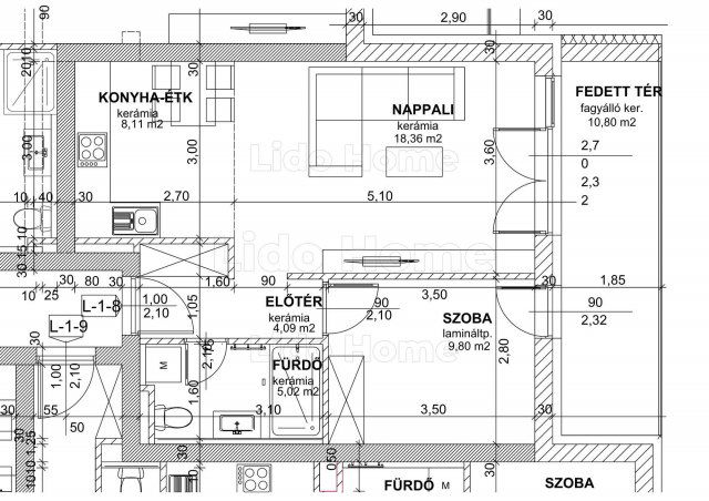
Lido Home győri irodája eladásra kínál egy ÚJ ÉPITÉSŰ lakóparkban ENERGIATAKARÉKOS lakásokat Győr-Szitásdomb lakóparkban! Az ingatlan közigazgatásilag Vámosszabadihoz tartozik, de fizikailag Győrhöz szervesen kapcsolódva helyezkedik el a Szitásdomb lakóparkban. A 35 lakásos, modern épület kivitelezése már zajlik, az átadás 2026 őszre várható! A kínálatban különböző méretű, nappali + 1 hálószobás vagy nappali + 2 hálószobás lakások szerepelnek, amelyek mindegyike tágas erkéllyel és praktikus elosztással rendelkezik. Az otthonok világosak, jól szigeteltek, így alacsony rezsiköltséggel fenntarthatók. Lakásadatok: 1. emelet L8 -Nettó alapterület: 45,38 m² -Erkély: 10,8 m² -Elosztás: amerikai konyhás nappali, hálószoba, fürdőszoba, erkély További lehetőségek: -1 db udvari parkolóhely vásárlása kiélező Ára: 1,7M -Zárható tárolók 1,5–2,5 m² méretben, 1,58–2,45 millió Ft között Műszaki tartalom: -Teherhordó szerkezet: 30 cm Porotherm tégla -Hanggátló falazat: Leier hangszigetelt téglák -Homlokzati hőszigetelés: 15 cm vastag Austrotherm grafitos rendszer -Nyílászárók: VEKA háromrétegű, 5 légkamrás ablakok -Fűtés-hűtés: központi levegő-víz hőszivattyú, egyedi hőmennyiségmérő -Padló- és mennyezetfűtés minden lakásban -Fürdő: padlófűtéssel ellátva Az árak emeltszintű fűtéskész állapotra vonatkoznak, de lehetőség van kulcsrakész átadásra is – igény szerint, rövid határidővel. Ez a projekt tökéletes választás mindazoknak, akik minőségi, modern otthont keresnek Győr közelében, csendes, zöld környezetben, de mégis pár percre a városi élettől. Ideális választás saját otthonnak vagy értékálló befektetésnek is! Érdeklődj még ma, és foglald le új otthonod, amíg a legjobb lakások elérhetők! Amennyiben a Lido Home által kínált lakás vagy bármely, a kínálatunkban található ingatlan felkeltette érdeklődését, hívjon a megadott telefonszámon! Vásárolna, de nincs rá keret? Kollégám díjmentes, banksemleges hitelügyintézéssel áll rendelkezésére. Lido Home - Ingatlanok egy életen át!

Hirdetés feltöltve: 2025. 12. 05. Utoljára módosítva: 2025. 12. 15.

2 szobás téglalakások ára Győrött

Ebből az összehasonlításból megtudhatod, hogyan viszonyul a lakás ára a környékbeli téglalakások átlagos árához. Ez nem azt jelenti, hogy ennyivel olcsóbb vagy drágább, mint amennyit a lakás ér, hanem hogy ennyivel tér el a környékbeli átlagtól.

Ennek a m² ára
Győr m² ár
1128 e Ft
940 e Ft -20%
Ennek az ára
Győr átlagár
50.78 M Ft m Ft
152 m Ft 67%

Az ingatlan elhelyezkedése

Cím: Győr, 1. emelet

Eladó téglalakások a környékről

Eladó téglalakás
Eladó téglalakás

Győr

199.99 M Ft
3 + 1 szoba
160 m2
Eladó téglalakás
Eladó téglalakás

Kapuvár, Erzsébet Királyné

31.598 M Ft
1 szoba
37 m2
Eladó téglalakás
Eladó téglalakás

Győr

38.99 M Ft
2 szoba
46 m2
Eladó téglalakás
Eladó téglalakás

Győr

56.04 M Ft
2 szoba
56 m2
Eladó téglalakás
Eladó téglalakás

Győr

57.99 M Ft
3 szoba
57 m2
Eladó téglalakás
Eladó téglalakás

Győr

199.99 M Ft
3 + 1 szoba
160 m2
Eladó téglalakás
Eladó téglalakás

Győr

48.99 M Ft
3 szoba
57 m2
Eladó téglalakás
Eladó téglalakás

Győr

38.99 M Ft
2 szoba
43 m2
Eladó téglalakás
Eladó téglalakás

Mosonmagyaróvár

31.9 M Ft
2 + 1 szoba
59 m2
Eladó téglalakás
Eladó téglalakás

Győr

48.99 M Ft
3 szoba
57 m2
Eladó téglalakás
Eladó téglalakás

Sopron

109 M Ft
5 szoba
130 m2
Eladó téglalakás
Eladó téglalakás

Győr

98.5 M Ft
3 szoba
96 m2
Eladó téglalakás
Eladó téglalakás

Győr

38.99 M Ft
2 szoba
43 m2
Eladó téglalakás
Eladó téglalakás

Győr

199.99 M Ft
3 + 1 szoba
160 m2
Eladó téglalakás
Eladó téglalakás

Sopron

96.9 M Ft
3 szoba
72 m2
Eladó téglalakás
Eladó téglalakás

Győr

54.99 M Ft
3 szoba
64 m2
Eladó téglalakás
Eladó téglalakás

Győr

98.5 M Ft
3 szoba
96 m2
Eladó téglalakás
Eladó téglalakás

Győr

115.875 M Ft
4 szoba
115 m2
Eladó téglalakás
Eladó téglalakás

Győr

98.745 M Ft
4 szoba
98 m2
Eladó téglalakás
Eladó téglalakás

Győr

38.99 M Ft
2 szoba
46 m2
Eladó téglalakás
Eladó téglalakás

Mosonmagyaróvár

46.9 M Ft
2 szoba
60 m2
Eladó téglalakás
Eladó téglalakás

Győr

57 M Ft
2 szoba
57 m2
Eladó téglalakás
Eladó téglalakás

Sopron, Gólya utca

46.9 M Ft
2 szoba
44 m2
Eladó téglalakás
Eladó téglalakás

Nagycenk

63.9 M Ft
1 + 2 szoba
62 m2

Falusi CSOK ingatlanok

Eladó családi ház
Eladó családi ház

Gégény, Kossuth

15 M Ft
4 szoba
135 m2
Eladó családi ház
Eladó családi ház

Vasszécseny

20 M Ft
2 szoba
139 m2
Eladó ikerház
Eladó ikerház

Seregélyes

39.9 M Ft
4 szoba
150 m2
Eladó családi ház
Eladó családi ház

Szulok

37.9 M Ft
3 szoba
175 m2
Eladó családi ház
Eladó családi ház

Sásd

24.5 M Ft
4 szoba
150 m2
Eladó családi ház
Eladó családi ház

Tiszatenyő

13.99 M Ft
2 szoba
63 m2
Eladó családi ház
Eladó családi ház

Pálfiszeg

30.8 M Ft
4 szoba
76 m2
Eladó családi ház
Eladó családi ház

Iváncsa

73.9 M Ft
1 + 3 szoba
97 m2